Hero banner image

Riistarinne 1, 02750, Espoo

Get a Roof
Myyntihinta: 760 000 €
Velaton hinta: 760 000 €
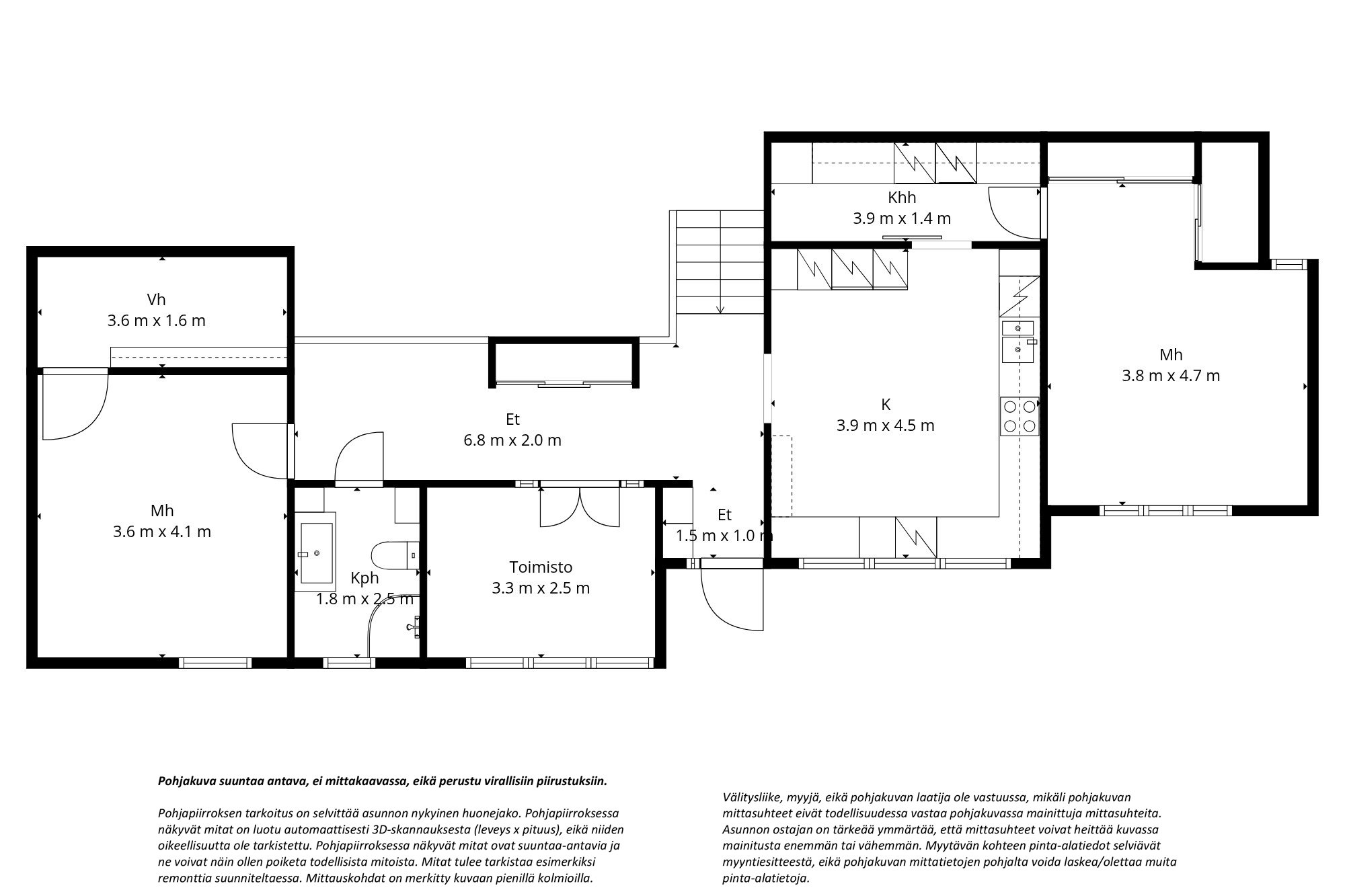
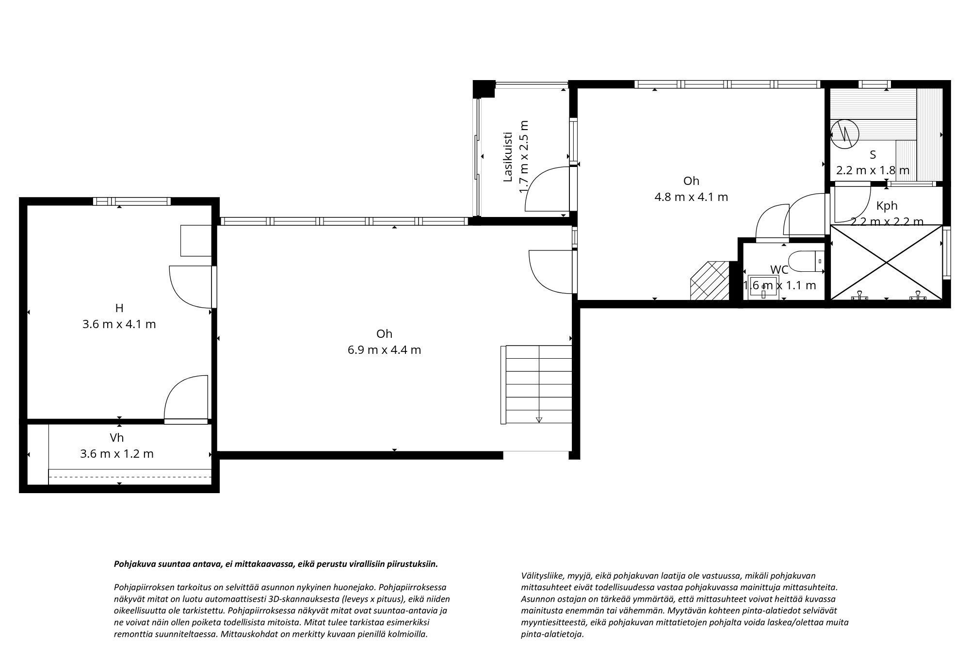
Asuinpinta-ala: 166,5 m2
Huoneluku: 5h+k+takkahuone+eteinen+2xwc+kph+s
Rakennusvuosi: 1983
Talotyyppi: omakotitalo
Kaupunginosa: Ymmersta, Sepänkylä
Kaupunki: Espoo

Apartment image

Espoon Sepänkylässä, aivan Kauniaisten rajan tuntumassa, sijaitsee kodikas koti, jossa tilaa on sekä arkeen että yhdessäoloon. Kokonaisuus tarjoaa toimivan kaksitasoisen pohjaratkaisun, 5h+k+takkahuone+eteinen+2xwc+kph+s. Tilat on suunniteltu niin, että jokaiselle löytyy oma rauhansa, mutta samalla yhteiset hetket asettuvat luontevasti kodin avariin oleskelutiloihin.

Kodissa on selkeä oma tunnelmansa: korkea huonekorkeus ja viistokatto tuovat avaruutta oleskelutiloihin, ja suuret ikkunapinnat tuovat luonnonvaloa sisälle sekä avaavat näkymää pihapiiriin. Olohuoneen yhteydessä on ru...

Apartment image
Target image Target image Target image Target image Target image Target image Target image Target image Target image Target image Target image Target image Target image Target image Target image Target image Target image Target image Target image Target image Target image Target image Target image Target image Target image Target image Target image Target image Target image Target image Target image Target image Target image Target image Target image Target image Target image Target image Target image Target image Target image Target image Target image

Sijainti

Order demo

Varaa esittely

Calendar

Kiinnostuitko?

Ehdota meille sinulle sopivaa aikaa niin valittajamme on sinuun yhteydessa mahdollisimman pian.

Ota yhteytta

Ota yhteytta

Contact image Contact image
Ann-Marie Nordström
Puh: 0407703800
Ann-Marie Nordström

Katso muut kohteet Ymmersta, Sepänkylä

Real estate object
omakotitalo
Riistarinne 1, 02750, Espoo
5h+k+takkahuone+eteinen+2xwc+kph+s
Real estate object
paritalo
Hiidenkuja 6, 02750, Espoo
4h, k, kph, s, wc, khh, piha, autotalli