Hero banner image

Olavinlinnantie 5, 00900, Helsinki

Get a Roof
Myyntihinta: 114 257,42 €
Velaton hinta: 132 000 €
Hoitovastike: 330,60 €
Rahoitusvastike: 396,72 € /kk
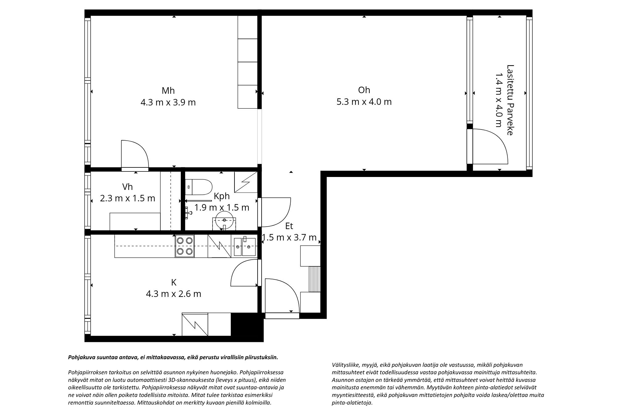
Asuinpinta-ala: 57 m2
Huoneluku: 2h + k + kph + parveke
Rakennusvuosi: 1963
Talotyyppi: kerrostalo
Energialuokka: D2018
Kaupunginosa: Puotinharju
Kaupunki: Helsinki

Apartment image

Puotinharjussa sijaitseva kodikas ja toimiva kaksio, joka tarjoaa hyvät puitteet mukavaan asumiseen. Asunto Oy Säästökelon on valmistunut vuonna 1963, ja se on kokenut vuosien varrella useita kunnostuksia, kuten putkiremontin ja hissien peruskorjauksen.

57 m2 asunnossa on tilava olohuone. Olohuoneesta on käynti lasitetulle parvekkeelle, joka suuntaa luoteeseen. Makuuhuoneessa on hyvin kaappitilaa säilytykseen. Erillisessä keittiössä on kaikki tarvittava ja tilaa ruokapöydälle. Kylpyhuoneessa on lattialämmitys, suihkukaappi ja pesukoneliitäntä.

Asunto sijaitsee hissillisen ...

Apartment image
Target image Target image Target image Target image Target image Target image Target image Target image Target image Target image Target image Target image Target image Target image Target image Target image Target image Target image Target image Target image

Sijainti

Order demo

Varaa esittely

Calendar

Kiinnostuitko?

Ehdota meille sinulle sopivaa aikaa niin valittajamme on sinuun yhteydessa mahdollisimman pian.

Ota yhteytta

Ota yhteytta

Contact image Contact image
Martti Jaako
Puh: 050 304 1440
Martti Jaako

Katso muut kohteet Puotinharju

Real estate object
kerrostalo
Olavinlinnantie 5, 00900, Helsinki
2h + k + kph + parveke
Real estate object
kerrostalo
Kajaaninlinnantie 1, 00900, Helsinki
2h+kk+kph+parveke