erillistalo,
399 000 € • 90.5 m2 • 4 408,84 €/m2
Marsurinne,
01480,
Metsola,
Vantaa
erillistalo,
Marsurinne, 01480, Metsola, Vantaa
399 000 €
90,5 m2 • 4 408,84 €/m2
Yhtiövastike
199,10 €
Tontti
Valinnainen
Kerros
1/ 1
Tee tarjous: Marsurinne
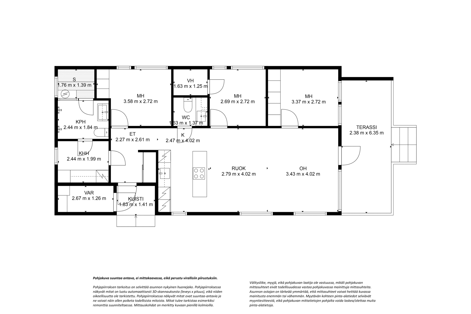
Tämä upea vuonna 2022 valmistunut erillisitalo Vantaan Metsolassa tarjoaa modernia asumista rauhallisessa ympäristössä. Talon tilat ovat yhdessä tasossa, ja sen energiatehokkuusluokka on B2018. Kolme makuuhuonetta ja avara ja valoisa olohuone-keittiöyhdistelmä tekevät tästä kodista ihanteellisen perheelle tai tilaa arvostavalle pariskunnalle.
Keittiö on varustettu laadukkailla Puustellin kalusteilla ja Siemensin kodinkoneilla. Kylpyhuoneessa on kaksi suihkua ja tyylikäs laatoitus. Oma lasiseinäinen sauna tarjoaa rentouttavia hetkiä arjen keskellä.
Pihapiiri on osittain Tuija-aidan reunustama, ja etelään avautuva pergolalla katettu terassi kutsuu nauttimaan ulkoilmasta. Jokaiselle asunnolle kuuluu kaksi autopaikkaa, ja sähköauton latausasema on mahdollista asentaa.
Sijainti on erinomainen: lähellä ovat niin päiväkodit, koulut kuin ruokakauppakin. Liikenneyhteydet ovat sujuvat, sillä Lahdenväylä ja Kehä III ovat nopeasti saavutettavissa, ja lähimmälle juna-asemalle on vain reilu kaksi kilometriä.
Tartu tilaisuuteen ja tee tästä talosta unelmiesi koti!
Hintatiedot
Velaton hinta
399 000 €
4409 €/m2
Yhtiövastike 199,10 €
Hoitovastike 199,10 €
Vesimaksu Vesimaksuennakko 12 € / kk / hlö (Ennakko, tasaus kulutuksen mukaan)
Muut kustannukset Huoneistokohtaiset vesimittarit luetaan ja tasataan vuosittain sekä asukkaan vaihtuessa. Huoneiston osalta tonttiosuus on lunastettu ja huoneisto on vapautunut tonttivastikkeen maksusta.
Tehdyt korjaukset ja remontit
Yhtiön rakennukset ovat valmistuneet vuonna 2022 eikä tarvetta huomattaville kunnossapito- ja muutostöille ole ollut. Vuositarkastuksessa todettuja puutteita korjattiin tilikauden 2024 aikana. Sellaisia huomattavia puutteita, jotka vaikuttaisivat olennaisesti osakehuoneistojen käytöstä aiheutuviin kustannuksiin tai huoneiston käyttöön, ei vuositarkastuksessa ilmennyt. 2024: Suurimpina vuositarkastukseen liittyvinä korjaus- ja huoltotöinä suoritettiin: * Kaikkien asuinrakennusten yläpohjien tuuliohjainten tarkistukset ja korjaukset. * Huonosti istutettujen/viallisten kartiotuijien korvaaminen uusilla. * NIBE-poistoilmalämpöpumppujen ilmanvaihtoon liittyvät mittaus- ja säätötyöt, sekä aktiivihiilisuodattimien asennus.
Tulevat korjaukset ja remontit
Hallituksen laatima kunnossapitotarveselvitys 2025, josta ilmenee seuraavan viiden vuoden kunnossapitotarve: PIHA: Tavanomaiset vuosittaiset kunnossapitotyöt, esim. hiekoitus, teiden puhdistus. Auraus ja lumenpoisvienti tarvittaessa. Yhteisillä hallinta-alueilla sijaitsevien tuijien kastelu, lannoitus ja leikkaaminen sekä leikkipaikan hiekkalaatikon hiekan vaihto ja/tai puhdistus. VESI- JA VIEMÄRIJÄRJESTELMÄT: Sadevesipumppaamon vuosittainen huolto. Salaojien tarkistus ja puhdistus tarvittaessa. JULKISIVUT: Ulkoverhouspaneelien uusintamaalaus tarvittaessa, arviolta 5- 10 v välein. ILMANVAIHTO: NIBE-poistoilmalämpöpumppujen perushuolto 2025 (suositus 3 v välein).
Taloyhtiö
Taloyhtiön nimi |
Asunto Oy Vantaan Puistonurmikka |
|---|---|
Isännöitsijän yhteystiedot |
Kirjanpito; Talotili Oy |
Kiinteistön nimi |
Yhtiöjärjestyksen mukaan osakkeenomistaja vastaa hallitsemansa piha-alueen hoidosta ja puhtaanapidosta. Talvisin lumityöt hoidetaan itse. Jokainen asunto hoitaa omat lumensa pois omalta piha-alueeltaan. Tarvittaessa tilataan lumenpoisvienti joka kustannetaan taloyhtiön varannoista. Taloyhtiöllä on kaikkien käytössä oleva ruohonleikkuri. |
Yhtiön tilat ja varustelu |
Kaapeli-tv |
Energialuokka |
B2018 |
Tontin pinta-ala |
3m2 |
Tontin omistus |
Valinnainen |
Tontin vuokra-aika |
31.07.2071 |
Sijainti
Marsurinne
01480,
Metsola,
Vantaa