omakotitalo,
200 000 € • 135.0 m2 • 1 481,48 €/m2
Lautturinkatu 5,
20900,
Lauttaranta,
Turku
omakotitalo,
Lautturinkatu 5, 20900, Lauttaranta, Turku
200 000 €
135 m2 • 1 481,48 €/m2
Tontti
oma
Kerroksia
2
Näytä asiakirjat: Lautturinkatu 5
Tee tarjous: Lautturinkatu 5
TURUN KAUPUNKI MYY!
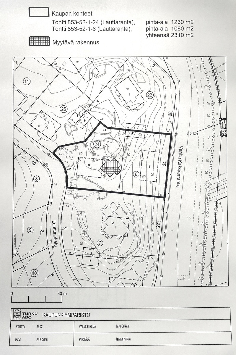
Turun kaupungin Lauttarannan (52.) kaupunginosan korttelin 1. tontti 24, kiinteistötunnus 853-52-1-24, rakennuksineen ja laitteineen sekä tontti 6, kiinteistötunnus 853-52-1-6. Tontin 853-52-1-24 pinta-ala on 1230 m2 ja tontin 853-52-1-6 pinta-ala on 1080 m². Kaupan kohteena on tontin 24 osalta koko kiinteistö rakennuksineen ja laitteineen ja tontin 6 osalta koko kiinteistö.
Tontilla 24 sijaitsee asuinrakennus (rakennustunnus 101843646W). Kohde myydään asuinkäyttöön täydellisesti peruskorjattavaksi.
Ostaja voi hakea tonttijaon muutosta tai rakentaa myös toiseen tonttiin. Kulku tontille 6 järjestettävä tontin 24 kautta.
Turun Museokeskuksen 8.11.2024 antaman lausunnon mukaan Lautturinkatu 5 entinen päiväkotirakennus on kulttuurihistoriallisesti arvokas rakennus osana Hirvensalon vanhaa rakennuskantaa, minkä vuoksi se on merkitty säilytettäväksi kohteeksi Hirvensalon osayleiskaavassa. Suojelumääräys tarkoittaa, ettei rakennusta saa purkaa ja mahdollisissa julkisivuihin kohdistuvissa muutostöissä rakennuksen alkuperäiset ominaispiirteet tulee säilyttää. Muutoksiin liittyvistä rakennus- ja toimenpideluvista rakennusvalvonta pyytää museoviranomaisen lausunnon.
LISÄTIEDOT, ESITTELYPYYNNÖT, OSTOTARJOUKSET!
Peter Grönholm, LKV, 040 509 9250 tai peter.gronholm@roof.fi
Jag betjänar även på svenska. I can provide services also in English.
Hintatiedot
Velaton hinta
200 000 €
1481 €/m2
Tontti
Kiinteistötunnus/laitostunnus |
853-52-1-24, 853-52-1-6 |
|---|---|
Kiinteistön nimi |
1 |
Energialuokka |
G2018 |
Tontin pinta-ala |
2310m2 |
Tontin omistus |
oma |
Kaava, m2 |
Kaupan kohteena olevat tontit ovat 19.11.1945 voimaan tulleessa asemakaavassa Lauttarannan asemakaava 5/1945 osoitettu asunto- ja liikekorttelialueeksi ja 11.12.2021 voimaan tulleessa osayleiskaavassa Hirvensalon osayleiskaava 13/2007 osoitettu pientalovaltaiseksi asuntoalueeksi (AP-1) |
Sijainti
Lautturinkatu 5
20900,
Lauttaranta,
Turku