Hero banner image

Metsäopistontie 1, 10600, Tammisaari

Get a Roof
Myyntihinta: 2 900 000 €
Velaton hinta: 2 900 000 €
Talotyyppi: muu tontti
Kaupunginosa: Tammisaari
Kaupunki: Tammisaari

Apartment image

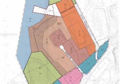
Möjligheternas tomt!
- ca 11hektar
- Kvällssol
- ca 400m strandlinje mot väst-nordväst
- Egen detaljplan med stor byggrätt

P Kvartersområde för Servicebyggnader , 4100 m2
KTYKvartersområde för Verksamhetsbyggnader 750 m2
AL Kvartersområde för bostads- affärs- och kontorsbyggnader2000 m2
AK Kvartersområde för flervåningshus 5100 m2
A Kvartersområde för bostadshus 5000 m2

Totalt ca 16 950 m2.

Samt ett LV-4 område = Små...

Apartment image
Target image Target image Target image Target image Target image Target image Target image Target image Target image Target image Target image Target image Target image Target image Target image Target image Target image Target image Target image Target image Target image Target image Target image Target image

Sijainti

Order demo

Varaa esittely

Calendar

Kiinnostuitko?

Ehdota meille sinulle sopivaa aikaa niin valittajamme on sinuun yhteydessa mahdollisimman pian.

Ota yhteytta

Ota yhteytta

Contact image Contact image
Rolle Himmelroos
Puh: 040 532 1528
Rolle Himmelroos

Katso muut kohteet Tammisaari

Real estate object
varasto
Pehr Sommarin katu 14, 10600, Raasepori
Myymälä, toimisto ja varastotilaa
Real estate object
kerrostalo
Koivuniemenkatu 12, 10600, Tammisaari
2h, k, kph, ransk. parveke