omakotitalotontti,
180 000 € • 388.0 m2 • 463,92 €/m2
Haukkakatu 5,
00770,
Alppikylä,
Helsinki
omakotitalotontti,
Haukkakatu 5, 00770, Alppikylä, Helsinki
180 000 €
388 m2 • 463,92 €/m2
Tontti
oma
Tee tarjous: Haukkakatu 5
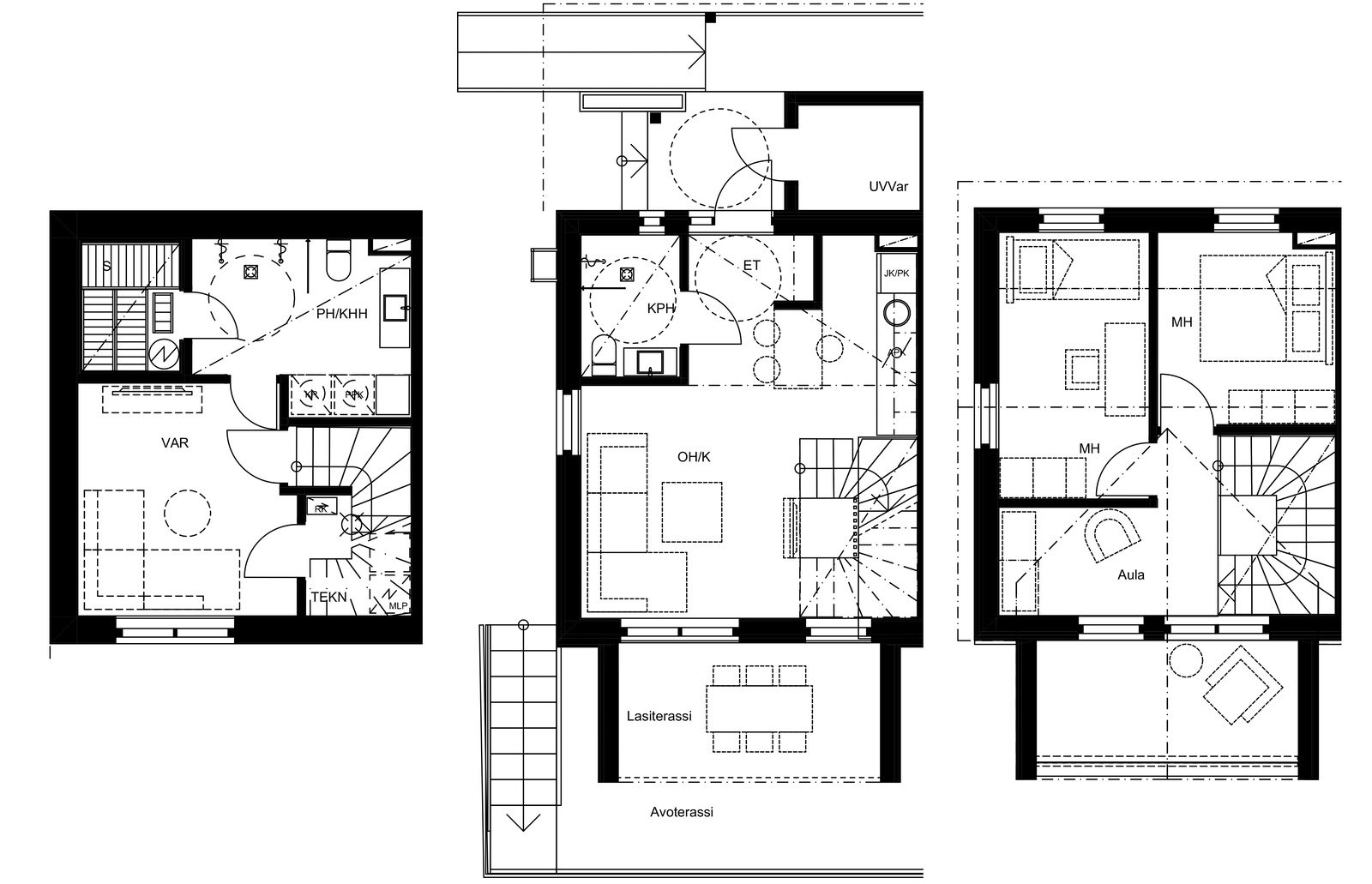
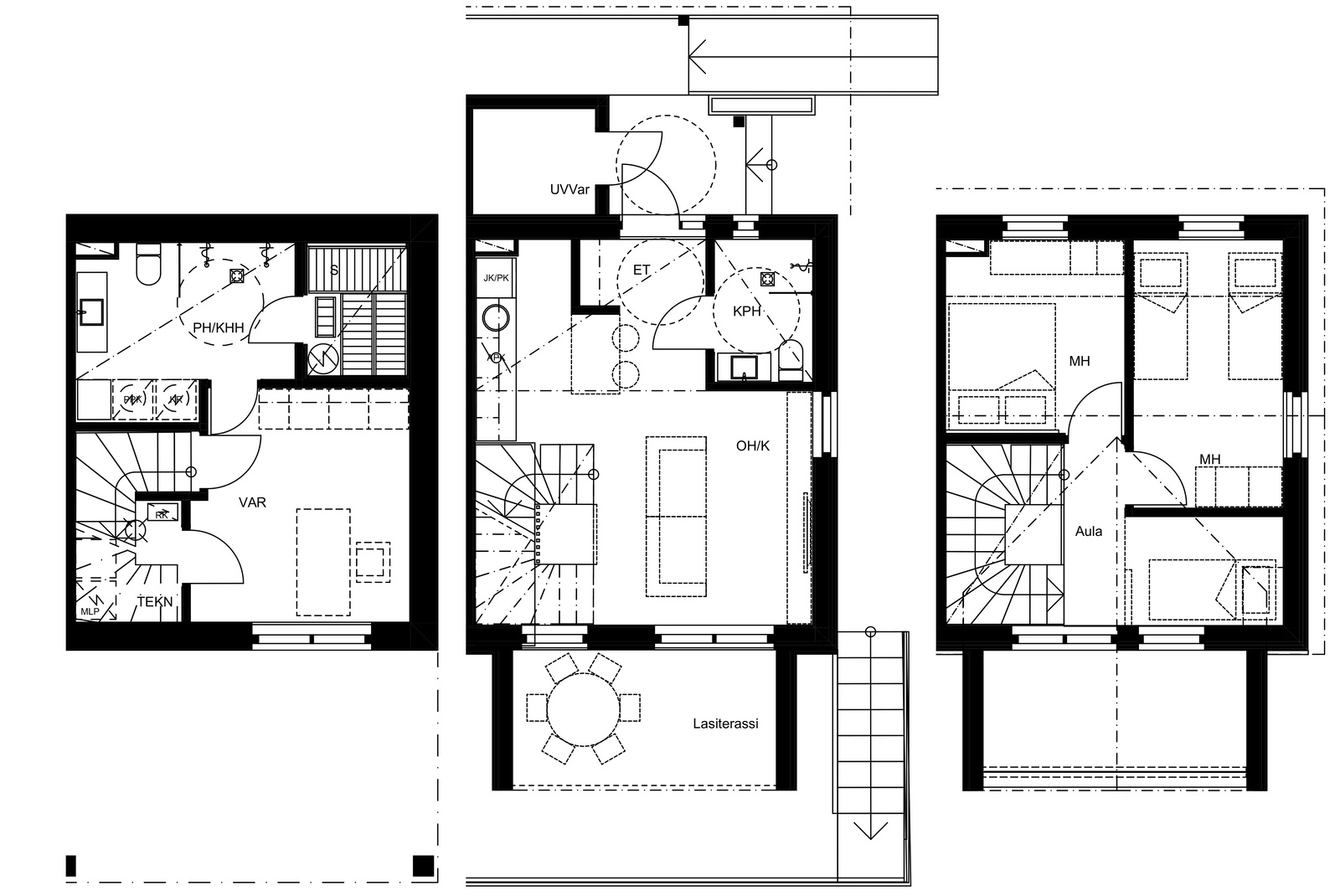
Kaksi rakennuspaikkaa Alppikylässä Haukkakatu 5
Alppikylän rauhallisella asuinalueella, hyvien yhteyksien varrella, on tarjolla kaksi erillistä rakennuspaikkaa. Voit toteuttaa niihin esimerkiksi paritalon tai kaksi erillistä pientaloa. Rakenna itsellesi toinen ja tee tili toisesta asunnosta! Voit ostaa myös pelkästään toisen paikan, jolloin kiinteistöstä lohkotaan kyseinen rakennuspaikka sinulle. Näin halpaa rakennusoikeutta ei saa Helsingistä mistään!
Rakennuspaikka 1: pinta-ala 203 m², rakennusoikeus 122 m²
Rakennuspaikka 2: pinta-ala 185 m², rakennusoikeus 111 m²
Alueen asemakaava mahdollistaa tilavan kaupunkiasunnon rakentamisen vailla murheita pihatöistä, ja ympäriltä löytyy jo valmiiksi viihtyisä pientaloalue. Lähikaupat, koulut ja päiväkodit ovat lyhyen matkan päässä, ja bussilla pääset Helsingin keskustaan noin 30 minuutissa. Autolla hurauttaa lahden tietä ja kehä kolmosta nopeasti menit sitten pohjoiseen, itään, etelään tai länteen.
Tämä on tilaisuus rakentaa koti tai sijoituskohde uudehkolle alueelle Alppikylä tarjoaa yhdistelmän rauhallista asumista ja sujuvia kulkuyhteyksiä.
TIEDUSTELUT JA YKSITYISESITTELYVARAUKSET:
Tuomas Maksimainen, LKV, LVV, KiAT,
Kaupanvahvistaja / 040 358 0051 tai
tuomas.maksimainen@roof.fi
OTATHAN YHTEYTTÄ JA VARAAT OMAN ESITTELYAJAN!
I can provide services also in English.
Get a roof.
www.roof.fi
Hintatiedot
Velaton hinta
180 000 €
464 €/m2
Kiinteistövero 926,88
Muut kustannukset Edellä mainittu kiinteistövero on vuoden 2025 verotieto. Lukijan tulee ottaa myös huomioon, että kiinteistövero tarkistetaan vuosittain ja muutokset kiinteistöverossa ovat mahdollisia. Helsingin kaupunki verottaa rakentamattomia kiinteistöjä suuremmalla kertoimella, joten rakennetun tontin kiinteistövero tulee olemaan luultavasti alhaisempi. Maapohja 3, 485,32€/v Maapohja 4, 441,56 €/v
Tontti
Kiinteistötunnus/laitostunnus |
91-429-8-644 |
|---|---|
Kiinteistön nimi |
MAIJALA |
Tontin pinta-ala |
388m2 |
Tontin omistus |
oma |
Rakennusoikeus, m2 |
III (1/2) Roomalainen numero osoittaa rakennusten, rakennuksen tai sen osan suurimman sallitun kerrosluvun. Roomalaisen numeron jäljessä oleva luku osoittaa, kuinka suuren osan rakennuksen suurimman kerroksen alasta saa rakennuksen ylimmässä kerroksessa käyttää kerrosalaan laskettavaksi tilaksi. |
Kaava, m2 |
Voimaantulopvm: 13.10.2006 A-1 = Asuinrakennusten korttelialue Lähialueella mahdollisesti käynnissä ja suunnitteilla olevista kaavamuutoshankkeista voi aiheutua urakoinnin aikana rakennuspöly, -melu sekä liikennehaittaa. Ostajan tulee tutustua lähialueen kaavoitushankkeisiin huolellisesti. Lisätietoa kaavoituksesta antaa: Helsingin kaupunki asemakaavoitus Kansakoulukatu 3, 00100 Helsinki p. (09) 310 1691 https://kartta.hel.fi/ |
Sijainti
Haukkakatu 5
00770,
Alppikylä,
Helsinki