Hero banner image

Jernvikintie 4, 10470, Fiskars

Get a Roof
Myyntihinta: 700 000 €
Velaton hinta: 700 000 €
Asuinpinta-ala: 585 m2
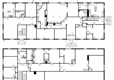
Huoneluku: Fiskarsin vanha sairaalarakennus sis. 4 asuntoa talousrakennuksineen,
Talotyyppi: omakotitalo
Kaupunginosa: Fiskari
Kaupunki: Fiskars

Apartment image

Nyt myynnissä pala Suomen historiaa, nimittäin Fiskarsin kylän vanha sairaalarakennus. Poikkeuksellisen kiinteistöstä tekee sen oma n. 200 metrin rantaviiva Degersjö-nimiseen järveen.

Hirsirunkoinen päärakennus on alunperin rakennettu 1800-luvun lopussa ja laajennettu 1900-luvun alkupuoliskolla. Nykyisellään talo käsittää neljä eri asuinhuoneistoa; N. 340 m² kahdessa kerroksessa, n. 105 m² yhdessä kerroksessa ja yläkerrassa on kaksi asuntoa n. 60 m² & 81 m².

Eristämätöntä ullakkotilaa on n. 186 m², eli lisätilaa on mahdollista saada.

Talousrakennukset, joihin kuuluu...

Apartment image
Target image Target image Target image Target image Target image Target image Target image Target image Target image Target image Target image Target image Target image Target image Target image Target image Target image Target image Target image Target image Target image Target image Target image Target image Target image Target image Target image Target image Target image Target image Target image Target image Target image Target image Target image Target image Target image Target image Target image Target image Target image Target image Target image Target image Target image Target image Target image Target image Target image Target image

Sijainti

Order demo

Varaa esittely

Calendar

Kiinnostuitko?

Ehdota meille sinulle sopivaa aikaa niin valittajamme on sinuun yhteydessa mahdollisimman pian.

Ota yhteytta

Ota yhteytta

Contact image Contact image
Johan Grönqvist
Puh: 044 286 9586
Johan Grönqvist

Katso muut kohteet Fiskari

Real estate object
omakotitalo
Jernvikintie 4, 10470, Fiskars
Fiskarsin vanha sairaalarakennus sis. 4 asuntoa talousrakennuksineen,