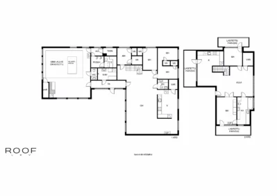
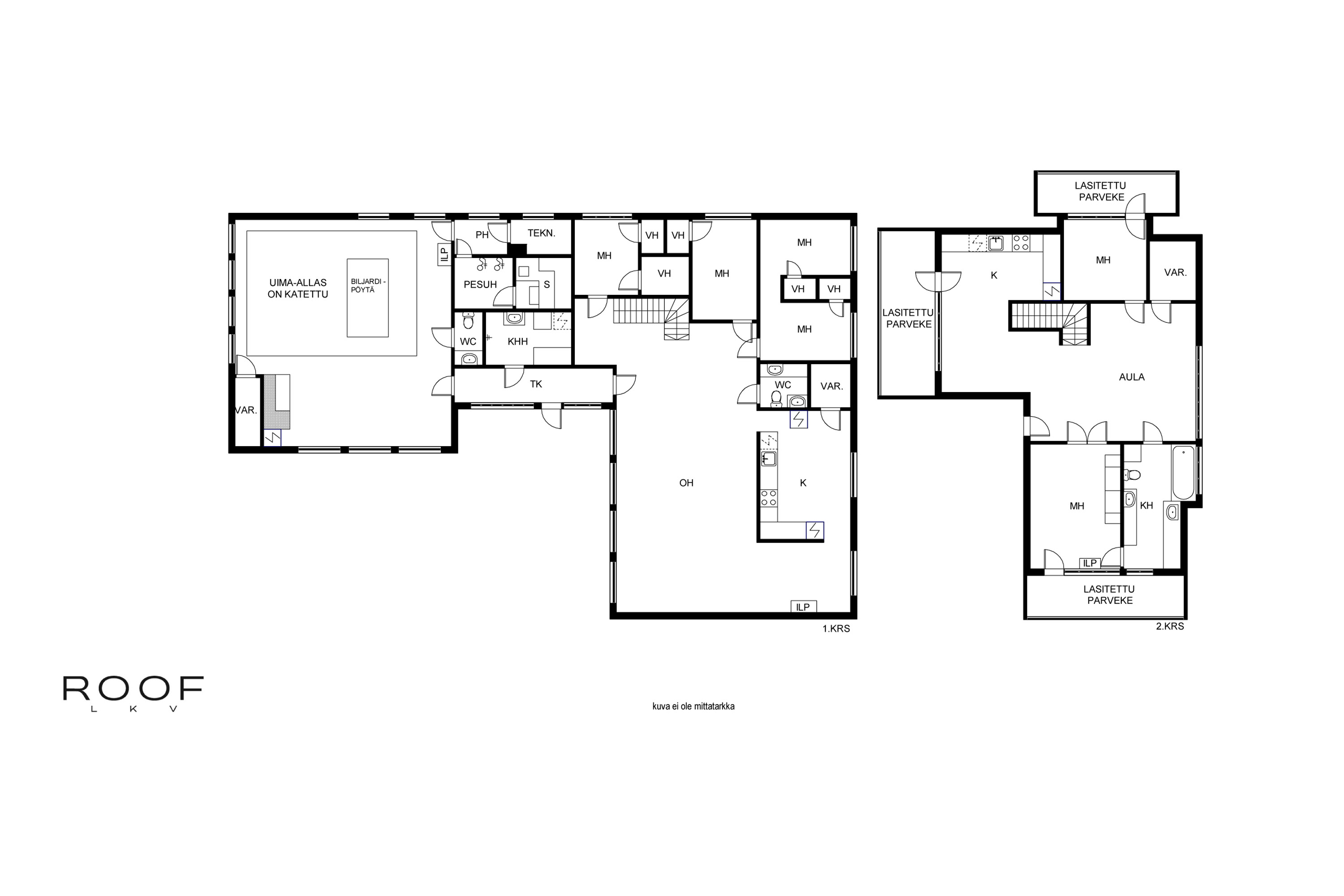
omakotitalo, 8h, k, takkahuone, kph, s, 6x vh, 3x wc, 3x lasitettu parveke
298 000 € • 356.0 m2 • 837,08 €/m2
Vanhatie 36,
29630,
Pomarkku,
Pomarkku
omakotitalo, 8h, k, takkahuone, kph, s, 6x vh, 3x wc, 3x lasitettu parveke
Vanhatie 36, 29630, Pomarkku, Pomarkku
298 000 €
356 m2 • 837,08 €/m2
Tontti
Oma
Kerroksia
2
Tee tarjous: Vanhatie 36
– Kuntotarkastettu Insinööritoimisto Takuutalo Oy 08/2025
– Reilusti huoneita
– Isoksi taloksi, kohtuulliset asumiskustannukset (mm. ilma-vesilämpöpumppu + ilmalämpöpumput)
– Autotalli kahdelle autolle
– Pihapiirissä upea patio, jossa mm. kota ja palju
Tilaisuus hankkia tilava ja valoisa omakotitalo Pomarkusta! Tämä kahdessa kerroksessa oleva koti tarjoaa runsaasti tilaa suuremmallekin perheelle.
Kodissa on kahdeksan huonetta, keittiö, takkahuone, kolme wc:tä ja kolme lasitettua parveketta. Takkahuoneessa on uima-allas, joka on nyt katettuna, mutta myyjän mukaan se on mahdollista ottaa uudelleen käyttöön mutta voi vaatia huoltotoimenpiteitä. Sauna on uusittu vuonna 2024, ja taloa on päivitetty merkittävästi viime vuosina, mukaan lukien ilmavesilämpöpumpun ja ilmalämpöpumppujen asennus sekä keittiön ja kylpyhuoneen uudistukset.
Vehreä piha avautuu itä-etelään ja tarjoaa mukavat puitteet ulkoiluun. Pihalta löytyy grillikota, palju, marjapensaita ja omenapuita. Pomarkun keskustan palvelut ovat alle kilometrin päässä, ja lähin koulu ja päiväkoti sijaitsevat vain 400 metrin päässä.
Tämä koti tarjoaa viihtyisät puitteet perhe-elämälle rauhallisessa ympäristössä, mutta silti lähellä palveluita. Tartu tilaisuuteen ja tee tästä kodista juuri sinun perheesi uusi koti!
Esittelen tämän kauniin kokonaisuuden yksityisesittelyiden muodossa, joten ota rohkeasti minuun yhteyttä.
Alex Salo
0449771510
Myyntijohtaja
Roof LKV Satakunta
Hintatiedot
Velaton hinta
298 000 €
837 €/m2
Kiinteistövero 1404,92 / vuosi
Lämmityskustannukset (muu kuin sähkö, €/kk) 150,00 €
Jätehuoltokustannukset 50,00 €
Muut kustannukset Myyjältä saadun tiedon mukaan sähköä kulunut n. 17300 kWh ajalla 1-6/2025, sisältäen käyttösähkön sekä lämmitykseen käytettävän sähkön, joka ollut noin 150 euroa/kk kun sen laskee vuositasolle. Lukijan on hyvä huomioida, että sähkön hinta voi vaihdella suurestikin edellä mainitusta riippuen sähkön tarjoajasta, tehdystä sopimuksesta sekä sähkön vallitsevasta markkinatilanteesta. Kiinteistövero on vuodelta 2025. Kiinteistöverotus tarkistetaan vuosittain ja muutokset veroon ovat mahdollisia. Todelliset kustannukset voivat vaihdella asukasmäärän, kulutustottumusten sekä palvelu sopimusten mukaan. Varainsiirtovero 3 %.
Tehdyt korjaukset ja remontit
1983
Asunnon toinen kerros tehty, asennettu alakerran lämmönjakohuoneesta vesijohtojen syötöt pexputkella toiseen kerrokseen, uusittu alakerran keittiön ja keittiön viereisen wc:n vesijohdot pexputkella. (Saarinen ja pojat Ay)
2007
takkahuoneen lattialämmityksen asennus (Saarinen ja pojat Ay),
2019
rakennettu talon lämmitysjärjestelmä vesi-ilmalämpöpumpulla, uusittu 2x wc:n, kodinhoitohuoneen ja pesuhuoneen vesijohdot kromi/kuparilla (Saarinen ja pojat Ay),
2019
asennettu kolme ilmalämpöpumppua, uusittu alakerran parketti ja tapetoitu kaikki seinät, keittiön koneet uusittu,
2020
katto ja rännit uusittu, uusittu kylpyhuone, talo hiekkapuhallettu, verkotettu ja pinnoitettu ulkopuolelta, yläkerran avoparvekkeet poistettu ja rakennettu umpinaiset ja lasitetut parvekkeet,
2023
keittiön kaapit maalattu ,
2024
uusittu yksi ilmalämpöpumppu, uusittu sauna, maalattu yläkerran seinät, rakennettu grillikota ja terassi
2025
takkahuoneen tasakaton osalta avattu kattorakenteita ja uusittu eristeitä sekä bitumikate uusittu (takuu 7 vuotta)
Tontti
Kiinteistötunnus/laitostunnus |
608-406-4-74 |
|---|---|
Tontin pinta-ala |
0m2 |
Tontin omistus |
Oma |
Sijainti
Vanhatie 36
29630,
Pomarkku,
Pomarkku