omakotitalo, 7h, k, 2x wc, kph + metsää noin 2ha sekä pelto 1ha.
79 000 € • 268.0 m2 • 294,78 €/m2
Ruuskantie 215,
29630,
Ruuskankulma,
Pomarkku
omakotitalo, 7h, k, 2x wc, kph + metsää noin 2ha sekä pelto 1ha.
Ruuskantie 215, 29630, Ruuskankulma, Pomarkku
79 000 €
268 m2 • 294,78 €/m2
Tontti
Oma
Kerroksia
2
Tee tarjous: Ruuskantie 215
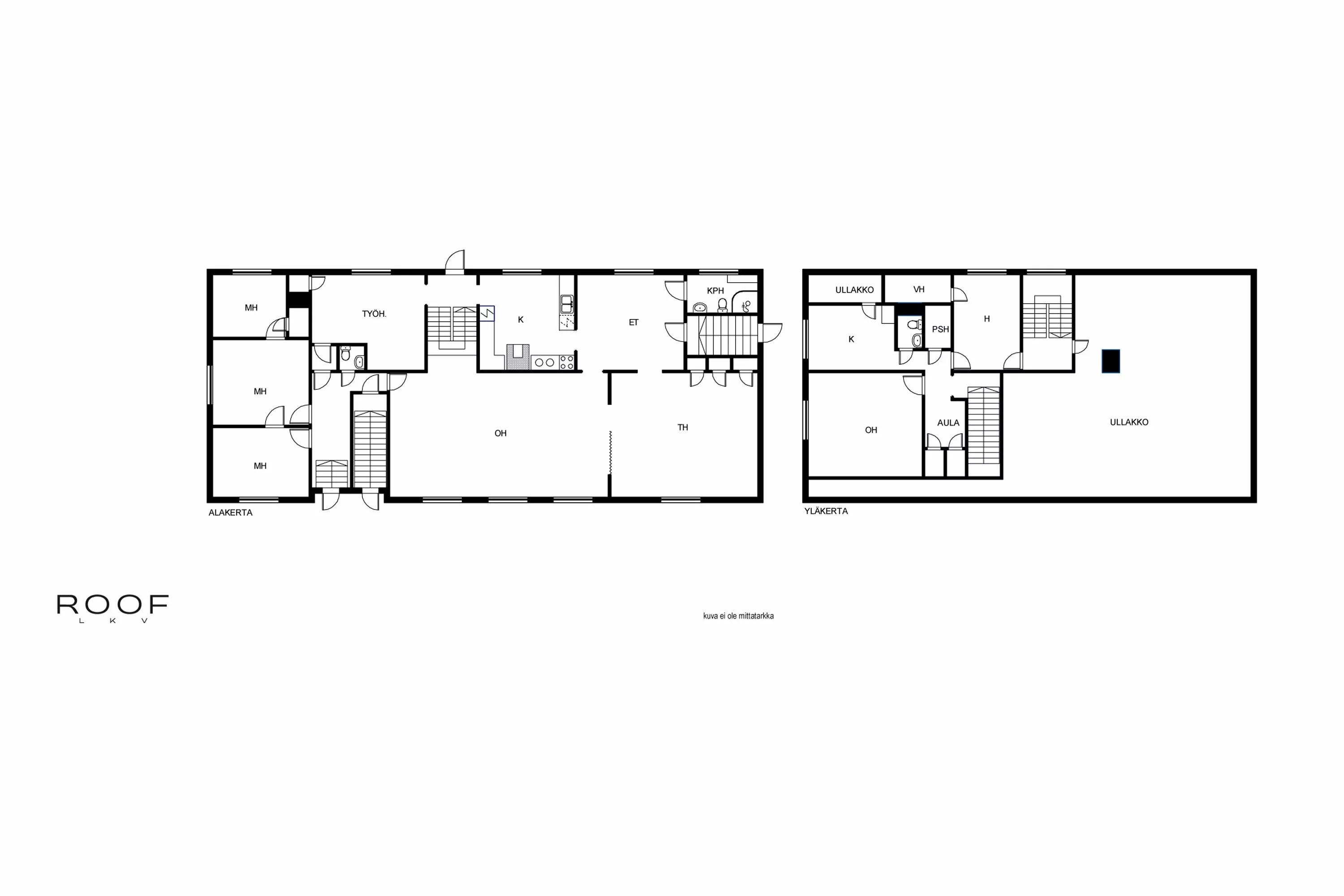
– Poikkeuksellinen tilaratkaisu: entinen kyläkoulu, jossa yli 450 m² kokonaisalaa
– Oma 3,7 hehtaarin tontti, jossa peltoa, arvo metsää ja vehreä pihapiiri
– Monipuoliset käyttömahdollisuudet – asumiseen, työntekoon, harrastuksiin tai yritystoimintaan
Tervetuloa Pomarkun maalaismaisemaan Ruuskantielle! Tämä vuonna 1938 rakennettu entinen kyläkoulu tarjoaa ainutlaatuisen yhdistelmän historiaa, tilaa ja potentiaalia. Asuinpinta-alaa on 268 m² ja kokonaispinta-alaa peräti 450 m² – mukana kaksi vanhaa luokkahuonetta, jotka soveltuvat esimerkiksi studio-, työ- tai harrastetiloiksi. Huonekorkeus on noin 3,30 metriä, mikä tuo tilaan avaruutta ja näyttävyyttä.
Kohde sijaitsee omalla 3,678 hehtaarin tontilla, jossa on noin 2 ha metsää ja noin 1 ha peltoa – ihanteellinen paikka vaikkapa pienviljelyyn, eläinten pitoon tai vain luonnosta nauttimiseen. Vehreä pihapiiri omenapuineen, tyrni- ja luumupensaineen luo tunnelmallisen ympäristön asumiselle.
Taloa on remontoitu vuosien varrella: muun muassa katto on uusittu (2006), kylpyhuone remontoitu (2009), keittiö päivitetty (2013), sähköjärjestelmä on uusittu, ja lämmitykseen on asennettu ilmavesilämpöpumppu sekä kaksi ilmalämpöpumppua (2022).
Tämä monikäyttöinen kokonaisuus sijaitsee vain noin 10 km päässä Pomarkun keskustan palveluista ja noin 35 km päässä Porista. Valokuituyhteys, sähkö- ja vesiliittymät siirtyvät kaupan mukana. Kiinteistö on heti vapaa.
Tervetuloa tutustumaan ja ihastumaan!
Esittelen tämän kohteen yksityisesittelyiden muodossa. Ole minuun rohkeasti yhteydessä ja lähdetään katsomaan tätä monen mahdollisuuksien paikkaa, kun sinulle sopii.
Emmi Parviainen LKV, LVV, KED
0458541966
emmi.parviainen@roof.fi
Hintatiedot
Velaton hinta
79 000 €
295 €/m2
Kiinteistövero 705,40 / vuosi
Lämmityskustannukset (muu kuin sähkö, €/kk) 150,00 €
Jätehuoltokustannukset 20,00 €
Tiemaksu 300,00 €
Muut kustannukset Myyjältä saadun tiedon mukaan sähköä kulunut n. 25000 kWh vuonna 2024, sisältäen käyttösähkön sekä lämmitykseen käytettävän sähkön, joka ollut noin 150 euroa/kk kun sen laskee vuositasolle. Lukijan on hyvä huomioida, että sähkön hinta voi vaihdella suurestikin edellä mainitusta riippuen sähkön tarjoajasta, tehdystä sopimuksesta sekä sähkön vallitsevasta markkinatilanteesta. Kiinteistövero on vuodelta 2025. Kiinteistöverotus tarkistetaan vuosittain ja muutokset veroon ovat mahdollisia. Todelliset kustannukset voivat vaihdella asukasmäärän, kulutustottumusten sekä palvelu sopimusten mukaan. Varainsiirtovero 3 %.
Tehdyt korjaukset ja remontit
Edellisen omistajan tekemät remontit: 2006 katto uusittu, peruskorjattu 4 makuuhuonetta, olohuone, 2009 remontoitu kylpyhuone/wc, 2013 uusittu keittiö, piharakennuksen peltikatto uusittu, ja asuinrakennuksen katon uudelleen maalaus 2016. Sähköt uusittu edellisen omistajan toimesta, vuodesta ei tietoa. Nykyinen omistaja tehnyt: lämmitysjärjestelmän uusiminen sekä kaksi ilmalämpöpumppua asennettu 2022.
Tontti
Kiinteistötunnus/laitostunnus |
608-408-1-342 |
|---|---|
Tontin pinta-ala |
3m2 |
Tontin omistus |
Oma |
Sijainti
Ruuskantie 215
29630,
Ruuskankulma,
Pomarkku