Hero banner image

Naakkatie 14, 01450, Vantaa

Get a Roof
Myyntihinta: 300 000 €
Velaton hinta: 300 000 €
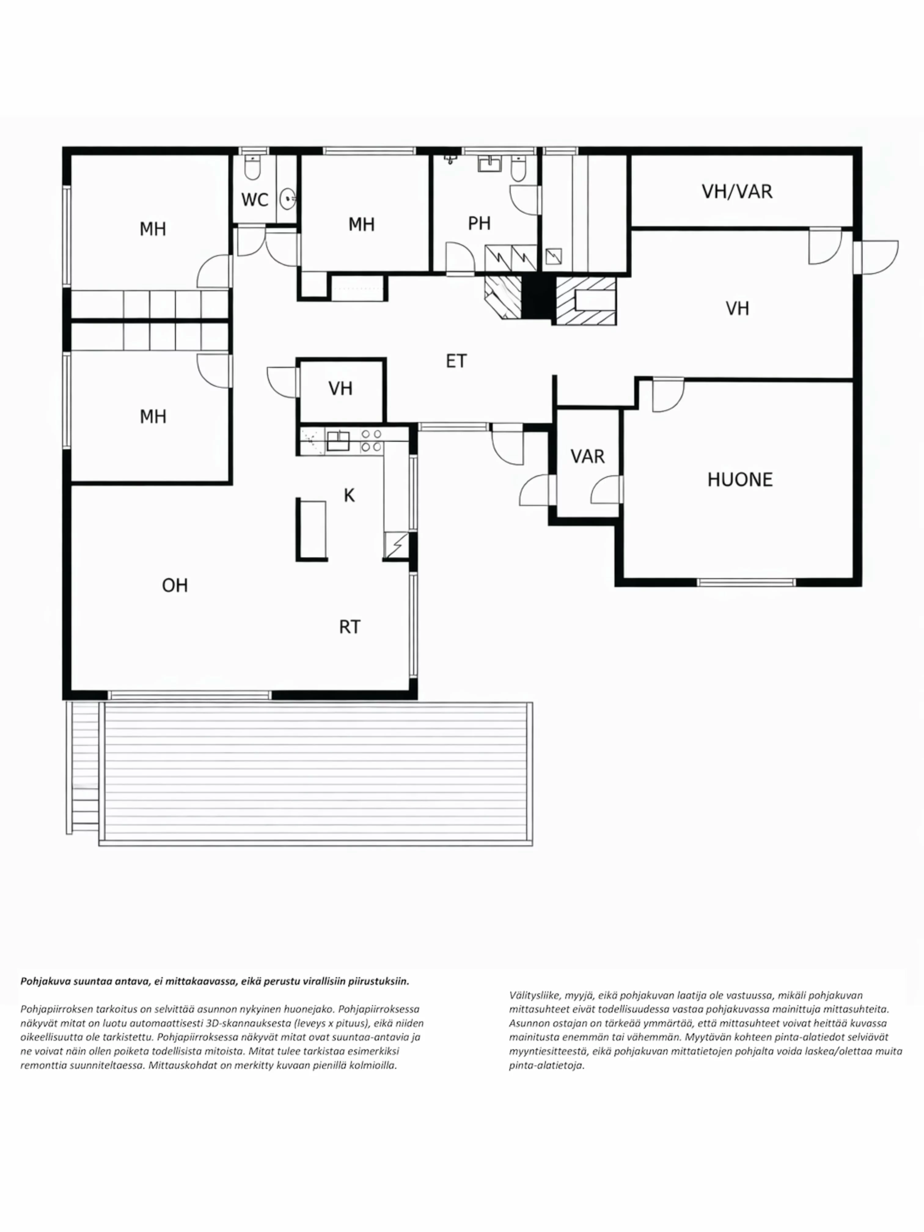
Asuinpinta-ala: 163 m2
Huoneluku: 6h+k+ruokailutila+kph+wx+s
Rakennusvuosi: 1980
Talotyyppi: omakotitalo
Energialuokka: E2018
Kaupunginosa: Vallinoja
Kaupunki: Vantaa

Kodikas ja muunneltava omakotitalo arvostetulla Korkinmäen pientaloalueella

Apartment image

Arvostetulla Korkinmäen pientaloalueella, Vierumäen välittömässä läheisyydessä, sijaitsee tämä toimiva ja kodikas talo omalla tasaisella puutarhatontillaan.

Kodin monipuolisuus ja lämmin tunnelma avautuvat heti pääsisäänkäynnissä, jossa talon keskeiselle paikalle sijoitettu takka toivottaa tulijan tervetulleeksi. Tilavat makuuhuoneet sekä olohuone ja avokeittiö muodostavat viihtyisän ja toimivan kokonaisuuden, jota on kauniisti modernisoitu.

Talo tarjoaa erinomaiset mahdollisuudet myös monisukupolviseen asumiseen, sillä rakennuksen toinen puoli on kohtuullisin muutostöin ma...

Apartment image
Target image Target image Target image Target image Target image Target image Target image Target image Target image Target image Target image Target image Target image Target image Target image Target image Target image Target image Target image Target image Target image Target image Target image Target image Target image Target image Target image Target image Target image Target image Target image Target image Target image Target image Target image Target image

Sijainti

Order demo

Varaa esittely

Calendar

Kiinnostuitko?

Ehdota meille sinulle sopivaa aikaa niin valittajamme on sinuun yhteydessa mahdollisimman pian.

Ota yhteytta

Ota yhteytta

Contact image Contact image
Merveille Bivu
Puh: 040 350 0451
Merveille Bivu

Katso muut kohteet Vallinoja

Real estate object
rivitalo
Lintupolku 13, 01450, Vantaa
1h, avok, kph, vh, parveke
Real estate object
rivitalo
Lintupolku 13, 01450, Vantaa
1h, avok, kph, vh, parveke