








































































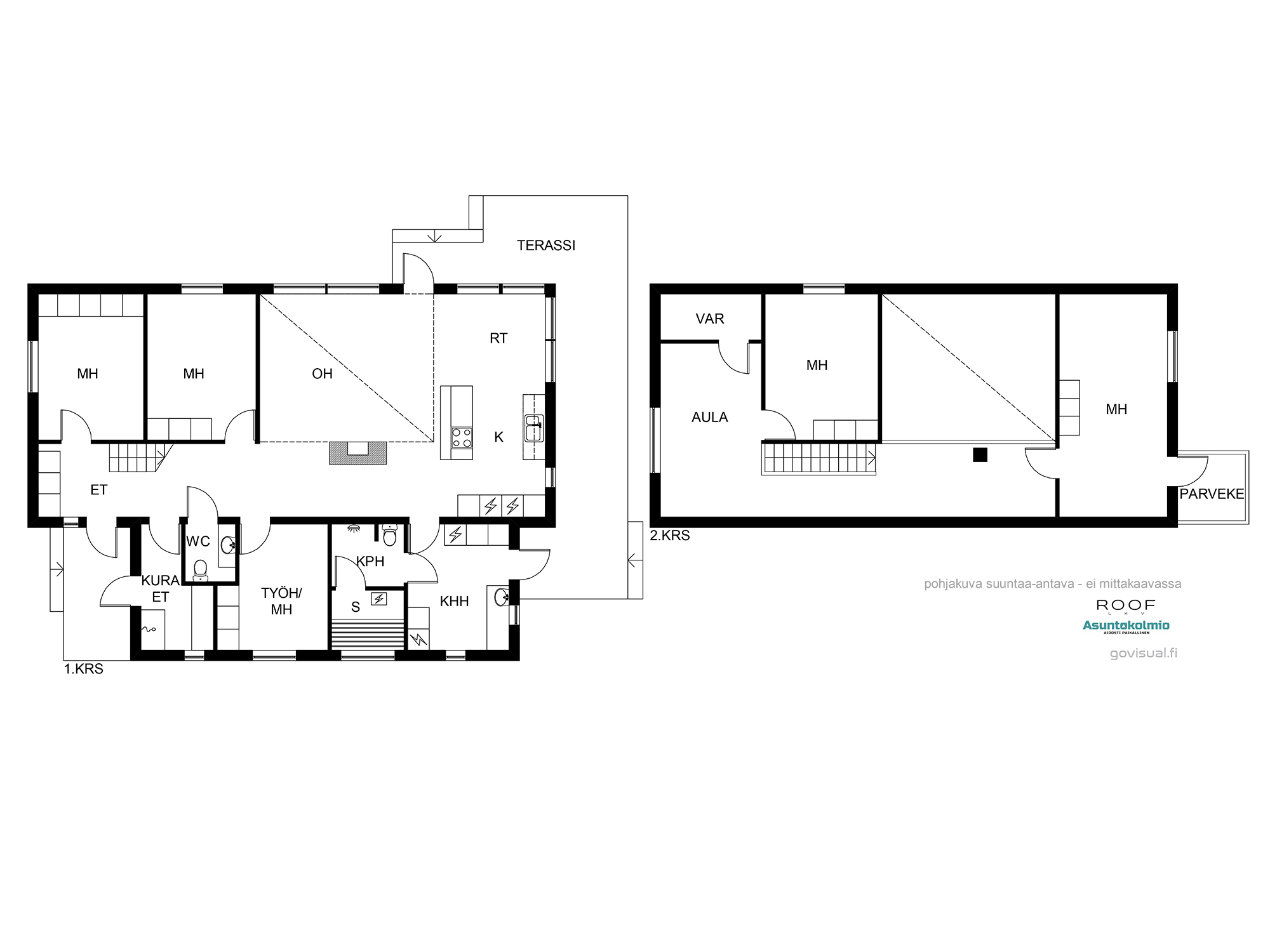
omakotitalo, 6h,k,khh,kph/wc,s,wc,aula,vh,arkiet.+AK,var/verstas,pihasauna.
289 000 € • 182.0 m2 • 1 587,91 €/m2
Onkamontie 112,
90840,
Haukipudas, Jokikylä,
Haukipudas
omakotitalo, 6h,k,khh,kph/wc,s,wc,aula,vh,arkiet.+AK,var/verstas,pihasauna.
Onkamontie 112, 90840, Haukipudas, Jokikylä, Haukipudas
289 000 €
182 m2 • 1 587,91 €/m2
Tontti
Oma
Kerroksia
2
Tee tarjous: Onkamontie 112
Haukiputaan Jokikylästä vapautumassa aivan unelmakohde:
Nykyaikaisen tyylikäs omakotitalo, iso ja suojaisa OMA TONTTI 5196 m², autokatos ja 24,8m² verstas sekä täydellisen hieno pihasauna, joka on kuin kesämökki omalla pihalla! Tämänkaltaista kohdetta on vaikea löytää toista.
Tämä ihastuttava 5 makuuhuoneen koti on rakennettu vuonna 2009 ja on vielä tänäkin päivänä nykyaikaisen moderni ja silti kodikas ja käytännöllinen kokonaisuus. Kodin tiloissa on otettu huomioon etenkin lapsiperheen tarpeet ja arki onkin sujuvaa. Heti sisään tullessa on omalla sisäänkäynnillä oleva tilava arkieteinen, joka huomioi ulkoilevan/harrastavan perheen tarpeet. Kodin alakerrassa on 3 makuuhuonetta vanhemmille ja perheen pienimmille ja 2015 rakennetussa yläkerrassa on 2 makuuhuonetta ja aulatila perheen teineille tai etätyöläisille. Yhtenäisen olohuone-keittiön katseenvangitsijana on korkeampi huonekorkeus, isot kiinteät ikkunat metsän suuntaan ja vaneriset sisäkatot. Keittiössä on tilaa isommallekin ruokapöydälle ja sieltä on kulku isolle terassille. Lämmitys tapahtuu kauttaaltaan vesikiertoisin lattialämmityksin, lämmityksen apuna on ollut varaava takka ja ilmalämpöpumppu. Isolla perheellä lämmitys- ja käyttösähkökustannukset ovat olleet keskimäärin vain noin 200 €/kk.
Tästä kodista on pidetty hyvää huolta: 2025 on tehty kattomaalaus, ulkomaalaukset, sisätilojen pintaremonttia ja Iv-kone uusittu. 2024 on kunnostettu pihaa mm. sadevesijärjestelmät uusittu sekä salaojat ja patolevyt asennettu. 2021 on rakennettu erityisen hieno PIHASAUNA itseveistetyistä hirsistä ja sisältää hyvänkokoisen saunan, pukuhuoneen ja tunnelmallisen lasitetun oleskelu-/kesähuoneen. 2015 on yläkerta rakennettu asuinkäyttöön ja sisältää myös wc-varauksen. Piha-alueella kauniit istutukset, kivetykset ja osittain luonnontilaan jätetty tontti viimeistelee myös ulkotilojen ilmeen.
Haja-asutusalueella sijaitseva Onkamontien koti on luonnonystävän paikka ja sopii perheelle joka arvostaa rauhallisempaa asuinympäristöä sekä ympärillä olevaa tilaa. Silti palvelut eivät ole kaukana, vain 10 min ajomatkan päässä ja kulkuyhteydet on yllättävänkin sujuvat, Ouluun on alle 30 minuutin matka. Koululaisperheille extramukavaa on koulukuljetukset uudehkoihin Haukiputaan kouluihin ja alueella on koululaisille myös kavereita. Läheiset metsäpolut ja Kiiminkijoki odottavat kutsuvana uutta asujaa!
Soittamalla varaat oman esittelyaikasi parhaiten:
Maarit Nissilä, LKV
041 4678264 tai
maarit.nissila@roof.fi
Kaksi vahvaa yhdistyvät! Asuntokolmio on nyt osa Roof LKV:tä. Samat tutut välittäjät, nyt valtakunnallinen verkosto ja entistäkin tehokkaampi myyntikonsepti! Lue lisää https://www.asuntokolmio.fi/blogijuttu/asuntokolmio-on-nyt-osa-roofia/.
Hintatiedot
Velaton hinta
289 000 €
1588 €/m2
Kiinteistövero 871,30 / vuosi
Muut kustannukset Lämmitys- ja käyttösähkön kulutus 22000 kWh/v/8hlöä(!), mikä keskimääräisen pörssisähköhinnan mukaan (11 snt/kWh) laskettuna on n. 201 €/kk. Vesi- ja jätemaksut kulutuksen mukaan, valokuitu oman sopimuksen mukaan. Jätevesijärjestelmän huoltomaksu n. 175 €/v. Kulutusperusteiset kustannukset voivat olla merkittävästikin suuremmat tai pienemmät.
Tehdyt korjaukset ja remontit
2025
Katto maalattu, ulkomaalaukset tehty, sisätilojen pintaremonttia, Iv-kone uusittu.
2024
Sadevesijärjestelmät uusittu, salaojat ja patolevyt asennettu. Saunan lauteet uusittu.
2021
Pihasauna rakennettu.
2015
Yläkerta rakennettu asuinkäyttöön.
2010
Liitytty viemäriverkostoon.
Tontti
Kiinteistötunnus/laitostunnus |
564-410-76-27 |
---|---|
Energialuokka |
C2018 |
Tontin pinta-ala |
0m2 |
Tontin omistus |
Oma |
Sijainti
Onkamontie 112
90840,
Haukipudas, Jokikylä,
Haukipudas