omakotitalo, 5h+k+vh+ullakko+kellari
173 000 € • 141.0 m2 • 1 226,95 €/m2
Markulantie 145,
20320,
Länsikeskus,
Turku
omakotitalo, 5h+k+vh+ullakko+kellari
Markulantie 145, 20320, Länsikeskus, Turku
173 000 €
141 m2 • 1 226,95 €/m2
Tontti
Oma
Kerroksia
2
Tee tarjous: Markulantie 145
Huippupaikalla sijaitseva viehättävä omakotitalo tarjoaa tilaa ja mahdollisuuksia perheellesi. Tämä vuonna 1963 rakennettu puutalo seisoo omalla 785 m² tontillaan Länsikeskuksen rauhallisella alueella, vain lyhyen kävelymatkan päässä palveluista ja kouluista.
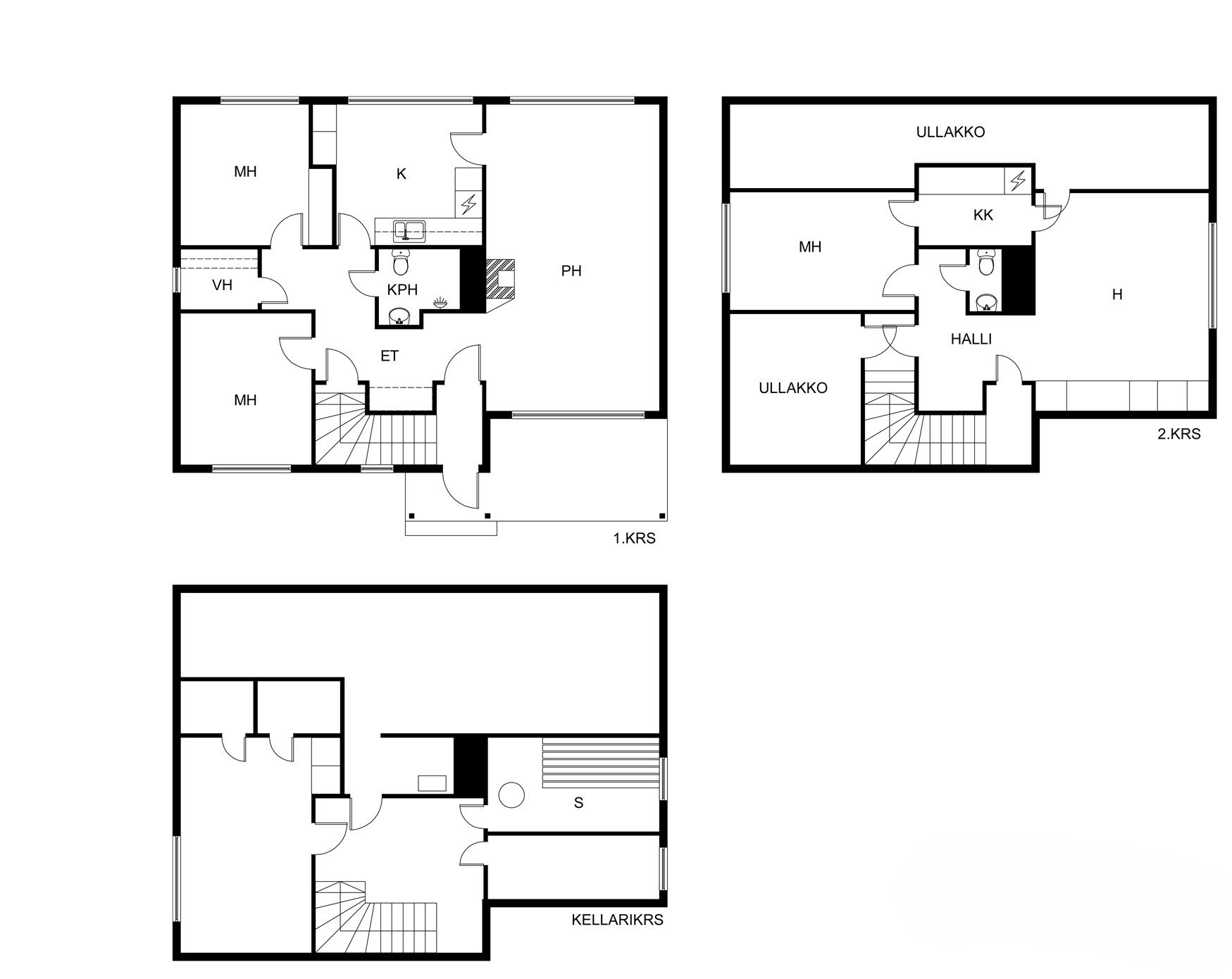
Talon pohjaratkaisu on käytännöllinen, ja se kattaa kaksi kerrosta, joissa on yhteensä neljä makuuhuonetta. Alakerrassa on kaksi makuuhuonetta, kun taas yläkerrassa sijaitsee kaksi lisää, tarjoten tilaa niin perheenjäsenille kuin vieraillekin. Keittiö on remontoitu vuonna 2021 ja varustettu nykyaikaisilla integroiduilla kodinkoneilla, mikä tekee ruoanlaitosta nautinnollista.
Olohuoneessa on kaunis parkettilattia ja lämpöä varaava takka, joka luo kodikkuutta ja säästää lämmityskustannuksissa. Talon öljylämmitysjärjestelmä on päivitetty, ja julkisivun puuverhous on maalattu vuonna 2022, mikä lisää rakennuksen viehättävyyttä ja kestävyyttä.
Kellarikerroksessa on tapahtunut vesivahinko, mutta tila on puhdistettu ja jätetty odottamaan uusia ideoita. Tämä tarjoaa mahdollisuuden luoda unelmiesi tila esimerkiksi harrastuksille tai varastointiin. Talossa on myös sauna, joka kaipaa viimeistelyä, mutta tarjoaa mahdollisuuden toteuttaa omia visioita.
Sijainti on erinomainen: lähellä on niin Hepokullan koulu kuin Länsikeskuksen monipuoliset palvelutkin. Hyvät liikenneyhteydet takaavat helpon pääsyn Turun keskustaan ja muualle kaupunkiin. Tartu tilaisuuteen ja tee tästä talosta perheellesi uusi koti Länsikeskuksen suositulla alueella!
Tiedustelut ja esittelyt: Roof LKV Turku Varsinais-Suomi
Ari Patama Myyntijohtaja, Kiinteistönvälittäjä LKV, KiAT
0400401113 ari.patama@roof.fi
Hintatiedot
Velaton hinta
173 000 €
1227 €/m2
Kiinteistövero 336,83 / vuosi
Muut kustannukset Talossa ei tällä hetkellä asuta, joten kustannuksista ei ole tietoa.
Tehdyt korjaukset ja remontit
Rakennukseen on tehty paljon korjauksia/laitteiston päivityksiä vuosien varrella. Mm. öljykattila ja poltin on uusittu v. 1990. Öljysäiliö on tarkastettu 06/2014. Pääsisäänkäynnin ulko-ovi on uusittu 1990-luvulla. Rakennuksen tonttiviemäri on uusittu kunnan jätevesiverkosta sokkelin sisäpuolelle asti ns. sujuttamalla muoviputkeksi v. 2004. Käyttövesiputket on uusittu v. 2015, samaan aikaan on rakennuksen sisäpuoliset viemärit sukitettu. Katon pelti- ja aluskate on uusittu v. 2007, rännit ja syöksytorvet v. 2015. Ilmalämpöpumppu on asennettu v. 2008. Ikkunat on uusittu kolmessa vaiheessa v. 2014-2019 (paitsi kellarikerroksen ikkunat). Keittiö on uusittu v. 2021. Olohuoneen varaava takka on muurattu v. 2021. Julkisivujen puuvuoraus on maalattu viimeksi 2022.
Tontti
Kiinteistötunnus/laitostunnus |
853-76-12-11 |
|---|---|
Energialuokka |
D2018 |
Tontin pinta-ala |
785m2 |
Tontin omistus |
Oma |
Sijainti
Markulantie 145
20320,
Länsikeskus,
Turku