erillistalo, 5H+K+S
399 000 € • 113.0 m2 • 3 530,97 €/m2
Konsulinrinne 4,
02450,
Sundsberg,
Sundsberg
erillistalo, 5H+K+S
Konsulinrinne 4, 02450, Sundsberg, Sundsberg
399 000 €
113 m2 • 3 530,97 €/m2
Yhtiövastike
740,15 €
Tontti
Valinnainen
Kerros
1-2/ 2
Tee tarjous: Konsulinrinne 4
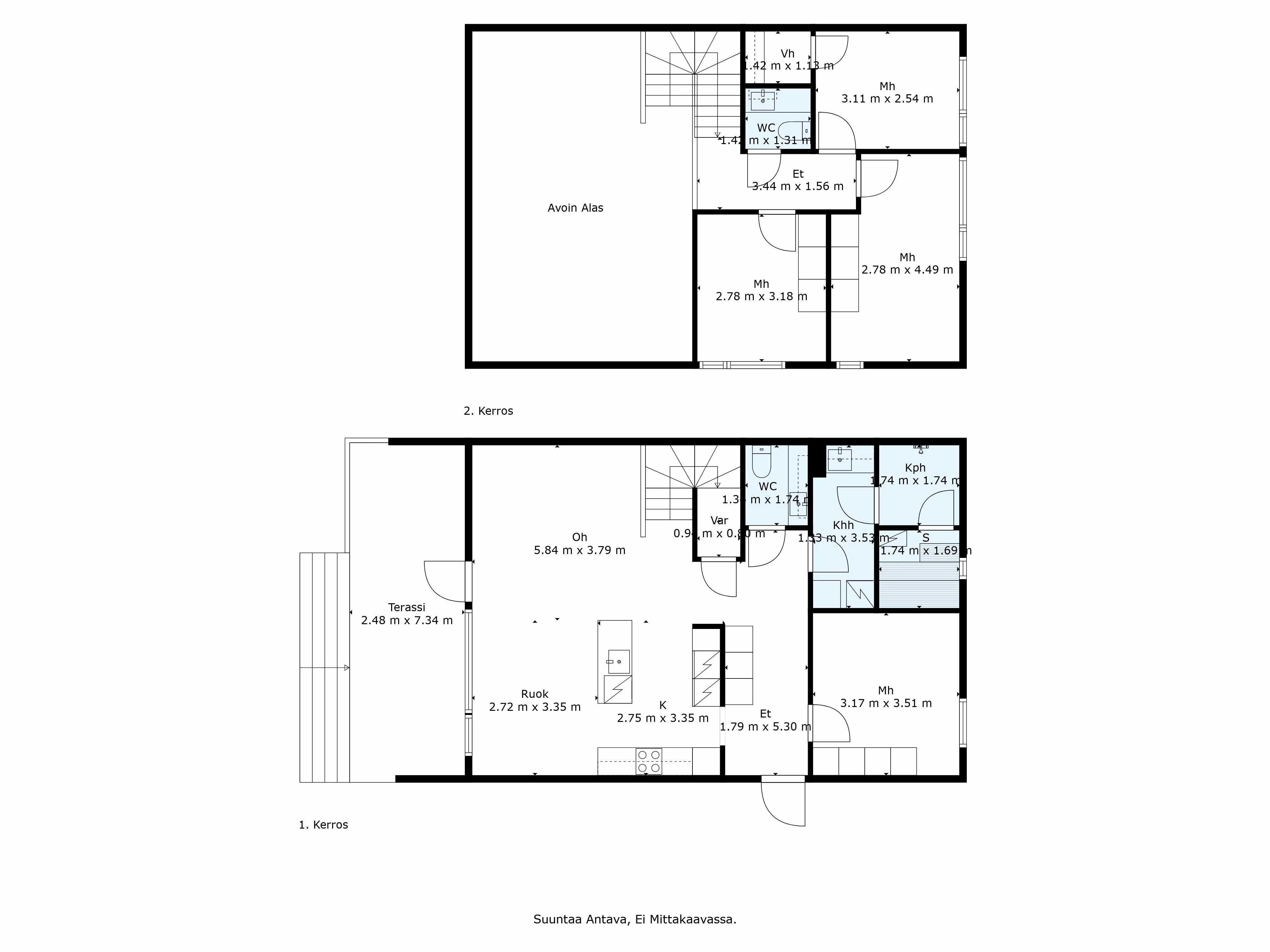
Kun astut sisään tähän kotiin, suuri ja korkea olohuone-keittiö lumoaa ensi näkemältä. Kodin alakerta on poikkeuksellinen yhdistelmä korkeaa tilaa ja lattiaan saakka ulottuvia ikkunoita, jotka tulvivat luonnonvaloa sisään ja sitovat pihan osaksi kotia. Laadukas Puustellin keittiö tarjoaa reilusti työtilaa ja toimivat ratkaisut kokkaajalle. Pohja on suunniteltu arjen sujuvuus edellä.
Alakerrassa on yksi makuuhuone, ja yläkerrasta löytyvät kolme muuta – juuri sopiva kokonaisuus perheelle tai etätyötä arvostavalle. Kodinhoitohuone helpottaa pyykkihuoltoa, ja saunan lempeät löylyt kutsuvat rentoutumaan. Rauhallinen kadunvarsi ja luonnon läheinen sijainti tekevät sijainnista ainutlaatuisen.
Autokatos ja varasto ovat kätevästi sisäänkäynnin yhteydessä, joten tavaroiden roudaaminen on mukavaa säällä kuin säällä. Sekä etu- että takapiha antavat mahdollisuuksia perheen yhteiseen oleskeluun, tilaa kyllä riittää. Jäähdyttävä ilmalämpöpumppu pitää sisäilman miellyttävänä kesähelteillä ja olohuoneen isojen ikkunoiden moottoroidut verhot antavat yksityisyyttä sekä suojaa. Yhtiö sijaitsee valinnaisella vuokratontilla, joten voit valita mielesi mukaan joko tontinvuokravastikkeen tai tontin lunastuksen.
Sijainti Sundsbergissa on erinomainen: meri, rannat, luontopolut ja lenkkimaastot ovat lähellä. Koulu ja useat päiväkodit löytyvät lähietäisyydeltä, joten arjen logistiikka toimii. Kauppaan sisältyy olohuoneen korkeaan tilaan räätälöidyt moottoroidut verhot sekä ilmalämpöpumppu. Tervetuloa tutustumaan – tämä koti yhdistää laadun, tilan ja luonnonläheisyyden tavalla, joka tuntuu arjessa joka päivä.
MYYNTI & YKSITYISESITTELYT:
SAMI PELKONEN | Kiinteistönvälittäjä, LKV, Kaupanvahvistaja
040 830 1029 | sami.pelkonen@roof.fi
IG: @samipelkonenlkv
www.samipelkonen.com
Hintatiedot
Velaton hinta
399 000 €
3531 €/m2
Yhtiövastike 740,15 €
Hoitovastike 406,80 €
Vesimaksu 23 € / hlö / kk
Muut kustannukset Vesimaksu on ennakkomaksua, joka tasataan kulutuksen mukaan
Tehdyt korjaukset ja remontit
yhtiö valmistunut 2021. Yhtiön hallitus katsoo ettei vuosille 2024 - 2025 ole tiedossa sellaisia peruskorjaustoimenpiteitä, joilla olisi merkittävä vaikutus yhtiön tai osakkaiden talouteen. Myyjä ei vastaa yhtiön myöhemmin päättämistä remonteista eikä niistä aiheutuvista huoneistokohtaisista kustannuksista.
Tulevat korjaukset ja remontit
Ei tiedossa olevia korjauksia.
Taloyhtiö
Taloyhtiön nimi |
As Oy Sundsbergin Konsuli, Kirkkonummi |
|---|---|
Kiinteistön nimi |
Sevifi Oy |
Yhtiön tilat ja varustelu |
Pyörävarasto, väestönsuoja, ulkovarasto ja kaapeli-tv |
Energialuokka |
B2018 |
Tontin pinta-ala |
9m2 |
Tontin omistus |
Valinnainen |
Tontin vuokra-aika |
28.11.2069 |
Sijainti
Konsulinrinne 4
02450,
Sundsberg,
Sundsberg