







































































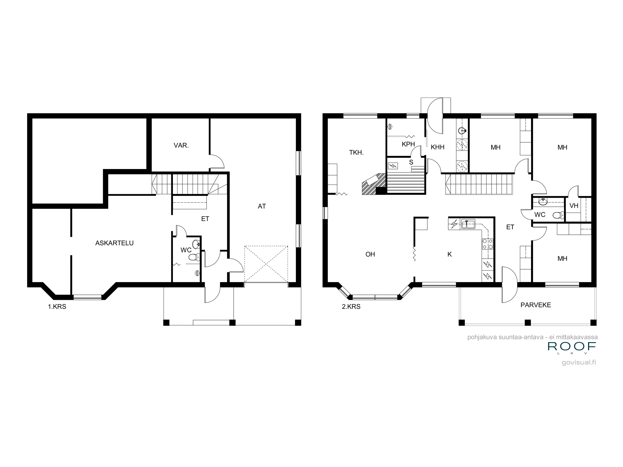
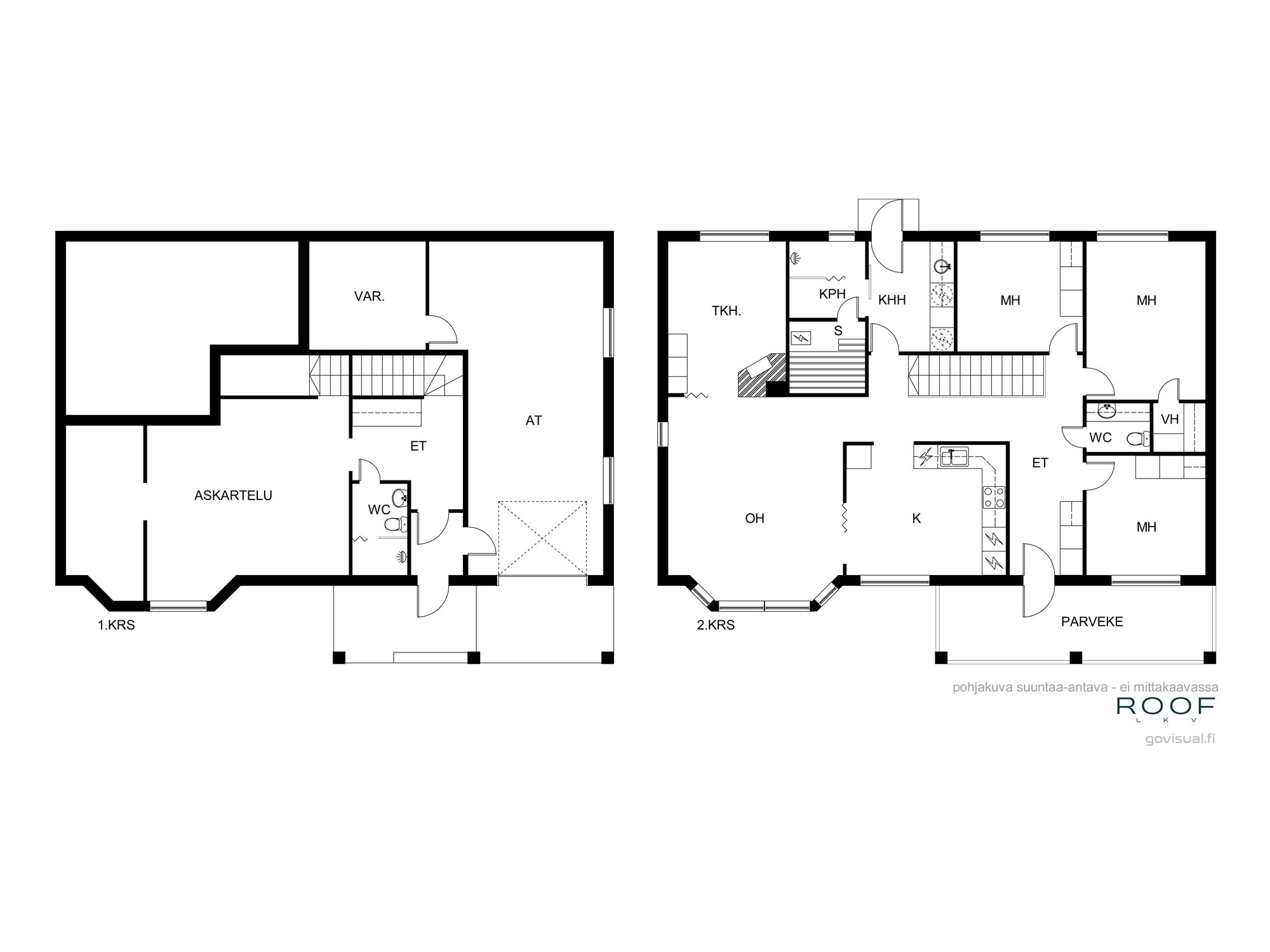
omakotitalo, 5h+k+kph+s+wc+kph/wc+vh+autotalli
283 000 € • 127.0 m2 • 2 228,35 €/m2
Loukantie 9,
21280,
Huhko,
Raisio
omakotitalo, 5h+k+kph+s+wc+kph/wc+vh+autotalli
Loukantie 9, 21280, Huhko, Raisio
283 000 €
127 m2 • 2 228,35 €/m2
Tontti
Vuokra
Kerroksia
2
Tee tarjous: Loukantie 9
Etsitkö perheellesi viihtyisää kotia rauhalliselta ja halutulta alueelta? Tämä Raision Huhkossa sijaitseva omakotitalo tarjoaa erinomaiset puitteet mukavaan asumiseen. Talon tilava ja valoisa olohuone kutsuu rentoutumaan lämpöä varaavan takan ääreen, ja keittiö, joka on remontoitu vuonna 2011, tarjoaa modernit puitteet ruoanlaittoon.
Kolme makuuhuonetta ja kaksi askartelu-/harrastetilaa alakerrassa tarjoavat runsaasti tilaa perheen tarpeisiin. Saunassa pääset nauttimaan rentouttavista löylyistä, ja kodinhoitohuoneen oma uloskäynti helpottaa arjen sujuvuutta.
Talon pihalla on mukava terassi, jossa voit nauttia kesäpäivistä. Läheltä löytyvät päiväkoti ja monipuoliset palvelut, kuten Länsikeskus ja Kauppakeskus Mylly, tekevät arjesta sujuvaa. Hyvät liikenneyhteydet takaavat helpon kulkemisen.
Tartu tilaisuuteen ja tule tutustumaan tähän kodikkaaseen taloon, joka on valmis toivottamaan uuden perheen tervetulleeksi!
Tiedustelut ja esittelyt: Roof LKV
Ari Patama Myyntijohtaja, Kiinteistönvälittäjä LKV, KiAT
0400401113 ari.patama@roof.fi
Hintatiedot
Velaton hinta
283 000 €
2228 €/m2
Kiinteistövero 328 / vuosi
Lämmityskustannukset (muu kuin sähkö, €/kk) 200,00 €
Lämmityskustannukset (sähkö, €/kk) 200,00 €
Muut kustannukset Kulutusperusteiset kustannukset voivat vaihdella merkittävästikin riippuen mm. sopimuksista, kulutustottumuksista ja henkilömääristä. Todelliset kustannukset voivat siis olla ilmoitettua suuremmat tai pienemmät.
Tehdyt korjaukset ja remontit
Keittö remontoitu 2011. Yläkerran wc 2011. Kattoremontti 2014. Käyttövesiputket uusittu 2018
Tontti
Kiinteistötunnus/laitostunnus |
680-6-6013-4-L1 |
---|---|
Energialuokka |
E2013 |
Tontin pinta-ala |
652m2 |
Tontin omistus |
Vuokra |
Tontin vuokra-aika |
31.01.2047 |
Sijainti
Loukantie 9
21280,
Huhko,
Raisio