Hero banner image

Vanhankyläntie 41, 04400, Järvenpää

Get a Roof
Myyntihinta: 199 000 €
Velaton hinta: 199 000 €
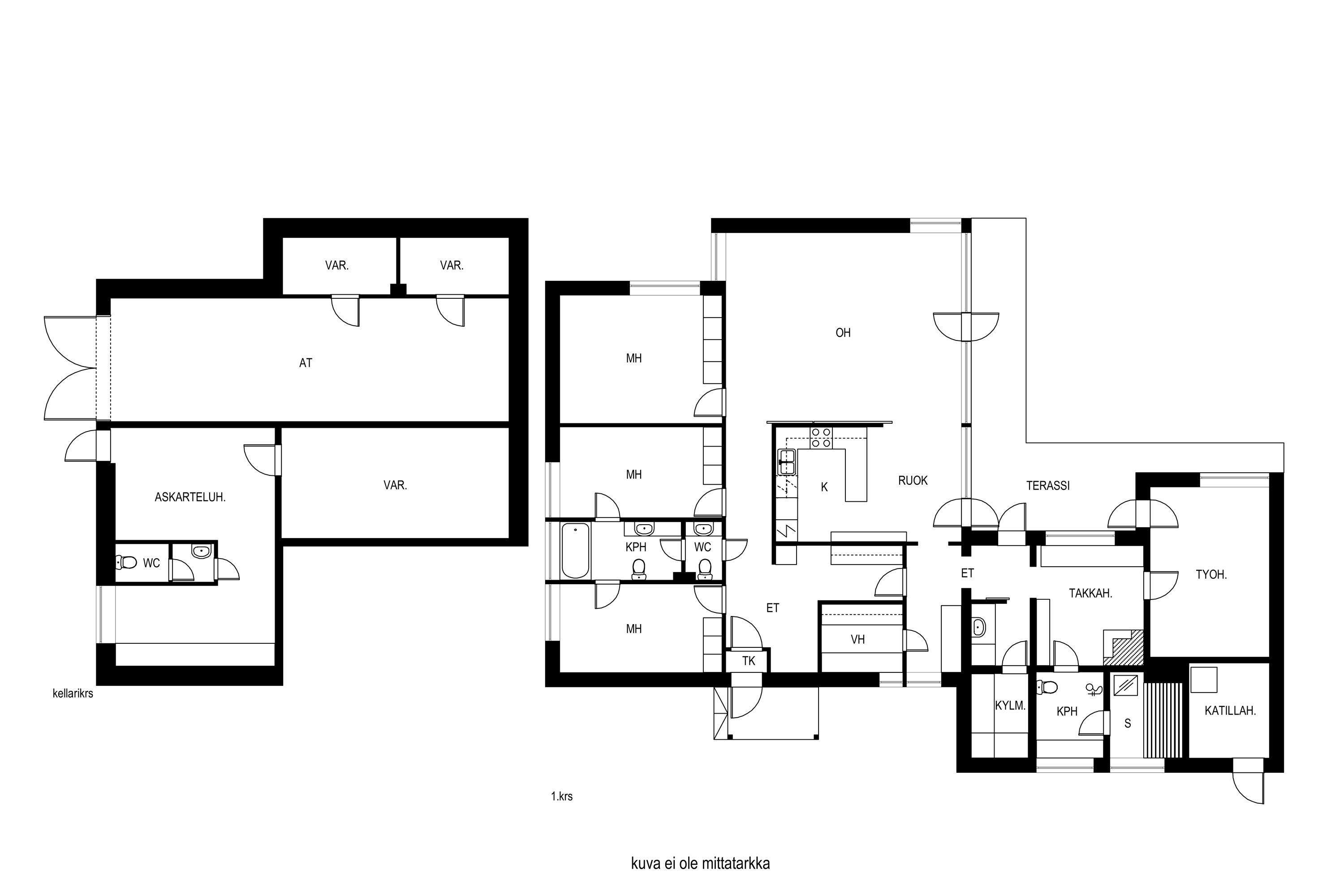
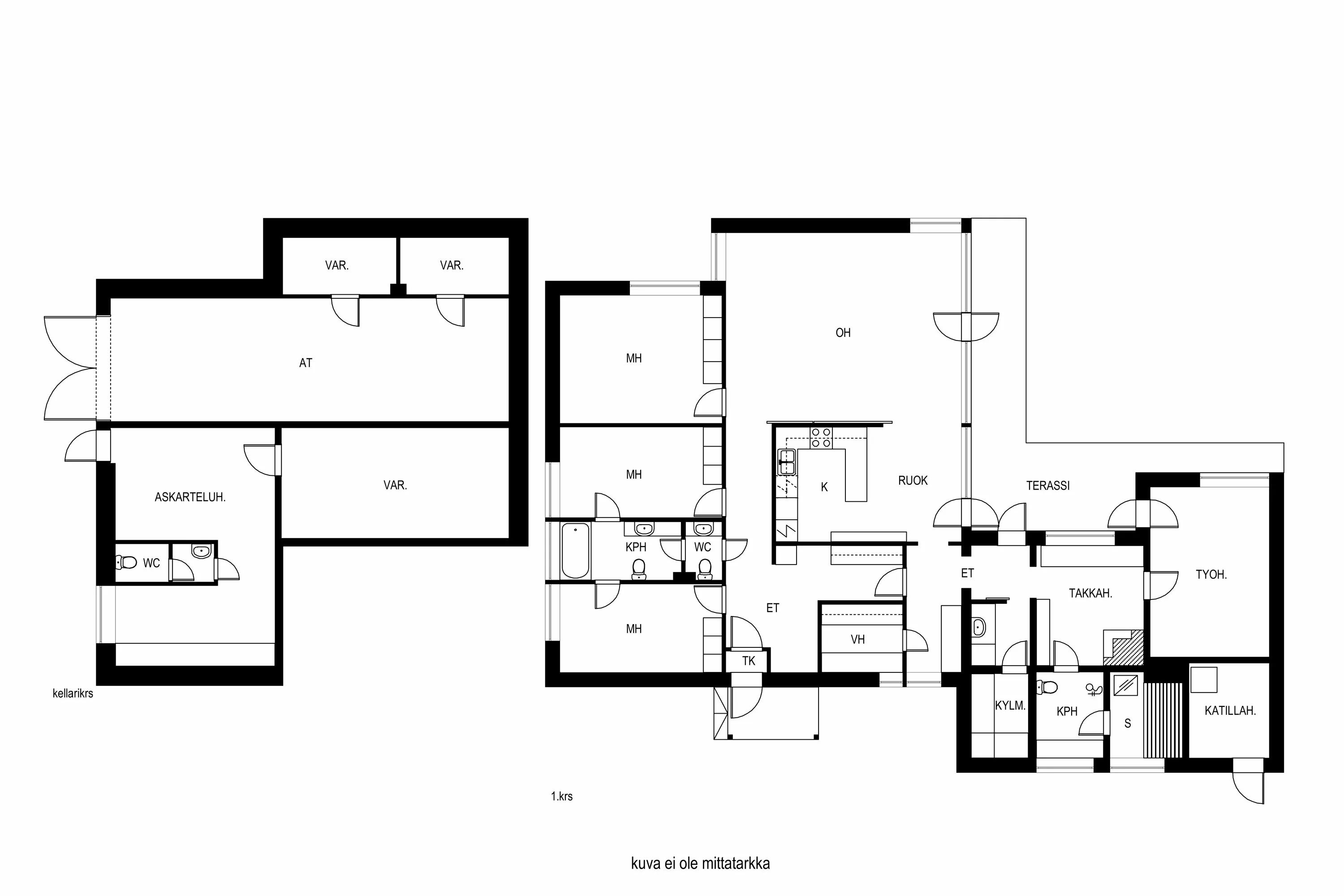
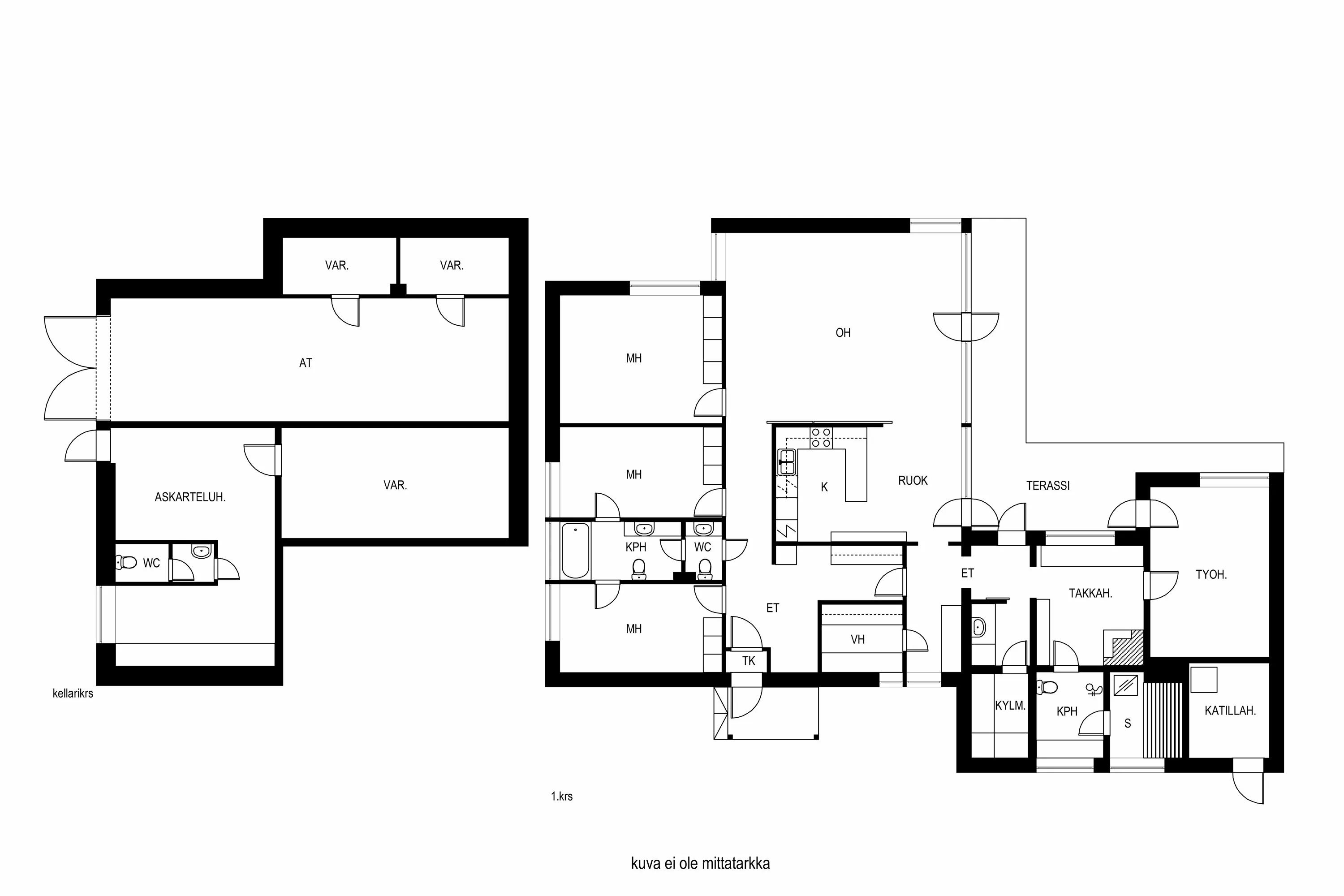
Asuinpinta-ala: 150 m2
Huoneluku: 5h, k, kh, s, autotalli
Rakennusvuosi: 1971
Talotyyppi: omakotitalotontti
Kaupunginosa: Loutti
Kaupunki: Järvenpää

Tontti loistavalla paikalla, jossa täysin saneerattava/purettava okt

Apartment image

Järvenpään Loutissa loistavalla paikalla sijaitseva tontti, jossa purettava omakotitalo. Talo on mahdollista myös saneerata, mutta asuinkuntoon saattaminen vaatii mittavan peruskorjauksen koko rakennuksen osalta.

Talossa on sattunut vesivahinko, jonka seurauksena pukuhuone ja takkahuone on purettu. Kunto on muuten alkuperäinen ja tämä kohde vaatii laajan perusparannuksen asuinkuntoon saattamiseksi.

Tontilla on rakennusoikeutta 412 k-m2. Tontille saa rakentaa kaksiasuntoisia asuinrakenuksia.

Tässä tarjolla hyvä tontti hyvältä paikalta. Järvenpään keskustan kaikki pa...

Apartment image
Target image Target image Target image Target image Target image Target image Target image Target image Target image Target image Target image Target image Target image Target image Target image Target image Target image Target image

Sijainti

Order demo

Varaa esittely

Calendar

Kiinnostuitko?

Ehdota meille sinulle sopivaa aikaa niin valittajamme on sinuun yhteydessa mahdollisimman pian.

Ota yhteytta

Ota yhteytta

Contact image Contact image
Valtteri Parikka
Puh: 0401614131
Valtteri Parikka

Katso muut kohteet Loutti

Real estate object
rivitalo
Mannilantie 7b, 04400, Järvenpää
4h+k+kph
Real estate object
rivitalo
Tervanokantie, 04400, Järvenpää
2h+k