Hero banner image

Gunillantie 19, 00870, Helsinki

Get a Roof
Myyntihinta: 399 000 €
Velaton hinta: 399 000 €
Hoitovastike: 696,00 €
Asuinpinta-ala: 87 m2
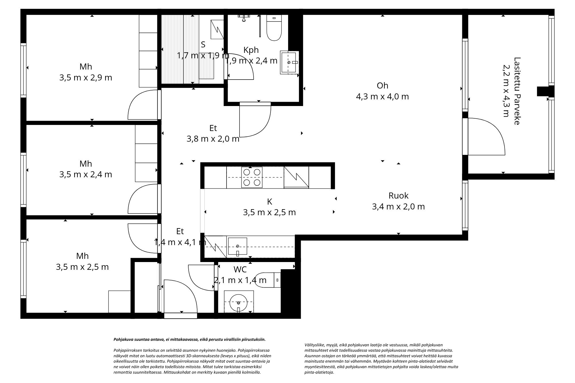
Huoneluku: 4h + k + s + kph + 2wc + lasitettu parveke
Rakennusvuosi: 2016
Talotyyppi: kerrostalo
Energialuokka: B2018
Kaupunginosa: Kruunuvuorenranta
Kaupunki: Helsinki

Ylimmän kerroksen valoisa 4h Kruunuvuorenrannassa!

Apartment image

Tässä kodissa kaikista ikkunoista avautuu kaunis kallioinen mäntymetsä!
Asunnossa on toimiva pohjaratkaisu: makuuhuoneet ja oleskelutilat on sijoitettu eri puolille huoneistoa. Tilava sauna, kylpyhuone, ja erillinen wc tuovat mukavuutta arkeen.
Korkealta lounaaseen suuntautuvalta lasitetulta parvekkeelta näkyvät Kalasataman tornit ja Kruunusiltojen pyloni, sekä upeat auringonlaskut!

Kolme makuuhuonetta sijaitsevat omassa rauhassaan, kun taas huoneiston toisella puolella on avara olohuone ja ruokailutila. Erillinen keittiö on ruokailutilan yhteydessä.
​Kylpyhuone ...

Apartment image
Target image Target image Target image Target image Target image Target image Target image

Sijainti

Order demo

Varaa esittely

Calendar

Kiinnostuitko?

Ehdota meille sinulle sopivaa aikaa niin valittajamme on sinuun yhteydessa mahdollisimman pian.

Ota yhteytta

Ota yhteytta

Contact image Contact image
Helin Ranne
Puh: 040 776 5893
Helin Ranne

Katso muut kohteet Kruunuvuorenranta

Real estate object
kerrostalo
Gunillantie 19, 00870, Helsinki
4h + k + s + kph + 2wc + lasitettu parveke
Real estate object
kerrostalo
Koirasaarentie 32, 00870, Helsinki
2h, avok, kph, terassi