Hero banner image

Ansaripolku 6, 06400, Porvoo

Get a Roof
Myyntihinta: 411 000 €
Velaton hinta: 411 000 €
Hoitovastike: 180,00 €
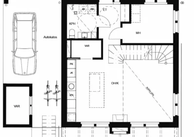
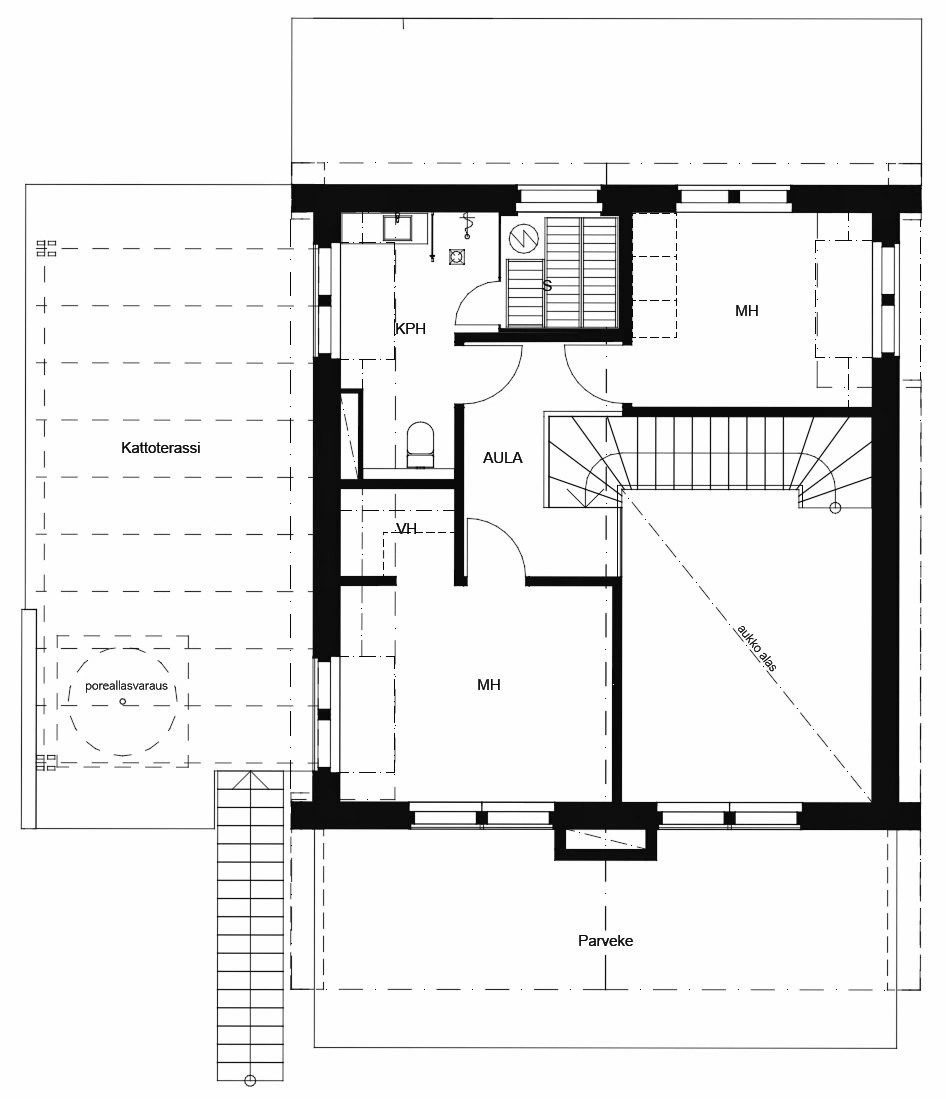
Asuinpinta-ala: 118 m2
Huoneluku: 4h, k, s, 2kph
Rakennusvuosi: 2027
Talotyyppi: paritalo
Energialuokka: B2018
Kaupunginosa: Haikkoo
Kaupunki: Porvoo

Haikkoon Haven - ainutlaatuinen uudiskohde Porvoon Haikkoossa!

Apartment image

Ansaripolku 6 D4 Haikkoon Haven nousee rauhalliselle kadulle Porvoon Haikkoossa, arvostetulle alueelle, jossa historia, meri ja metsä kohtaavat. Kahdeksan uuden kodin kokonaisuus istuu maisemaan huolella ja harkiten. Arkkitehtuuri on selkeää ja ajatonta, mutta jokainen koti tarjoaa mahdollisuuden tehdä siitä aidosti omannäköinen.

Kokonaisuuteen kuuluu kuusi erillistaloa sekä yksi paritalo, jonka muodostavat asunnot C3 ja D4. Nämä asunnot poikkeavat muista kokonaisuudessa tarjoten paritaloasumisen parhaat puolet.

Sijainti on samalla rauhallinen ja käytännöllinen. Porvoon kes...

Apartment image
Target image Target image Target image Target image Target image Target image Target image Target image Target image Target image Target image Target image Target image Target image Target image Target image Target image Target image Target image Target image Target image Target image Target image Target image Target image Target image

Sijainti

Order demo

Varaa esittely

Calendar

Kiinnostuitko?

Ehdota meille sinulle sopivaa aikaa niin valittajamme on sinuun yhteydessa mahdollisimman pian.

Ota yhteytta

Ota yhteytta

Contact image Contact image
Tommi Kujala
Puh: 040 5353556
Tommi Kujala

Katso muut kohteet Haikkoo

Real estate object
erillistalo
Ansaripolku 6, 06400, Porvoo
4h, k, s, 2kph
Real estate object
kerrostalo
Suolaketie 10, 06400, Porvoo
2h+k+kph+vh+lasitettu p