Yhtiövastike

442,80 €

Tontti

Oma

Kerros

2/ 3

YDINKESKUSTAN KERROSTALOASUNTO

Asemakadulta tuli myyntiin tilava perheasunto. Huoneisto sijaitsee toisessa asuinkerroksessa, Keskusta-asumisen kaikki edut ovat tässä; kaupat, koulut, harrastukset, terveydenhuolto kaikki aivan lähietäisyydellä.

HUONEISTO
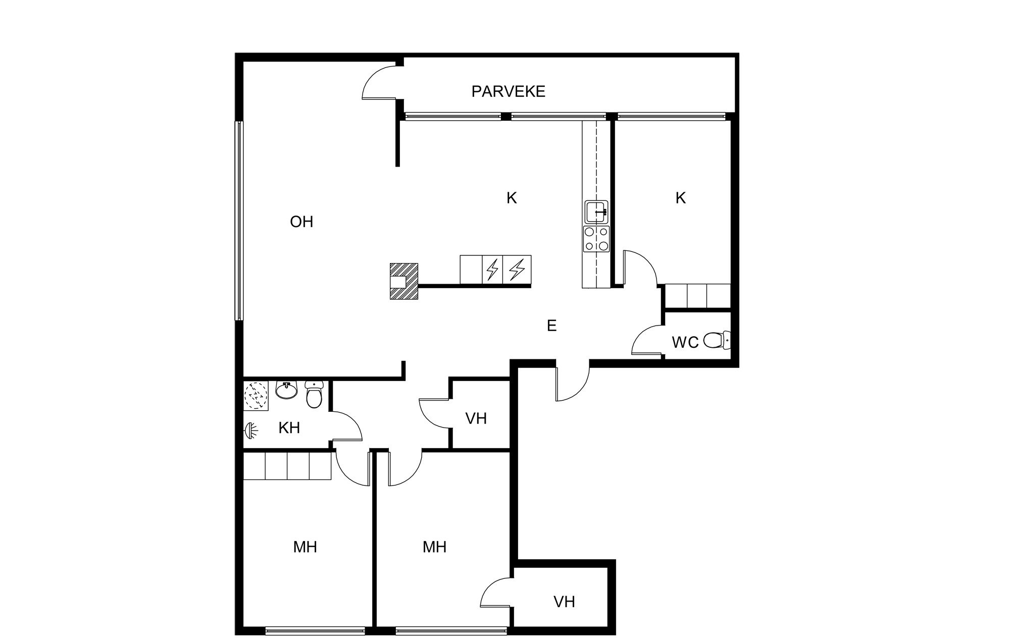
Päätyhuoneisto, jossa ikkunoita on kolmeen ilmansuuntaan ja seinänaapuri ainoastaan yhden makuuhuoneen seinän takana. Huoneisto käsittää kolme makuuhuonetta, keittiön joka on avoinna olohuoneeseen, kaksi vaatehuonetta, kaksi wc:tä ja tilavan lasitetun parvekkeen.
Erikoisuutena olohuoneen tunnelmaa tuova avotakka.
Huoneisto on valoisa isojen ikkunoiden ansiosta. Huoneiston keittiö ja kylpyhuone on remontoitu muutama vuosi sitten. Täysin muuttovalmis, heti vapaa huoneisto odottaa vain uutta omistajaansa.

SIJAINTI
Salon kaupunki tarjoaa vilkasta kaupunkikulttuuria. Suomen parhaan torin ja asunnon välissä on vain yksi kortteli ja joki. Kauppakeskus on rajanaapurina, koulut ja päiväkodit juoksumatkan päässä, linja-auto- ja juna-asemat nimen mukaisesti aivan vieressä.

TALOYHTIÖ
taloyhtiö muodostuu 25 huoneistosta. Hyvin isännöity taloyhtiö on teettänyt kaikki tärkeät remontit, viimeisimpänä viemärisaneeraus. Yhtilainaosuus 8226 eur jää myyjän maksettavaksi.

Lämpimästi tervetuloa tutustumaan tähän viihtyisään kotiin.

Juha Lehtonen
Roof LKV OY
juha.lehtonen@roof.fi
+358 50 4034132

Hintatiedot

Velaton hinta

155 000 €

1435 €/m2

Yhtiövastike 442,80 €

Hoitovastike 442,80 €

Muut kustannukset Hoitovastike 442,80 eur/kk. Mahdollinen autopaikka, katos 20 eur/kk, autopaikka sähkö 15 eur/kk, pihapaikka 5 eur/kk. Vesiennakko, tasaus kulutuksen mukaan. Kylmä vesi 4,78 eur/m3, lämmin vesi 9,86 eur/m3. Sähkö kulutuksen mukaan, oma sähkösopimus. Saunamaksu 10 eur/kk.

Tehdyt korjaukset ja remontit

2025

Viemärien sukitus

2023

Komposiittiputkiston ylilämpösuojan asennus lämmönjakohuoneeseen

2023

VSS-Tarvikkeita päivitetty

2023

Porrashuoneiden eristystä parannettu välikatolla

2022

Vanhat postiluukut vaihdettu leveämpiin .

2021

Lämmitysjärjestelmään hankittu varapumput

2021

Asuinrakennuksen vesikaton osittainen paikkamaalaus

2021

Mariankadun seinän levyjen maalaus ruuvien kiristys, sekä ikkunapeltien maalaus

2021

Isomman bunkkerin kunnostus (uppopumppujen korjaus ja märkien betonilaudoituksien poisto)

2020

Ilmastointikanavien puhdistus ja naakka-verkkojen asennus

2020

Kattoikkunoiden korjauksia ja katon maalaustarkastus

2020

Porraskäytävien, autotallien ja pyörävaraston ovien huoltomaalaus

2019

Vesikalusteiden kuntotarkastus (Vodastop)

2019

Rännien saumakohtien tiivistäminen

2019

Porraskäytävien Ulko-ovien kunnostus .

2019

Parvekkeiden ja kaiteidenkuntotarkastus

2018

Porrashissiselvitys

2018

Porraskäytävien ja välikäytävien valaistuksen uusiminen

2018

Katutason välikäytävien paikkauskorjaukset ja maalaukset .

2018

Julkisivun korjaus

2018

lukituksen saneeraus(Iloq)

2017

saunaosaston pukuhuoneen ja käytävän maalaus

2017

autokatos kunnostettu

2017

julkisivun tarkastus

2016

sokkelin maalaus

2015

muuntamo poistettu yhtiön tiloista

2015

yhteisantennilaitteiston uudistaminen

2015

pesutilojen kosteuskartoitus

2015

pysty- ja pohjaviemärien pesu ja kuvaus

2012

piha-alueen kunnostus

2012

rännien syöksyt uusittu ja asennettu lumiesteet

2011

katon maalaus

2010

pihan sadevesijärjestelmän uusiminen

2009

ilmastointikanavien puhdistus

2008

käyttövesiputkiston uusiminen

2005

paalutus tehty koko talon osalta

2005

kaukolämpöön liittyminen

2005

taloyhtiön saunatilojen uusiminen

2005

pääviemärin runkolinjat talon alla uusittu

2002

patteriverkoston tasapainotus

1997

parvekkeiden maalaus

1995

kadun puoleisten ikkunoiden uusiminen


Tulevat korjaukset ja remontit

Ryhmätilojen kosteuden kehitystä seurataan, porrashuoneiden ulko-ovien uusiminen, palohälyttimet yhtiön vastuulle, märkätilat kylpyhuoneremonttien yhteydessä.

Taloyhtiö

Taloyhtiön nimi

Asunto-Oy Salon Asemakatu 4

Isännöitsijän yhteystiedot

Teemu Korvenpää

Kiinteistön nimi

Kiinteistösalo Oy, 0400 534680

Yhtiön tilat ja varustelu

Kellarikomero ja urheiluvälinevarasto

Energialuokka

F2018

Autokatosten määrä

10 kpl

Autotallien määrä

2 kpl

Tontin pinta-ala

1m2

Tontin omistus

Oma

Sijainti

Asemakatu 4
24100, Keskusta, Salo

Muita kohteita alueella

Katso kaikki

Varaa ilmainen arviointikäynti

Etkö ole vielä myynyt asuntoasi? Anna meidän arvioida se.

[contact-form-7 id="18500" title="Listings contact"]