omakotitalo, 4-5h,k,kph,s,khh,2wc,2vh,AT,pihasauna
225 000 € • 180.0 m2 • 1 250,00 €/m2
Lintulammentie 43 A,
91910,
Tupos,
Tupos
omakotitalo, 4-5h,k,kph,s,khh,2wc,2vh,AT,pihasauna
Lintulammentie 43 A, 91910, Tupos, Tupos
225 000 €
180 m2 • 1 250,00 €/m2
Tontti
Oma
Kerroksia
2
Tee tarjous: Lintulammentie 43 A
Lintulammentiellä, Tupoksessa sijaitsee tämä hurmaava omakotitalo, joka tarjoaa tilaa ja mukavuutta isommallekin perheelle. Iso, noin 0,75 ha OMA tontti peltojen keskiössä.
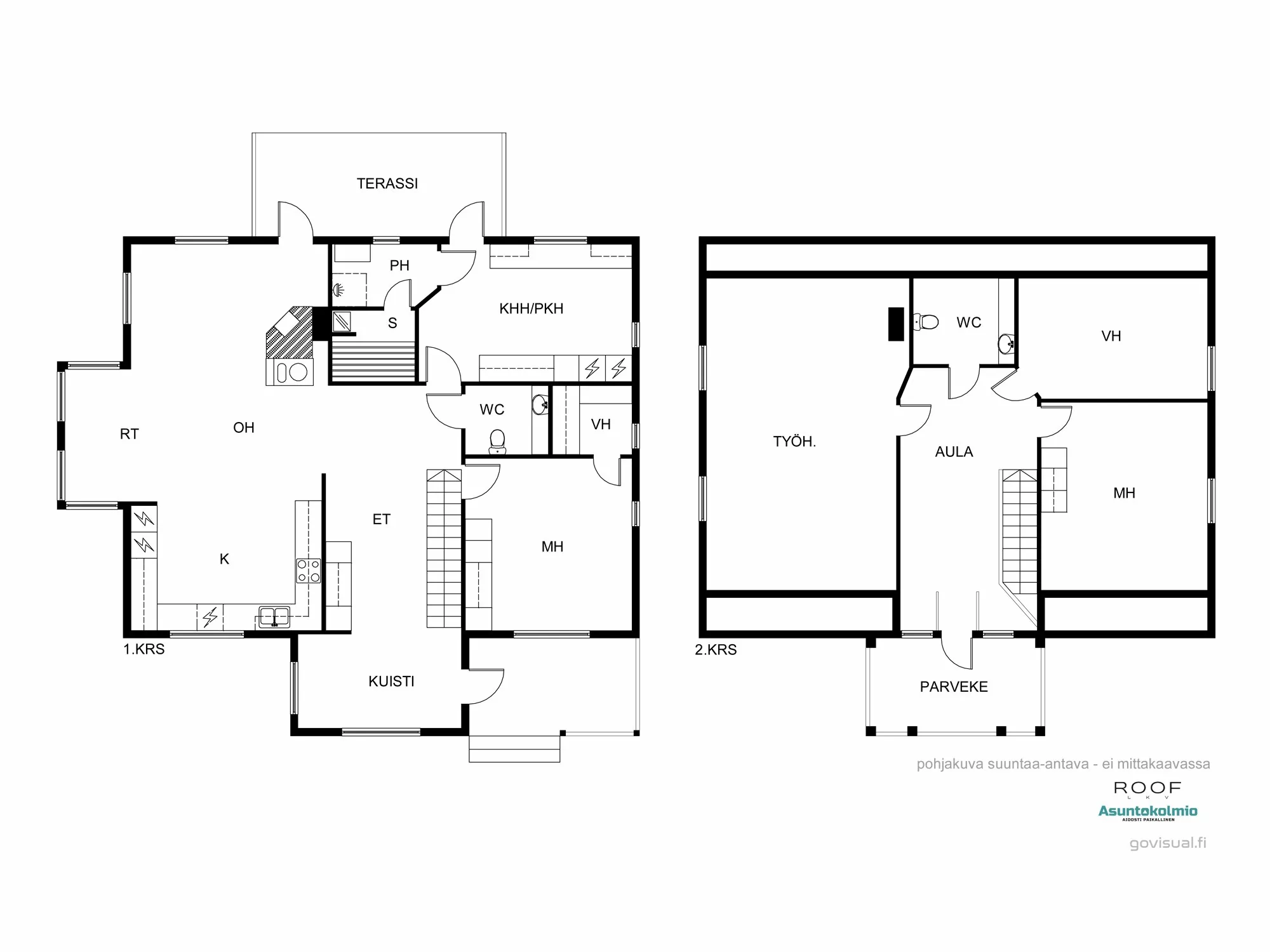
Vuonna 2000 valmistunut Perinne -tyylinen omakotitalo alkuperäiseltä omistajalta, jossa tilat kätevästi kahdessa kerroksessa. Tässä kodissa asuintilat ovat väljät ja valoisat luoden kodikkaan ja avaran tunnelman. Ison eteisen ja eteisaulan kautta käynti tilavaan olohuoneeseen sekä tupakeittiöön. Keittiön on hyvin varusteltu sekä sisältäen paljon kaappi- ja laskutilaa. Keskeisellä paikalla takkaleivinuuni, joka yhdessä ilmalämpöpumpun kanssa huolehtivat lämmityksestä. Isosta kodinhoitohuoneessa on oma uloskäynti sekä runsaasti kaappitilaa mikä sujuvoittaa arjen askareita. Perinteinen puusauna sekä kylpyhuoneen yhteydessä, että myös pihalla. Tunnelmallisen ulkosauna löylyissä arjen kiireet unohtuvat. Yläkerrassa yksi makuuhuone, vaatehuone ja wc-tila sekä iso aulatila, joka jaettavissa kahdeksi makuutilaksi tai käytettävissä sellaisenaan moneen käyttöön.
Talon pihapiiri on suojaisa ja vehreä. Pihan kruunaa kauniit omenapuut, kirsikkapuut sekä marjapensaat sekä koivut, jotka kesäisin ovat loistossaan. Pihalla lisäksi autotalli, pihasauna ja varastorakennuksia, jotka tarjoavat runsaasti säilytystilaa. Tontin ollessa oma, tuo vapautta ja mahdollisuuksia pihan hyödyntämiseen esimerkiksi hyötypuutarhan muodossa. Sijainti on rauhallinen, mutta silti palvelut ovat lähellä. Koulu, päiväkoti ja kauppa ovat vain muutaman kilometrin päässä. Liminkaan matka taittuu autoillen noin vartissa ja Ouluunkin alle puolessa tunnissa. Tämä koti tarjoaa loistavan yhdistelmän maaseudun rauhaa ja palveluiden läheisyyttä. Tartu tilaisuuteen ja tee tästä talosta uusi kotisi!
Lisätiedot ja esittelyt:
Laura Lyttinen
040 1388301
laura.lyttinen@roof.fi
Hintatiedot
Velaton hinta
225 000 €
1250 €/m2
Kiinteistövero 599,70 / vuosi
Tehdyt korjaukset ja remontit
2009
ilmalämpöpumppu asennettu.
2015
tapetteja uusittu, patterit uusittu, keittiön ja kylpyhuoneen hana uusittu.
2020
lattian hionta ja lakkaus, huoltomaalaus, koneellinen ilmanvaihto.
2025
wc uudet kalusteet.
Tontti
Kiinteistötunnus/laitostunnus |
425-403-3-58 |
|---|---|
Tontin pinta-ala |
0m2 |
Tontin omistus |
Oma |
Sijainti
Lintulammentie 43 A
91910,
Tupos,
Tupos