omakotitalo, 4-5h,k,2kph,2wc,khh,vh,AT,AK,pihasauna
299 000 € • 138.0 m2 • 2 166,67 €/m2
Merituuli 10,
90830,
Haukipudas,
Haukipudas
omakotitalo, 4-5h,k,2kph,2wc,khh,vh,AT,AK,pihasauna
Merituuli 10, 90830, Haukipudas, Haukipudas
299 000 €
138 m2 • 2 166,67 €/m2
Tontti
Vuokra
Kerroksia
1
Tee tarjous: Merituuli 10
Haukiputaan Länsituulesta 2018 rakennettu omakotitalo, jossa lämmin Autotalli-varasto ja autokatos sekä erillinen upea saunaosasto! Kaikki rakennukset lämmitetään kaukolämmöllä, vesikiertoisin lattialämmityksin.
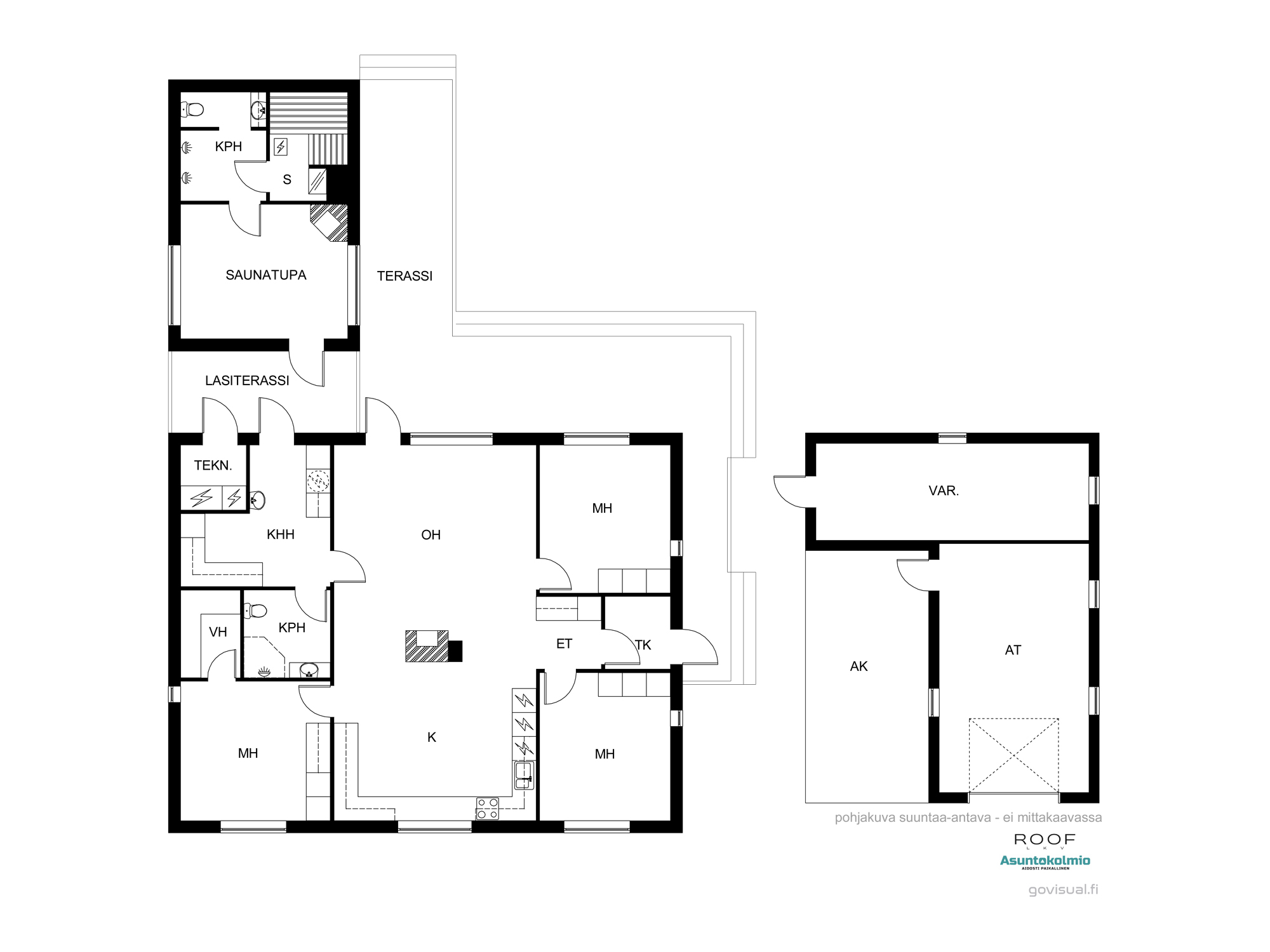
Tässä on tilojen puolesta kokonaisuus, jossa on mahdollisuuksia monenlaisiin tarpeisiin: Asuinrakennuksessa on kolme makuuhuonetta ja lisäksi on lämmin saunatupa sekä talousrakennuksessa lämmin iso varasto, johon vaikka etätyöpisteen saa helposti. Käytössä olevaa asuinpinta-alaa on 138 m² (asuinrakennus ja saunaosasto) ja talousrakennuksen kerrosalaakin on mukavasti 53 m², joten ihan heti ei tila lopu kesken!
Asuintilat on sijoiteltu käytännöllisesti yhtenäisen olohuone-keittiön ympärille. Olohuoneen ja keittiön erottaa toisistaan varaava takka ja olohuoneesta on näkymät hyvänkokoiselle takapihalle. Piha-aluetta kiertää pensasaidat, jotka ovat hyvää vauhtia kasvamassa tontin suojaksi. Kodin erikoisuuksiin kuuluu erillinen ihastuttava pihasaunaosasto, johon kulku lasitetun terassin kautta. Saunaosastossa on kylpyhuone-wc:n ja puulämmitteisen saunan lisäksi erityisen tunnelmallinen saunatupa, jossa lattialämmitys ja oma takka.
Tästä kokonaisuudesta ei puutu mitään ja asuinalue on mitä mainioin. Aivan kävelyetäisyydeltä löytyy Länsituulen uudehko koulu (1.-9.lk), Haukiputaan hyvämaineinen lukio ja kaksikin tykättyä päiväkotia. Haukiputaan todella monipuoliset päivittäispalvelut löytyvät käytännössä 2 km säteeltä ja harrastusmahdollisuuksia/vapaa-ajanviettopaikkoja löytyy taatusti joka lähtöön. Vesistöjen tuntumassa oleva Haukipudas onkin yksi suosituimmista asuinalueista Oulun seudulla. Etäisyydet Ouluun ja Iihin ovat kohtuulliset ja kulkuyhteydet yllättävänkin nopeat ja sujuvat.
Soittamalla varaat oman esittelyaikasi parhaiten:
Maarit Nissilä, LKV
0414678264
maarit.nissila@roof.fi
Kaksi vahvaa yhdistyvät! Asuntokolmio on nyt osa Roof LKV:tä. Samat tutut välittäjät, nyt valtakunnallinen verkosto ja entistäkin tehokkaampi myyntikonsepti! Lue lisää https://www.asuntokolmio.fi/blogijuttu/asuntokolmio-on-nyt-osa-roofia/.
Hintatiedot
Velaton hinta
299 000 €
2167 €/m2
Kiinteistövero 653,45 / vuosi
Muut kustannukset Asuinrakennuksen osalta kaukolämmön kulutus ollut n. 19 Mwh/v, jolloin lämmityskustannukset ollut keskimäärin noin 166 €/kk (=105 €/MWh). Kokonaiskulutus ollut n. 25 MWh/vuosi, sisältää myös saunaosaston ja autotalli-varaston lämmityksen (ei lämmitetty takkoja). Vesi-ja jätehuoltomaksut kulutuksen/käytön mukaan. Kaapeli-TV-maksu 9,90 €/kk. Valokuitu DNA-netti 45,53 €/kk. Kulutusperusteiset kustannukset voivat vaihdella merkittävästikin riippuen mm. sopimuksista, kulutustottumuksista ja henkilömääristä. Todelliset kustannukset voivat siis olla ilmoitettua suuremmat tai pienemmät
Tontti
Kiinteistötunnus/laitostunnus |
564-410-19-247-L2 |
|---|---|
Energialuokka |
B2013 |
Tontin pinta-ala |
1m2 |
Tontin omistus |
Vuokra |
Tontin vuokra-aika |
31.12.2076 |
Sijainti
Merituuli 10
90830,
Haukipudas,
Haukipudas