Hero banner image

Ingeborgintie 5, 00780, Helsinki

Get a Roof
Myyntihinta: 281 355,95 €
Velaton hinta: 285 000 €
Hoitovastike: 497,25 €
Rahoitusvastike: 50,93 € /kk
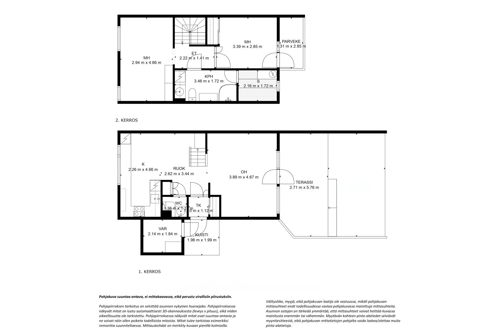
Asuinpinta-ala: 76,5 m2
Huoneluku: 3h+k+s+piha+takapiha
Rakennusvuosi: 1987
Talotyyppi: paritalo
Energialuokka: D2018
Kaupunginosa: Tapaninkylä
Kaupunki: Helsinki

Kaksikerroksinen kolmio kahdella pihalla Tapaninkylässä

Apartment image

Tervetuloa viihtyisään ja toimivaan kotiin rauhalliselle Tapaninkylän pientaloalueelle. Tämä kaksikerroksinen kolmio tarjoaa arkeen helppoutta ja asumiseen ripauksen luksusta – selkeä pohjaratkaisu, tyylikkäästi uudistetut tilat ja harvinainen kahden pihan kokonaisuus tekevät asunnosta erityisen.

Alakerran remontoitu keittiö hurmaa kivitasoillaan ja runsailla säilytys- sekä työskentelytiloilla. Keittiön yhteyteen mahtuu vaivatta isompikin ruokailuryhmä. Kylpyhuone ja sauna on uusittu, ja sisääntulokerroksen portaikkoa koristava luonnonkiviseinä tuo tilaan modernia ilmettä ja näytt...

Apartment image
Target image Target image Target image Target image Target image Target image Target image Target image Target image Target image Target image Target image Target image Target image Target image Target image Target image Target image Target image Target image Target image Target image Target image

Sijainti

Order demo

Varaa esittely

Calendar

Kiinnostuitko?

Ehdota meille sinulle sopivaa aikaa niin valittajamme on sinuun yhteydessa mahdollisimman pian.

Ota yhteytta

Ota yhteytta

Contact image Contact image
Marie Karukoski
Puh: 040 121 7368
Marie Karukoski

Katso muut kohteet Tapaninkylä

Real estate object
paritalo
Ingeborgintie 5, 00780, Helsinki
3h+k+s+piha+takapiha
Real estate object
kerrostalo
Tyynelänkuja 2, 00780, Helsinki
3h, k, s, kph, wc, terassi