kerrostalo, 3h,k,kph/wc,s,wc,lasitettu parveke,AP
129 000 € • 62.0 m2 • 2 080,65 €/m2
Hukkasenkuja 5,
90250,
Hiironen,
Oulu
kerrostalo, 3h,k,kph/wc,s,wc,lasitettu parveke,AP
Hukkasenkuja 5, 90250, Hiironen, Oulu
129 000 €
62 m2 • 2 080,65 €/m2
Yhtiövastike
272,42 €
Tontti
Vuokra
Kerros
2/ 3
Tee tarjous: Hukkasenkuja 5
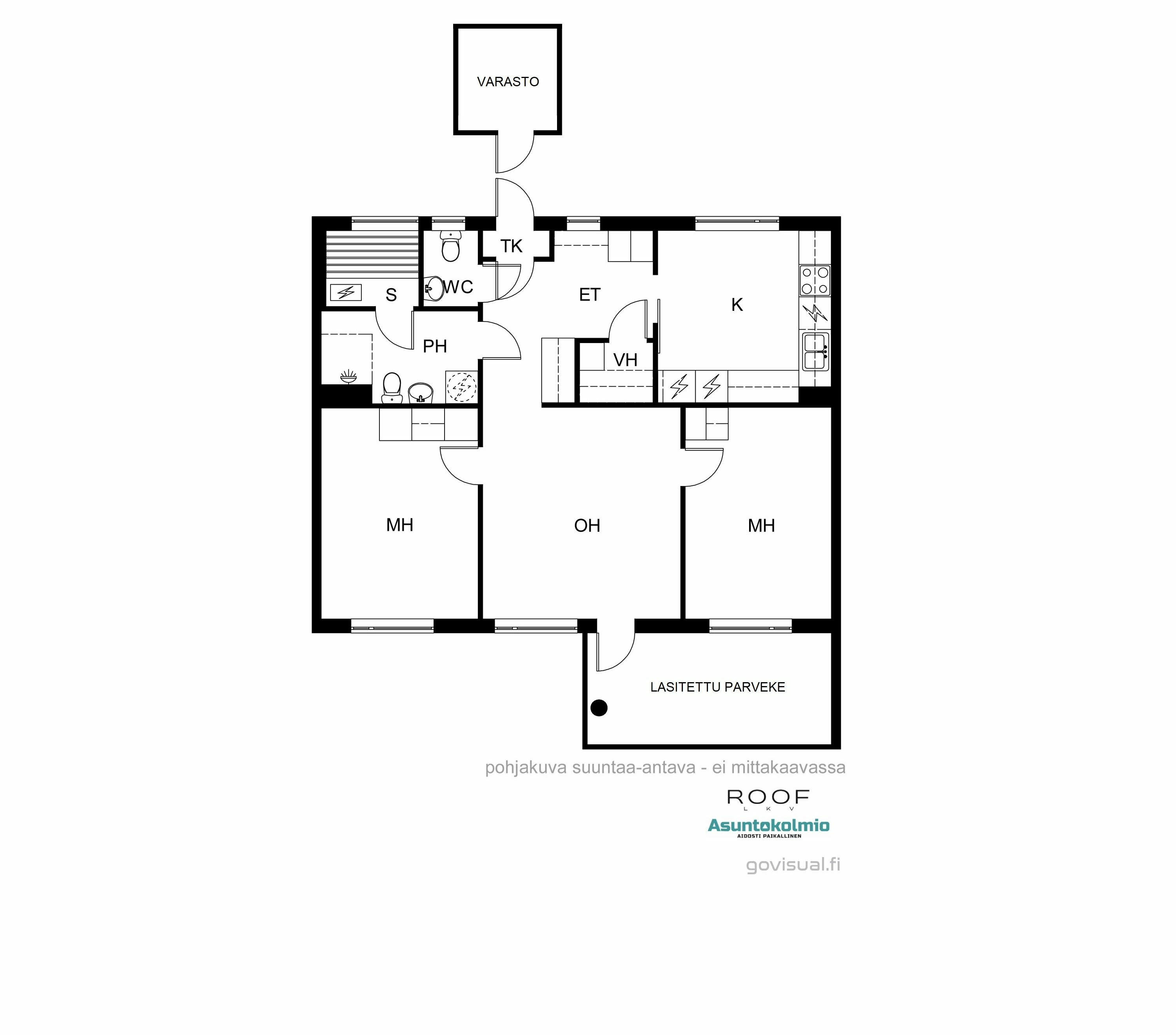
Tämä vuonna 2001 valmistunut kahden makuuhuoneen koti tarjoaa helppoa asumista rauhallisella alueella, jossa palvelut ja liikenneyhteydet ovat lähellä; Lidl, päiväkoti ja lähin bussipysäkki on kävelymatkan päässä.
Asunto sijaitsee hissillisen tiilitalon toisessa kerroksessa, ja sen kruunaa oma sauna, lasitettu parveke ja huoneistokohtainen autopaikka – tämä on täydellinen kokonaisuus arjen sujuvuutta arvostavalle perheelle ja ehdottomasti myös sijoitus asuntoa etsivälle.
Asunnossa on kaksi makuuhuonetta jotka ovat erillään toisista ja niissä on molemmissa vaatekaapistot. Säilytystiloja on reilusti erillisen vaatehuoneen ja etuoven vierellä olevan varaston ansiosta. Olohuoneesta on kulku lasitetulle parvekkeelle, josta avautuvat kauniit näkymät puistoalueeseen. Keittiö on saanut raikkaan ilmeen vuonna 2024 mm. uusituilla työtasoilla ja valaistuksella. Asunnon sisäpintoja on myös uusittu vuosien varrella, joten asunnon ilme on raikas ja yhtenäinen. Kylpyhuoneessa on lattialämmitys ja pesukoneliitäntä, ja erillinen wc tuo lisämukavuutta. Saunan lempeissä löylyissä rentoudut päivän päätteeksi. Asunnon käytännöllisyyttä lisää oma autopaikka.
Lähistöllä on mm. päiväkoti noin 100 metrin päässä ja Lidl joka on noin 300 metrin päässä ja Kaukovainion koulukaan ei ole kaukana sillä sinne on vain noin 1,4 km. Lähin bussipysäkki on noin 100 metrin päässä ja muut Kaukovainion monipuoliset palvelut ovat noin 1,3 km pyöräilymatkan päässä, joten liikkuminen on helppoa ilman omaakin autoa. Hiironen on viihtyisä ja rauhallinen asuinalue vain muutaman kilometrin päässä Oulun keskustasta. Alue tunnetaan vehreydestään ja erinomaisista ulkoilumahdollisuuksistaan – valaistut kuntoradat, hiihtoladut ja frisbeegolf-rata löytyvät aivan omalta asuinalueelta.
Tämä koti on mainio valinta perheelle, joka etsii viihtyisää ja käytännöllistä asuntoa rauhallisella sijainnilla päivittäispalveluiden läheltä– tervetuloa ihastumaan!
Soita ja sovi yksityisesittely!
Jukka-Pekka Halunen, LKV
040 138 8668
jukka.halunen@roof.fi
Kaksi vahvaa yhdistyvät! Asuntokolmio on nyt osa Roof LKV:tä. Samat tutut välittäjät, nyt valtakunnallinen verkosto ja entistäkin tehokkaampi myyntikonsepti! Lue lisää https://www.asuntokolmio.fi/blogijuttu/asuntokolmio-on-nyt-osa-roofia/
Hintatiedot
Velaton hinta
129 000 €
2081 €/m2
Yhtiövastike 272,42 €
Hoitovastike 272,42 €
Vesimaksu Vesimaksuennakko 16 € / kk / hlö (Ennakko, tasaus kulutuksen mukaan)
Autopaikan kustannukset(€/kk) 10 / kk
Tehdyt korjaukset ja remontit
2012
ilmanvaihtojärjestelmän nuohous.
2014
väestönsuojan tarkastus ja tiiveyskoe.
2015
aita tontin rajalle läpikulun estämiseksi.
2021
ulkoportaikon välitasanteiden parvekelasitusten kuntotarkastus.
2021
luhtikäytävän kaidelistojen uusiminen.
2021
hissin hälytyspuhelinlaitteiston uusiminen.
2022
väestönsuojan 10v määräaikaistarkastus ja tiiveyskoe.
2022
leikkipaikan vuositarkastus.
2022
käytöveden kiertovesipumpun uusiminen.
2024
ilmanvaihtojärjestelmän puhdistus, mittaus ja säätö.
2024
hissin käyttömoduuli uusittu ja lämmityslaite asennettu kuiluun.
Tulevat korjaukset ja remontit
Kunnossapitotarveselvityksellä 5 vuodelle suunnitteilla: seinän vierustaisen laatoituksen tasoitus ja kasvillisuuden poistaminen/siistiminen. Leikkipaikan vuositarkastus ja tarvittavat korjaukset. Palovaroittimien tarkastus ja vaihto. Salaojien tarkastus ja huuhtelu. Luhtikäytävän parvekelasitusten vuosihuolto. Lämpökeskuksen uusiminen. Kuntoarvio.
Taloyhtiö
Taloyhtiön nimi |
Asunto Oy Oulun Viirusilmä |
|---|---|
Isännöitsijän yhteystiedot |
Jarkko Seppänen |
Yhtiön tilat ja varustelu |
Kaapeli-tv, urheiluvälinevarasto ja väestönsuoja |
Energialuokka |
C2018 |
Tontin pinta-ala |
4m2 |
Tontin omistus |
Vuokra |
Tontin vuokra-aika |
31.12.2050 |
Sijainti
Hukkasenkuja 5
90250,
Hiironen,
Oulu