Hero banner image

Tahkorinne 7, 02760, Espoo

Get a Roof
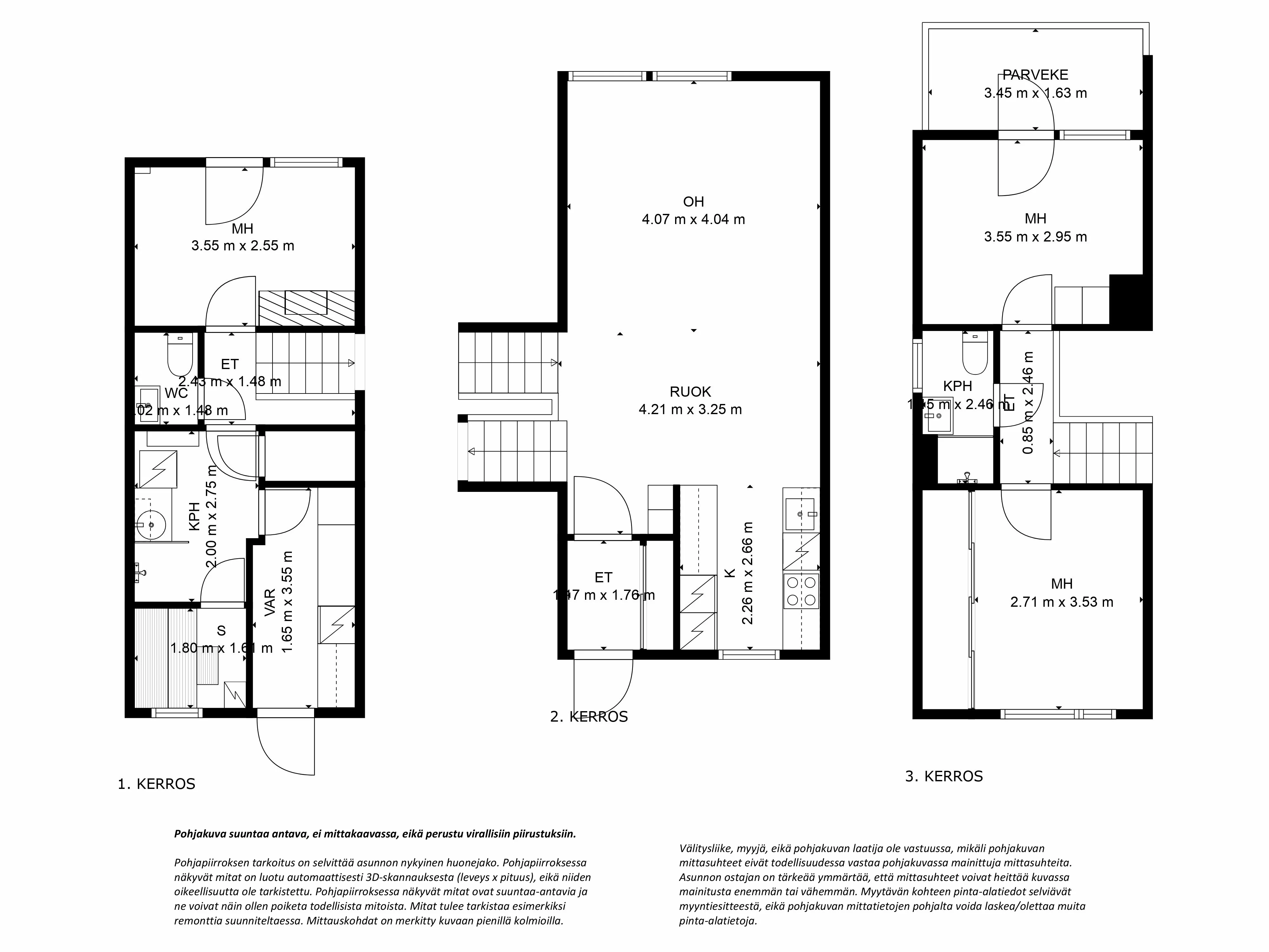
Asuinpinta-ala: 99 m2
Huoneluku: 3h + k + var + takkah + s
Rakennusvuosi: 1989
Talotyyppi: rivitalo
Energialuokka: C2007
Kaupunginosa: Tuomarila, Espoon keskus
Kaupunki: Espoo

Persoonallinen remontoitu koti lapsiystävällisellä alueella!

Apartment image

Tämä koti jakautuu kivasti kolmeen tasoon. Sisääntulo kerroksessa sijaitsevat tyylikäs avokeittiö sekä iso valoisa olohuone, joka hurmaa noin kolmen metrin huonekorkeudellaan. Muutama porras ylös, sijaitsevat kodin kaksi makuuhuonetta sekä kaunis kylpyhuone. Ja muutama porras olohuoneesta alaspäin sijaitsevat takkahuone ja pesutilat sekä sauna. Pientä ylellisyyden tunnetta tuo pieni erillinen wc pesutilojen yhteydessä. Asunnossa on myös iso varasto omalla sisäänkäynnillä pesutilojen yhteydessä. Takkahuoneesta on käynti asunnon suojaiselle terassipihalle, jossa viihtyvät niin perheen pien...

Apartment image
Target image Target image Target image Target image Target image Target image Target image Target image Target image Target image Target image Target image Target image Target image Target image Target image Target image Target image Target image Target image Target image Target image Target image Target image Target image Target image Target image Target image Target image Target image Target image Target image

Sijainti

Order demo

Varaa esittely

Calendar

Kiinnostuitko?

Ehdota meille sinulle sopivaa aikaa niin välittäjämme on sinuun yhteydessä mahdollisimman pian.

Ota yhteyttä

Ota yhteyttä

Contact image Contact image
Amir Ahmad
Puh: 050 348 3084
Amir Ahmad

Katso muut kohteet Tuomarila, Espoon keskus

Real estate object
kerrostalo
Kulovalkeantie 10, 02760, Espoo
1h+k+alkovi+kph+s+ranskalainen parveke
Real estate object
rivitalo
Tahkorinne 7, 02760, Espoo
3h + k + var + takkah + s