Hero banner image

Karistimentie 2, 00920, Helsinki

Get a Roof
Myyntihinta: 183 000 €
Velaton hinta: 183 000€
Hoitovastike: 328,19€/kk
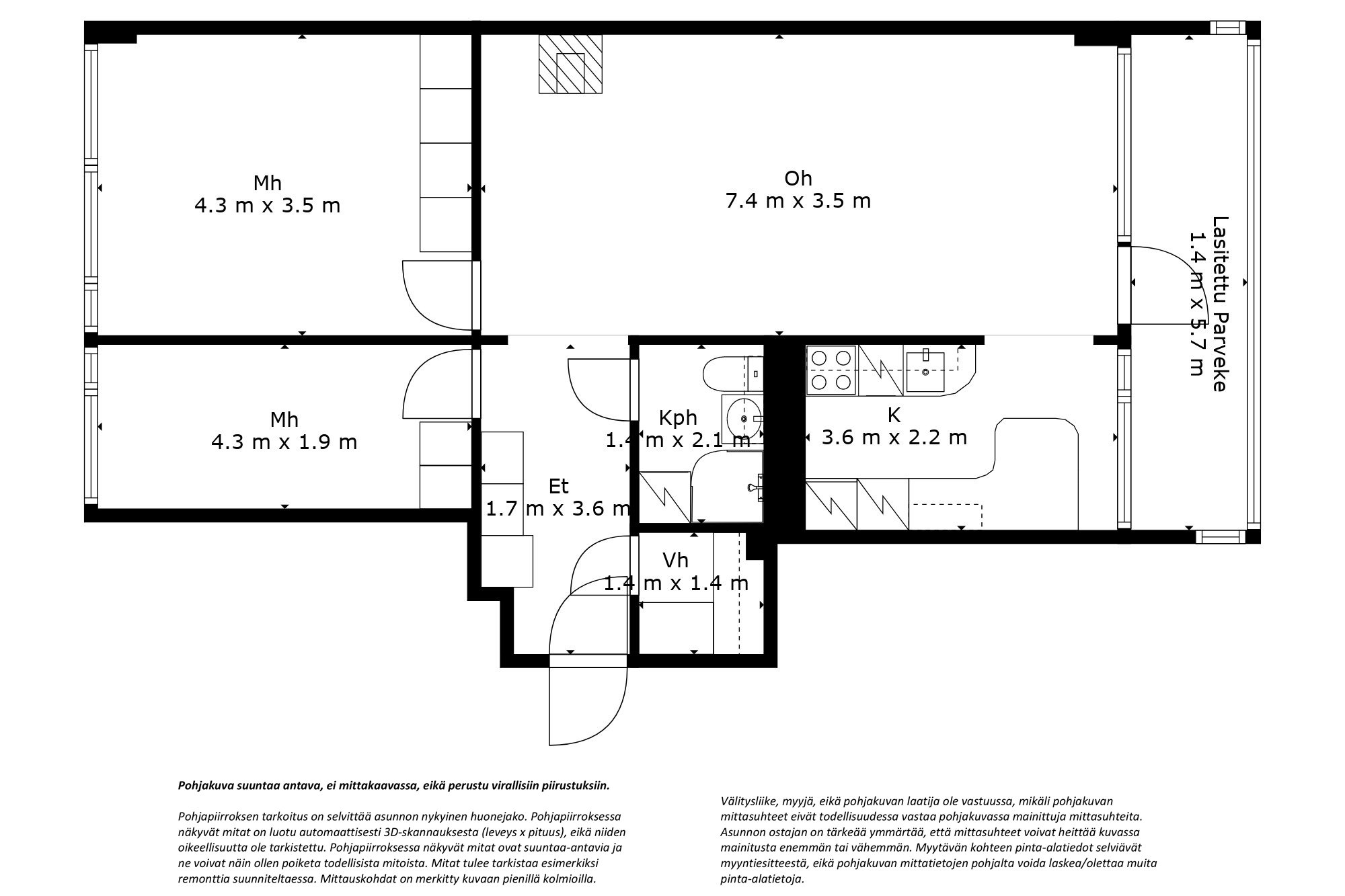
Asuinpinta-ala: 72 m2
Huoneluku: 3h + k + kph + p
Rakennusvuosi: 1963
Talotyyppi: kerrostalo
Energialuokka: D2018
Kaupunginosa: Myllypuro/Vartiokylä
Kaupunki: Helsinki

Apartment image

Hyväpohjainen läpitalon kolmio Myllypuron Karistimentiellä.

Tämä 4. kerroksen asunto sijaitsee Asunto Oy Säästömyllyssä, joka on Helsingin isoimpia taloyhtiöitä. Asunnon eteisessä on hyvin kaappitilaa. Eteisestä on käynti kylpyhuoneeseen, jossa on tilaa pesukoneelle. Olohuone on avara ja valoisa. Olohuoneesta pääsee isolle lasitetulle parvekkeelle. Makuuhuoneissa on kiinteitä kaappeja säilytykseen ja vaatehuoneessa on hyvin lisätilaa. Käyttövesi- ja viemäriputket on uusittu vuonna 2008-2009.

Myllypuron ostoskeskus palveluineen on lähellä. Myllypurossa on valtavasti harraste...

Apartment image
Target image Target image Target image Target image Target image Target image Target image Target image Target image Target image Target image

Sijainti

Order demo

Varaa esittely

Calendar

Kiinnostuitko?

Ehdota meille sinulle sopivaa aikaa niin välittäjämme on sinuun yhteydessä mahdollisimman pian.

Ota yhteyttä

Ota yhteyttä

Contact image Contact image
Martti Jaako
Puh: 050 304 1440
Martti Jaako

Katso muut kohteet Myllypuro/Vartiokylä

Real estate object
rivitalo
Myllyväenkatu 14, 00920, Helsinki
4h, k, kph, s, 2xparveke
Real estate object
kerrostalo
Myllärintanhua 6, 00920, Helsinki
3h+k+kph+wc+las.p