Hero banner image

Jakomäentie 12b, 00770, Helsinki

Get a Roof
Myyntihinta: 425 000 €
Velaton hinta: 425 000 €
Hoitovastike: 173,00 €
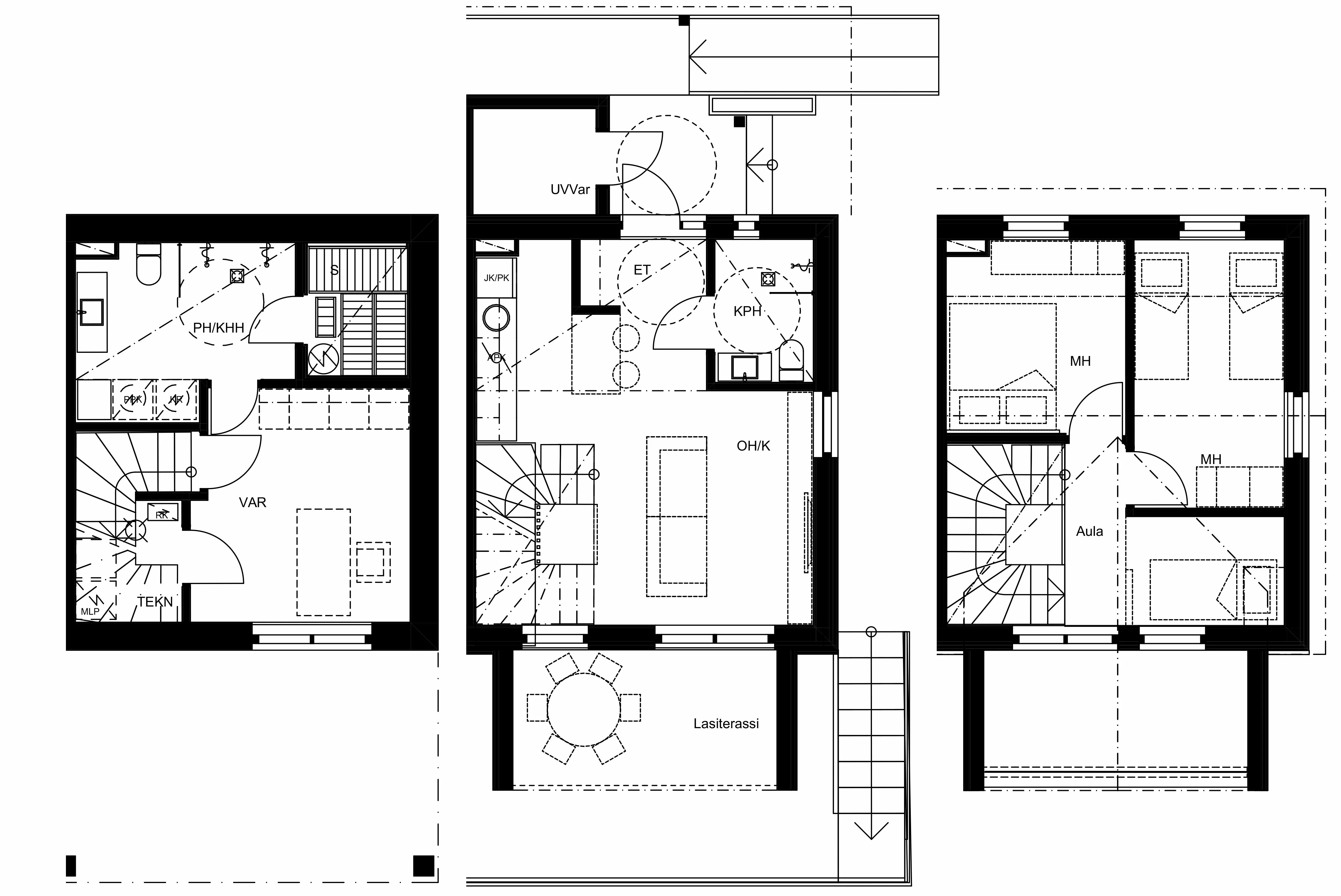
Asuinpinta-ala: 106 m2
Huoneluku: 3h, avok, 2kph, s, aula, harrastetila, varasto
Rakennusvuosi: 2027
Talotyyppi: rivitalo
Energialuokka: A2018
Kaupunginosa: Jakomäki
Kaupunki: Helsinki

Jakomäentie 12b B 1 – Uutta, omaa rauhaa ja tilaa kolmessa tasossa

Apartment image

Tämä rivitalokoti valmistuu vuonna 2027 omalle tontille Jakomäkeen. Kolme makuuhuonetta, kaksi kylpyhuonetta, oma sauna sekä suojaisa piha muodostavat arjessa toimivan kokonaisuuden – ei hukkaneliöitä, vaan selkeä ja käytännöllinen pohjaratkaisu.

Sisääntulokerros on suunniteltu yhdessäoloon. Keittiö ja oleskelutila avautuvat omalle pihalle ja lasitetulle terassille, joka jatkaa käyttöaikaa pitkälle syksyyn. Yläkerrassa sijaitsevat makuuhuoneet sekä toinen kylpyhuone, mikä helpottaa perhearjen rytmiä merkittävästi. Kellaritila sopii erinomaisesti omaksi kuntosaliksi, elokuvahuoneek...

Apartment image
Target image Target image Target image Target image Target image Target image Target image Target image Target image Target image Target image Target image Target image Target image Target image Target image Target image Target image

Sijainti

Order demo

Varaa esittely

Calendar

Kiinnostuitko?

Ehdota meille sinulle sopivaa aikaa niin valittajamme on sinuun yhteydessa mahdollisimman pian.

Ota yhteytta

Ota yhteytta

Contact image Contact image
Tommi Kujala
Puh: 040 5353556
Tommi Kujala

Katso muut kohteet Jakomäki

Real estate object
kerrostalo
Mätästie 5, 00770, Helsinki
2h, k, kph, lasit.parveke
Real estate object
paritalo
Jakomäentie 12b, 00770, Helsinki
3h, avok, 2kph, s, aula, harrastetila, varasto