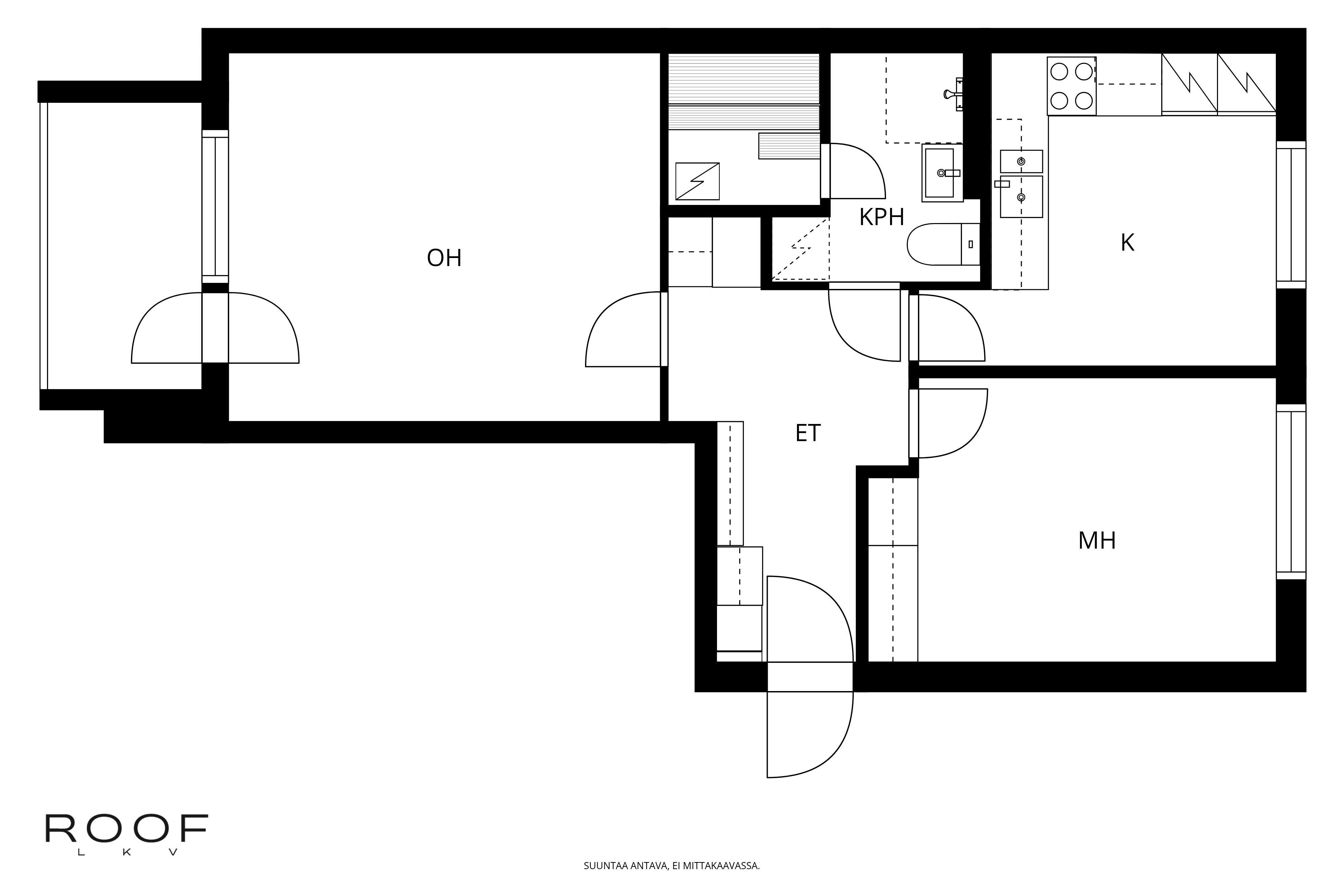
kerrostalo, 2h+k+s
85 000 € • 60.5 m2 • 1 404,96 €/m2
Välskärinkatu 16,
04410,
Pajala,
Järvenpää
kerrostalo, 2h+k+s
Välskärinkatu 16, 04410, Pajala, Järvenpää
85 000 €
60,5 m2 • 1 404,96 €/m2
Yhtiövastike
471,38 €
Tontti
Oma
Kerros
3/ 3
Tee tarjous: Välskärinkatu 16
Tämä tilava 60,5 m²:n läpitalon kaksio tarjoaa valoisaa asumista erinomaisella sijainnilla. Parkettilattiat, oma sauna ja ylimmän kerroksen rauha tekevät tästä kodista viihtyisän valinnan.
Asunto sijaitsee kävelyetäisyydellä Järvenpään keskustan palveluista. Jäähalli, uimahalli, padelkentät ja juna-asema ovat aivan lähietäisyydellä – kaikki sujuvaan arkeen tarvittava on kivenheiton päässä.
Hyvin hoidettu taloyhtiö ja selkeä pohjaratkaisu tekevät tästä toimivan kodin niin yksin asuvalle kuin pariskunnallekin.
Tervetuloa tutustumaan paikan päälle. Tämä koti kannattaa kokea itse!
Myynti, esittely ja lisätiedot
Meiju Patala
Roof LKV
0503578820
meiju.patala@roof.fi
Hintatiedot
Velaton hinta
85 000 €
1405 €/m2
Yhtiövastike 471,38 €
Rahoitusvastike 70,98 €
Hoitovastike 400,40 €
Vesimaksu 24 € / hlö / kk
Tehdyt korjaukset ja remontit
1999
ikkunoiden ja ulko-ovien maalaus, lukitusjärjestelmä.
2004
parvekkeiden saneeraus.
2007
kylpyhuonekorjaukset (asuntojen 3, 7, 9 ja 16 kylpyhuoneet eivät kuuluneet taloyhtiön urakkaan).
2009
porraskäytävien, metalliovien ja kellaritilojen maalaus.
2010
koodilukot.
2011
vesikate ja elementtisaumat uusittu.
2013
jätekatos.
2015
lämmönsiirtimet uusittu (lämmönsiirtimet, automatiikka, patteriventtiilit, sulku- ja linjasäätöventtiilit sekä patteritermostaatit uusittu).
2015
parvekeovet tarkastettu, lukitukset uusittu.
2016
piha-alueen kunnostuksen suunnittelu, leikkivälineet uusittu, grillipaikka rakennettu, aluevalaistus uusittu.
2017
viheraluetyöt, lv-kanaviston puhdistus ja ilmamäärien säätö, kiinteistön kuntoarvio, märkätilojen ia keittiöiden kosteustarkastus.
2018
parvekepielien ja saumauksen uusiminen.
2019
ilmanvaihdon parantamissuunnittelun aloitus, vesijohto- ja jätevesiliittymän uusiminen, sokkelin ja ulko-ovien maalaus.
2020
pihakalusteiden huoltokäsittely, ikkunoiden Ja parvekeovien uusimisen suunnittelun aloitus, kuivaushuoneen ilmanpuhallin uusittu, jäte- ja sadevesijärjestelmien huuhtelu.
2022
ikkunat ja parvekeovet uusittu, piha-alueen kunnostus ja muutostyöt.
2023
märkätilojen kosteustarkastus.
2024
Sadevesiviemäreiden kuvaus ja huuhtelu, Kuntoarvio, Putkistojen kuntotutkimus.
2025
Korvausilmasuodattimien vaihto.
Tulevat korjaukset ja remontit
Vuonna 2024 korjausohjelmassa yleisten tilojen valaisimien uusiminen, salaojien kuvaus ja huuhtelu, kerrostasanteille kerrosnumeroiden maalaus, kiinteistön kuntoarvion päivitys, vesijohtojen ja viemäreiden kuntotutkimus. PTS -tiivistelmä 7 .3 .2024 2025 - Autolämmitysrasioiden uusiminen tarpeen mukaan (tähän liittyy sähköautojen latausmahdollisuuden selvittäminen ja toteutustavan valinta). - A 3 kylpyhuoneen kosteusmittaus (seurantatarkastus). - IV -kanaviston puhdistus. 2026 - Yleisten tilojen betonipintojen maalauskunnostusta. 2027 - Korjaukset laadittavan kuntoarvion perusteella. 2028 - Korjaukset laadittavan kuntoarvion perusteella. Em. korjaussuunnitelma on suuntaa antava ja päätökset korjauksista tehdään aina yhtiökokouksissa vuosittain.
Taloyhtiö
Taloyhtiön nimi |
Asunto Oy Kotikaski |
|---|---|
Isännöitsijän yhteystiedot |
Tapio Korhonen |
Kiinteistötunnus/laitostunnus |
186-7-760-12 |
Kiinteistön nimi |
Kapon Huolto Oy |
Yhtiön tilat ja varustelu |
Urheiluvälinevarasto, kellarikomero ja kaapeli-tv |
Energialuokka |
D2018 |
Tontin pinta-ala |
2m2 |
Tontin omistus |
Oma |
Sijainti
Välskärinkatu 16
04410,
Pajala,
Järvenpää