Hero banner image

Tikkurilantie 33, 01370, Vantaa

Get a Roof
Myyntihinta: 239 000 €
Velaton hinta: 239 000€
Hoitovastike: 193,05€/kk
Rahoitusvastike: 290,00€/kk
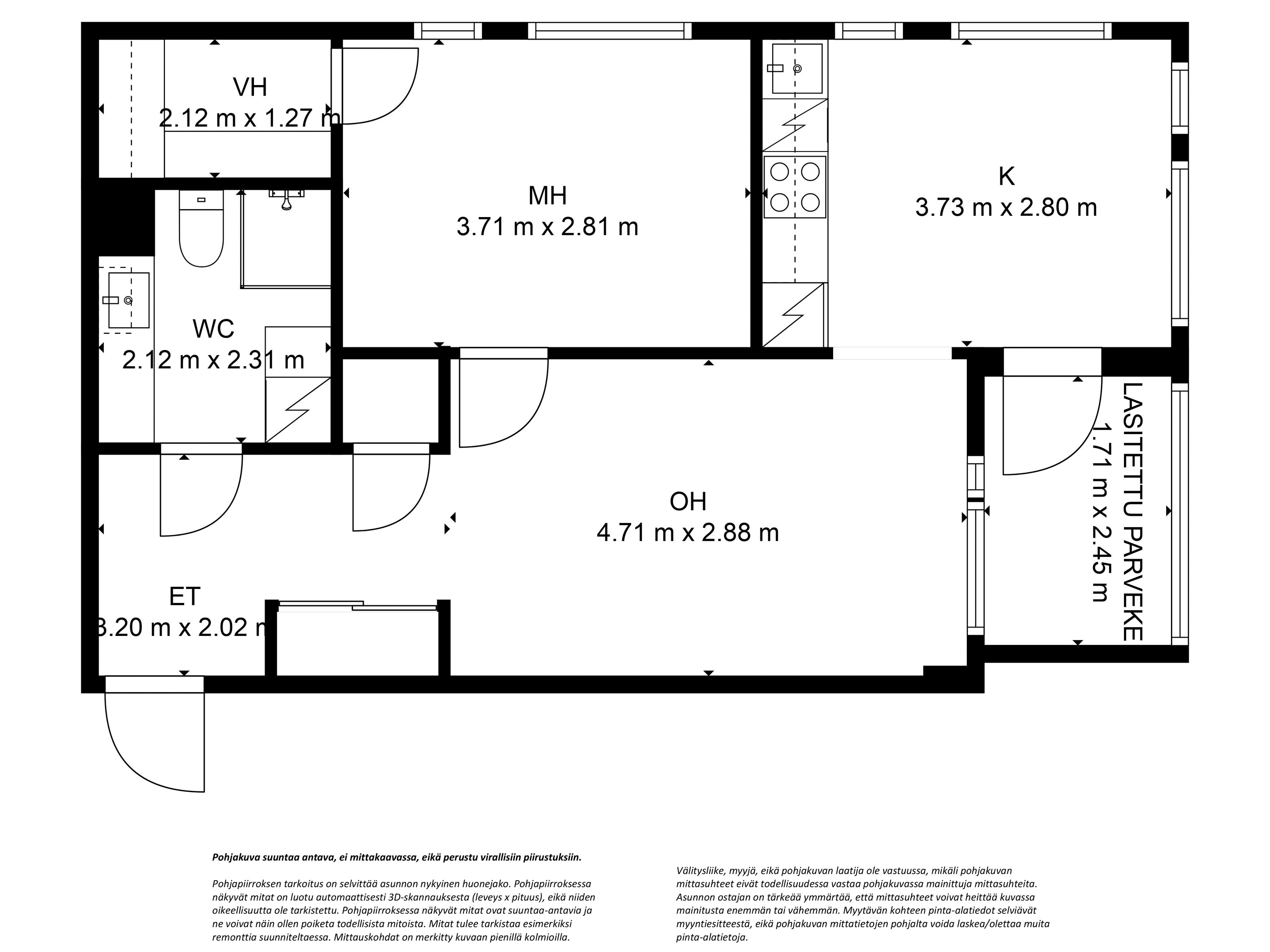
Asuinpinta-ala: 49,5 m2
Huoneluku: 2h+k+kph+vh+lasitettu parveke
Rakennusvuosi: 2019
Talotyyppi: kerrostalo
Energialuokka: C2013
Kaupunginosa: Jokiniemi, Tikkurila
Kaupunki: Vantaa

Tyylikäs ja hyvin suunniteltu kaksio loistavalla sijainnilla

Apartment image

Tämä vaaleasävyinen ja muuttovalmis koti tarjoaa toimivan pohjaratkaisun: erillinen keittiö, valoisa olohuone ja tilava makuuhuone, josta löytyy myös käytännöllinen vaatehuone. Kylpyhuone on reilun kokoinen ja sinne mahtuu hyvin pyykinpesukone. Säilytystilaa on runsaasti niin vaatehuoneessa kuin eteisen kaapistossa. Asunnon helmenä toimii lasitettu parveke, joka tuo lisää asumismukavuutta ympäri vuoden.

Asunto Oy Vantaan Vanilja on vuonna 2019 valmistunut taloyhtiö, joka on omalla tontilla ja hyvässä kunnossa. Asukkaiden käytössä on myös tunnelmallinen pihasauna yhtiön pihapiiriss...

Apartment image
Target image Target image Target image Target image Target image Target image Target image Target image Target image Target image Target image Target image Target image Target image Target image Target image Target image Target image Target image Target image

Sijainti

Order demo

Varaa esittely

Calendar

Kiinnostuitko?

Ehdota meille sinulle sopivaa aikaa niin välittäjämme on sinuun yhteydessä mahdollisimman pian.

Ota yhteyttä

Ota yhteyttä

Contact image Contact image
Sari Välimaa
Puh: 044 333 0524
Sari Välimaa

Katso muut kohteet Jokiniemi, Tikkurila

Real estate object
kerrostalo
Jokiniemenkuja 5, 01370, Vantaa
1h+kt+kph+ et
Real estate object
rivitalo
Maarinkunnaantie 2, 01370, Vantaa
3h, k, kph, s, autotalli, piha