Hero banner image

Hämeentie 21, 00500, Helsinki

Get a Roof
Myyntihinta: 255 814,83 €
Velaton hinta: 259 000€
Hoitovastike: 112,00€/kk
Rahoitusvastike: 68,00€/kk
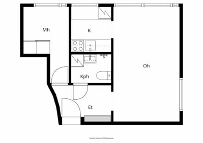
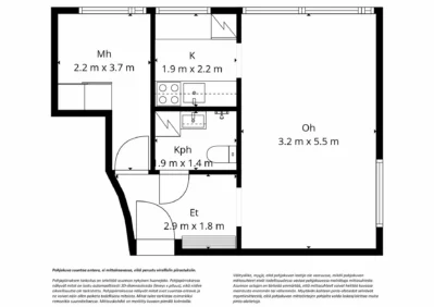
Asuinpinta-ala: 40 m2
Huoneluku: 2h+kk+kph+et
Rakennusvuosi: 1960
Talotyyppi: kerrostalo
Energialuokka: D2018
Kaupunginosa: Torkkelinmäki, Sörnäinen
Kaupunki: Helsinki

Apartment image

Tämä 7. kerroksessa sijaitseva kulmahuoneisto tarjoaa avarat näkymät kahteen ilmansuuntaan. Asunto on valoisa ja selkeälinjainen, ja pohjaratkaisu on toimiva arkeen. Olohuoneeseen mahtuu luontevasti sekä oleskelu- että ruokailuryhmä, ja suuret ikkunat tuovat tilaan runsaasti luonnonvaloa.

Erillinen keittokomero on remontoitu vuonna 2017. Sen ilme on ajaton, ja säilytys- sekä laskutilat on hyödynnetty tehokkaasti. Keittokomero toimii sujuvana osana kokonaisuutta ilman, että se vie tilaa oleskelulta.

Makuuhuone on rauhallinen ja tarjoaa hyvin tilaa sängylle ja säilytykselle. ...

Apartment image
Target image Target image Target image Target image Target image Target image Target image Target image Target image Target image Target image Target image Target image Target image Target image Target image Target image Target image Target image Target image Target image

Käpylä asuinalueena

Käpylä on yksi Helsingin viehättävimmistä ja omaleimaisimmista asuinalueista, jossa puutaloidylli ja kylämäisyys yhdistyvät kaupunkielämän helppouteen. Vehreät kadut, yhteisöllinen tunnelma ja kaunis arkkitehtuuri hurmaavat heti. Liikkuminen on vaivatonta bussilla, raitiovaunulla tai junalla, ja arjen palvelut löytyvät kätevästi kävelyetäisyydeltä.

Perheille Käpylä tarjoaa poikkeuksellisen hyvät puitteet – päiväkodit, koulut ja leikkipuistot sijaitsevat aivan kotiovien tuntumassa. Vapaa-aikaa rikastuttavat Kumpulan maauimalan kesäinen tunnelma, ulkoilureitit sekä aivan lähistöllä sijaitsevan kauppakeskus Triplan monipuoliset palvelut. Käpylä on kokonaisuus, jossa arki on sujuvaa ja asuminen tuntuu aidosti hyvältä joka päivä.

Sijainti

Order demo

Varaa esittely

Calendar

Kiinnostuitko?

Ehdota meille sinulle sopivaa aikaa niin välittäjämme on sinuun yhteydessä mahdollisimman pian.

Ota yhteyttä

Ota yhteyttä

Contact image Contact image
Duarte Tammilehto
Puh: 050 341 1676
Duarte Tammilehto

Katso muut kohteet Torkkelinmäki, Sörnäinen

Real estate object
kerrostalo
Aleksis Kiven katu 10a, 00500, Helsinki
2h+avok+kph
Real estate object
kerrostalo
Vilhonvuorenkuja 20, 00500, Helsinki
3h, k, kph, erillinen wc (yhtiöjärjestyksen mukainen huoneistoselitelmä 3)