















kerrostalo, 2h, k, kph, vh, las. parv
30 000 € • 56.0 m2 • 535,71 €/m2
Aleksis Kiven tie 15,
01900,
Parkkimäki,
Nurmijärvi
kerrostalo, 2h, k, kph, vh, las. parv
Aleksis Kiven tie 15, 01900, Parkkimäki, Nurmijärvi
30 000 €
56 m2 • 535,71 €/m2
Yhtiövastike
476,00 €
Tontti
Oma
Kerros
1/ 3
Tarjouskauppa
Tee tarjous: Aleksis Kiven tie 15
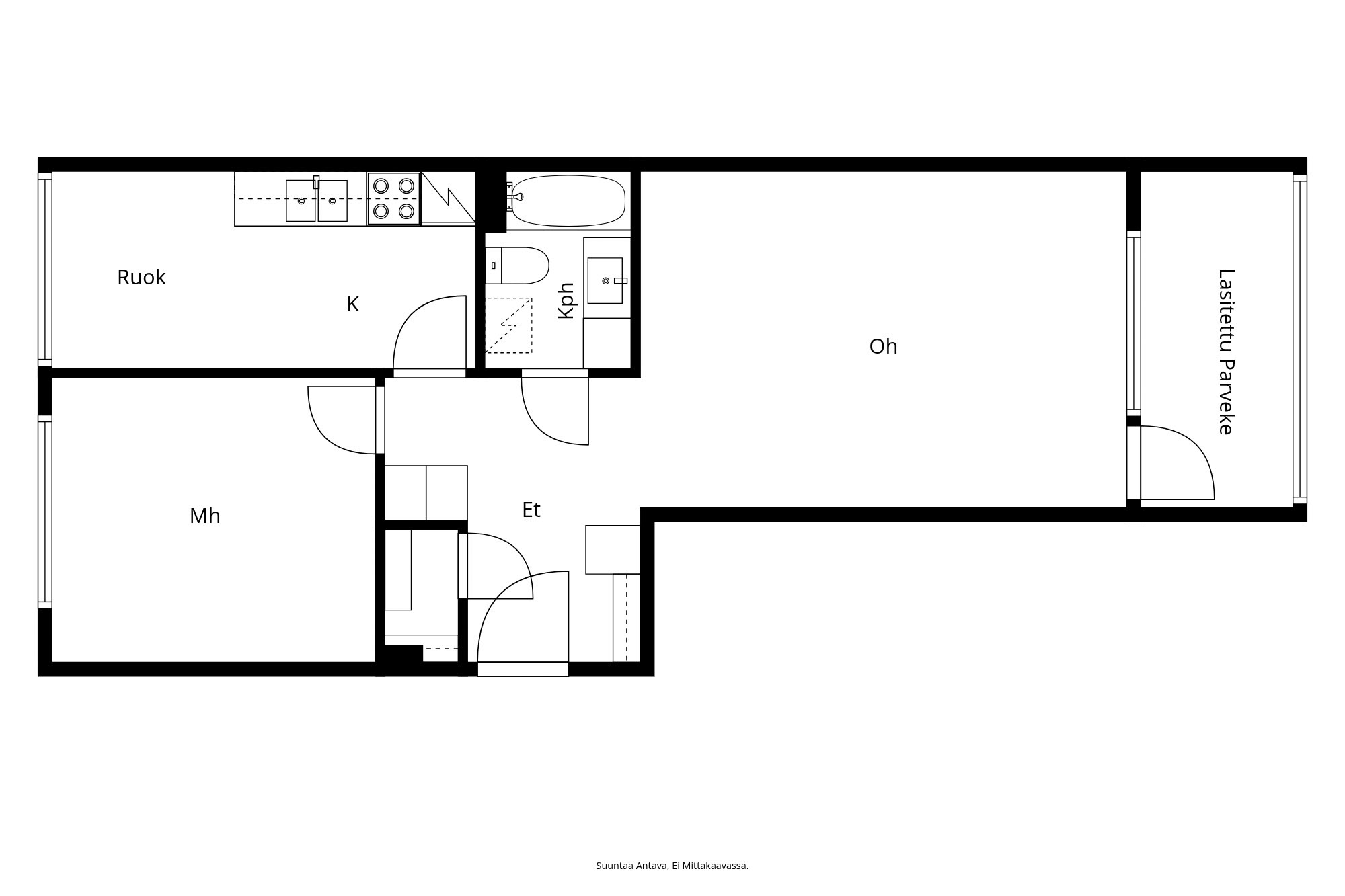
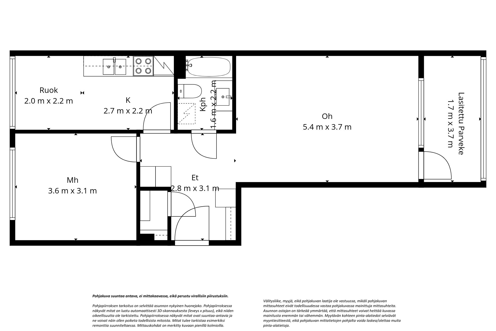
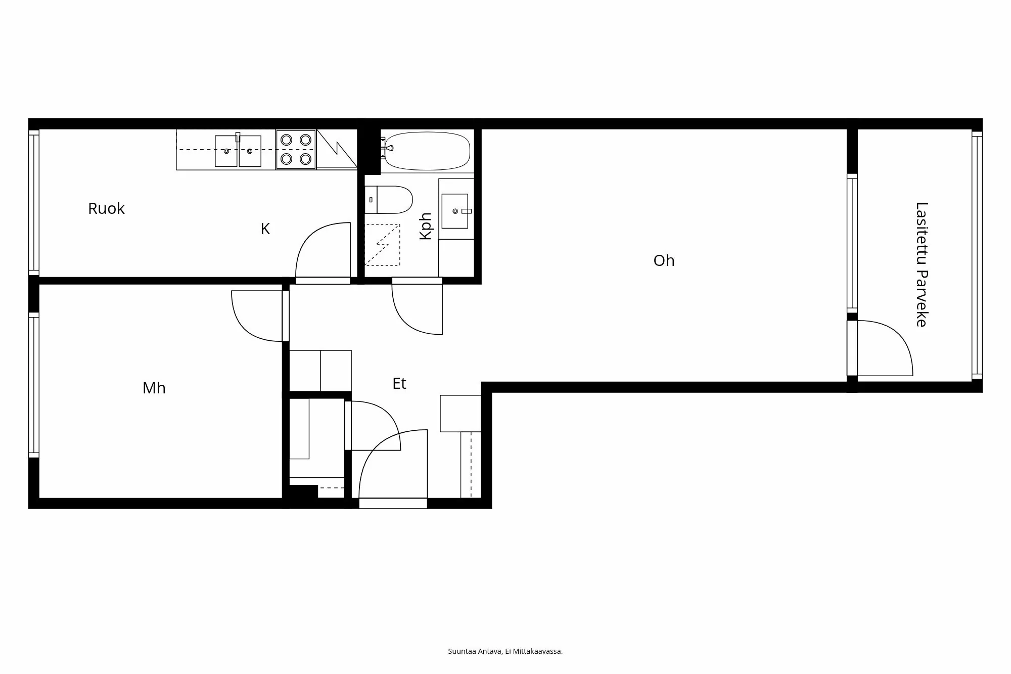
Remontoitava valoisasta kaksiosta Nurmijärven Kirkonkylän palveluiden kupeessa!
Tämä ensimmäisen kerroksen (ei katutasossa) koti sijaitsee kauimpana tiestä olevassa rapussa. Tilava ja valoisa olohuone, erillinen makuuhuone sekä lasitettu parveke tarjoavat hyvän pohjan kodille, joka kaipaa päivittämistä, asunto on alkuperäiskuntoinen ja remontoitava. Tässä on erinomainen mahdollisuus luoda juuri omannäköinen koti viihtyisällä alueella.
Asunto Oy Kylä-Kirkkari on vuonna 1973 rakennettu, hyvin hoidettu taloyhtiö, jossa on tehty isoja remontteja kuten parveke- ja julkisivusaneeraus, kattoremontti ja ikkunoiden uusiminen. Linjasaneerauksen suunnittelu on käynnissä. Yhtiöllä on yhteiskäytössä sauna, urheiluvälinevarasto ja kellaritiloja. Autopaikat ja -tallit ovat vuokrattavissa jonotusperiaatteella.
Parkkimäen alue Nurmijärven kirkonkylässä tarjoaa rauhallisen asuinympäristön kävelyetäisyydellä keskustan palveluista. Lähellä ovat kaupat, kirjasto, terveyspalvelut ja hyvät liikenneyhteydet.
TIEDUSTELUT JA YKSITYISESITTELYVARAUKSET:
Mira Järvinen LKV, LVV, 040 835 0271 tai mira.jarvinen@roof.fi
OTATHAN YHTEYTTÄ JA VARAAT OMAN ESITTELYAJAN?
I can provide services also in English
Jag betjänar också på svenska.
GET A ROOF!
www.mirajärvinenlkv.fi
www.roof.fi
Hintatiedot
Velaton hinta
30 000 €
536 €/m2
Yhtiövastike 476,00 €
Rahoitusvastike 218,40 €
Hoitovastike 257,60 €
Vesimaksu 30 € / hlö / kk
Velaton lähtöhinta 30 000 €
Muut kustannukset Autopaikat; kylmä 5 €/kk, tolppa 15 €/kk, autotalli (iso) 50 €/kk, autotalli (pieni) 35 €/kk. Hallitukselle myönnetty valtuus tarvittaessa periä tai olla perimättä 1-2 kuukauden hoitovastike ja muuttaa pääomavastiketta korkotason oleellisesti muuttuessa, mikäli taloyhtiön taloudellinen tilanne niin vaatii. Valtuus on voimassa seuraavaan varsinaiseen yhtiökokoukseen asti.
Tehdyt korjaukset ja remontit
2023
Kurtturuusujen poisto.
2022
Linjasaneerauksen ja märkätilakorjausten hankesuunnittelu/suunnittelu (TeknoPlan).
2021
Aluevarusteiden kunnostus. Ilmanvaihdon nuohous ja säätö.
2020
Hulevesiviemäröinti.
2019
Lukituksen uusiminen.
2017
–
2018
Ikkunoiden uusiminen. Julkisivu- ja parvekesaneeraus. Vesikatteen uusiminen.
2016
Julkisivu- ja parvekesaneerauksen suunnittelu.
2014
Julkisivu- ja parvekekuntotutkimus.
2012
LVV-kuntotutkimus.
2009
Ilmanvaihdon nuohous. Roskakatoksen uusiminen.
2008
Lämmönvaihtimien uusiminen.
Tulevat korjaukset ja remontit
2025
Suunniteltu vakiopaineventtiilin asentaminen. Suunniteltu roskakatokseen lukollisten ovien rakentaminen.
2025
–
2029
Suunniteltu huoneistojen märkätilojen vesieristykset (yhtiö kustantaa materiaalit).
2026
–
2027
Suunniteltu patteriventtiilien ja linjaventtiilien uusiminen sekä verkoston perussäätö (linjasaneerauksen yhteydessä). Suunniteltu takapihan portaiden pinnoituskorjaus putkiremontin jälkeen (nyt laitettu suojamatot).
2027
–
2029
Suunniteltu käyttövesi- ja viemäriverkoston saneerausvaraus. Suunniteltu rappukäytävien kunnostus (linjasaneerauksen yhteydessä). Lukijan on huomattava, että hallituksen kunnossapitotarveselvitys
2025-2029
on hallituksen näkemys kunnossapitotarpeista viiden vuoden aikana. Päätökset mahdollisesti käynnistettävien kunnossapitotöiden ja muutostöiden suunnittelusta, toteutuksesta sekä rahoituksesta tehdään yhtiökokouksessa erikseen. Selvityksellä mainitut toimenpiteet saattavat aikaistua tai myöhentyä. Myyjä ei vastaa taloyhtiön myöhemmin päättämistä kunnossapitotoimenpiteistä ja niistä aiheutuvista huoneistolle tulevista kustannuksista.
Taloyhtiö
Taloyhtiön nimi |
Asunto-Oy Kylä-Kirkkari |
---|---|
Isännöitsijän yhteystiedot |
Pertti Louhi |
Kiinteistötunnus/laitostunnus |
543-402-9-161 |
Kiinteistön nimi |
Kiinteistöpalvelut Kiila Oy |
Yhtiön tilat ja varustelu |
Kellarikomero, urheiluvälinevarasto, jäähdytetty kellari ja lastenvaunuvarasto |
Energialuokka |
E2018 |
Autotallien määrä |
10 kpl |
Tontin pinta-ala |
2m2 |
Tontin omistus |
Oma |
Sijainti
Aleksis Kiven tie 15
01900,
Parkkimäki,
Nurmijärvi