Hero banner image

Orioninkatu 14-16, 00550, Helsinki

Get a Roof
Myyntihinta: 226 229,83 €
Velaton hinta: 238 000 €
Hoitovastike: 366,00 €
Rahoitusvastike: 107,36 € /kk
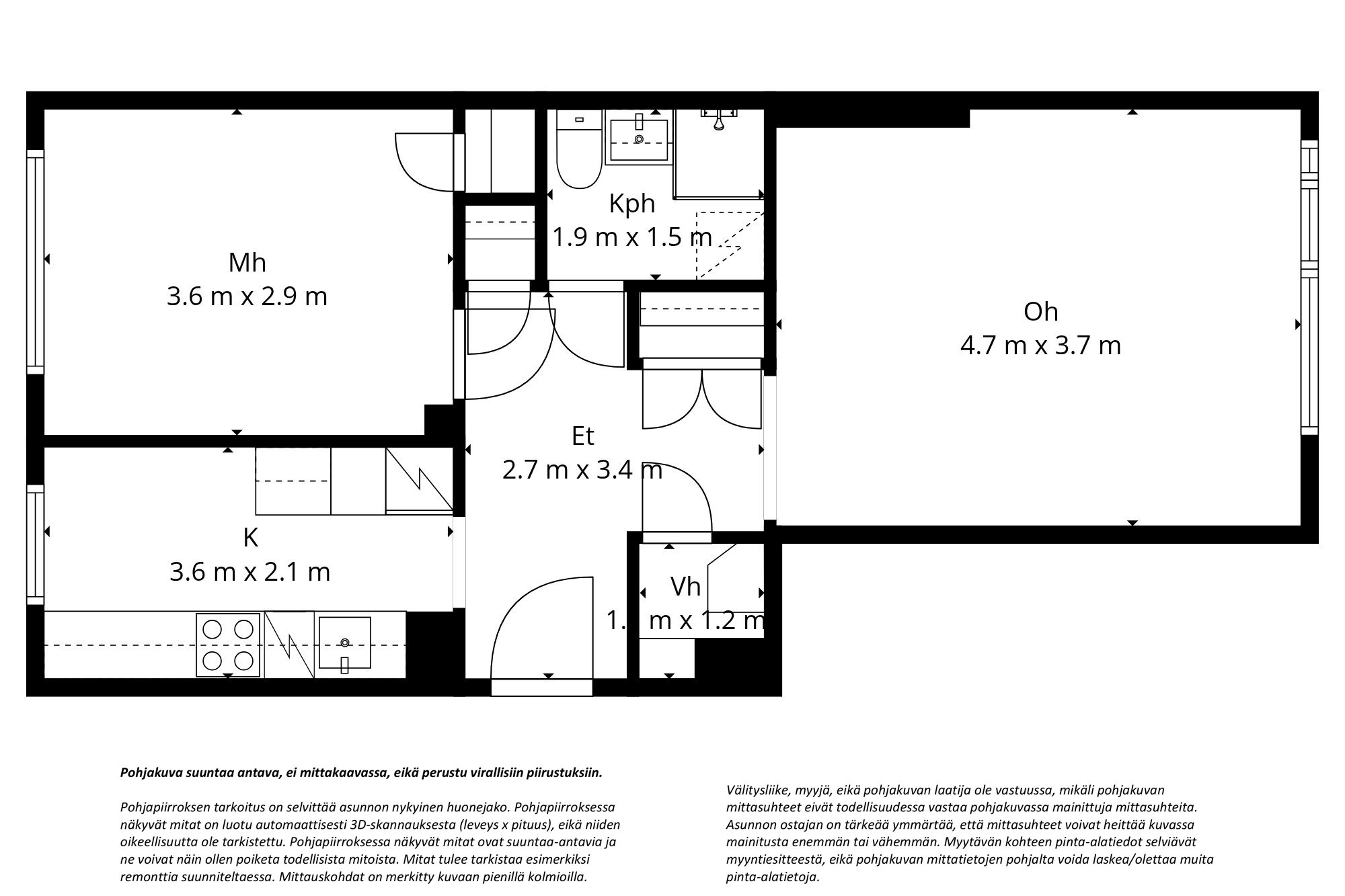
Asuinpinta-ala: 50 m2
Huoneluku: 2h + k + kph
Rakennusvuosi: 1959
Talotyyppi: kerrostalo
Energialuokka: D2018
Kaupunginosa: Hermanni
Kaupunki: Helsinki

Tilava heti vapaa kaksio Hermannissa.

Apartment image

Tämä tilava kaksio Hermannin alueella tarjoaa mukavaa asumista hyvien kulkuyhteyksien äärellä.

Asunto sijaitsee rauhallisella Orioninkadulla, ja sen 50 neliötä on käytetty tehokkaasti. Asunnossa on avara olohuone, käytännöllinen keittiö sekä tilava makuuhuone. Kylpyhuone on remontoitu ja varustettu nykyaikaisilla mukavuuksilla. Eteisessä on kaappeja säilytykseen

Rakennus on valmistunut vuonna 1959, ja se on kokenut useita merkittäviä remontteja, kuten putki- ja julkisivuremontin sekä ikkunoiden uusimisen. Asunto Oy Orioninkatu 14-16 tarjoaa asukkailleen monipuolisia yhteis...

Apartment image
Target image Target image Target image Target image Target image Target image Target image Target image Target image Target image Target image Target image Target image Target image Target image Target image

Sijainti

Order demo

Varaa esittely

Calendar

Kiinnostuitko?

Ehdota meille sinulle sopivaa aikaa niin valittajamme on sinuun yhteydessa mahdollisimman pian.

Ota yhteytta

Ota yhteytta

Contact image Contact image
Martti Jaako
Puh: 050 304 1440
Martti Jaako

Katso muut kohteet Hermanni

Real estate object
kerrostalo
Orioninkatu 14-16, 00550, Helsinki
2h + k + kph
Real estate object
kerrostalo
Hämeentie 77, 00550, Helsinki
2h+k+kph+vh+lasitettu parveke