kerrostalo, 2h, k
292 000 € • 50.0 m2 • 5 840,00 €/m2
Sipoonkatu 11,
00520,
Alppila, Alppiharju,
Helsinki
kerrostalo, 2h, k
Sipoonkatu 11, 00520, Alppila, Alppiharju, Helsinki
292 000 €
50 m2 • 5 840,00 €/m2
Yhtiövastike
350,00 €
Tontti
Oma
Kerros
2/ 5
Tee tarjous: Sipoonkatu 11
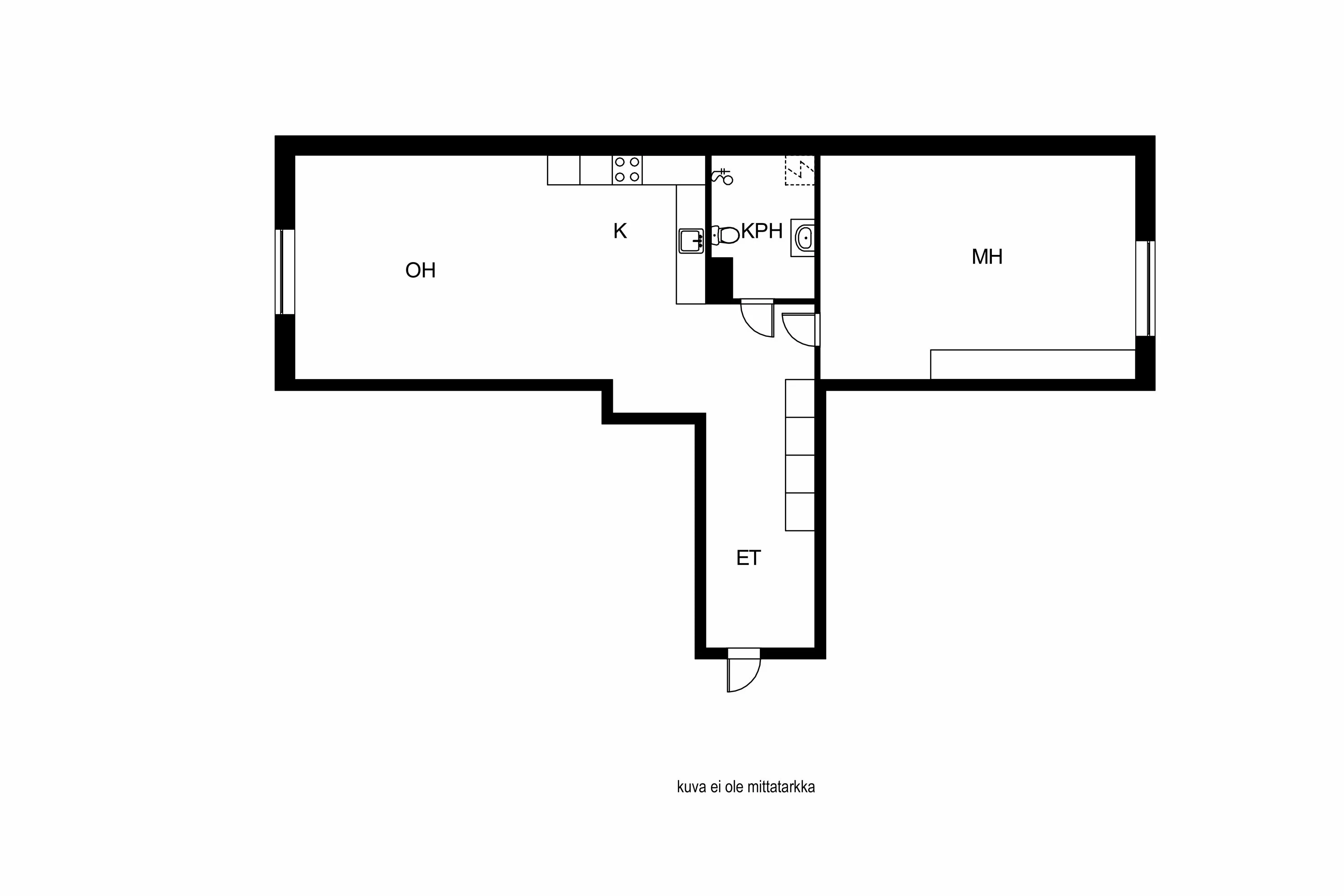
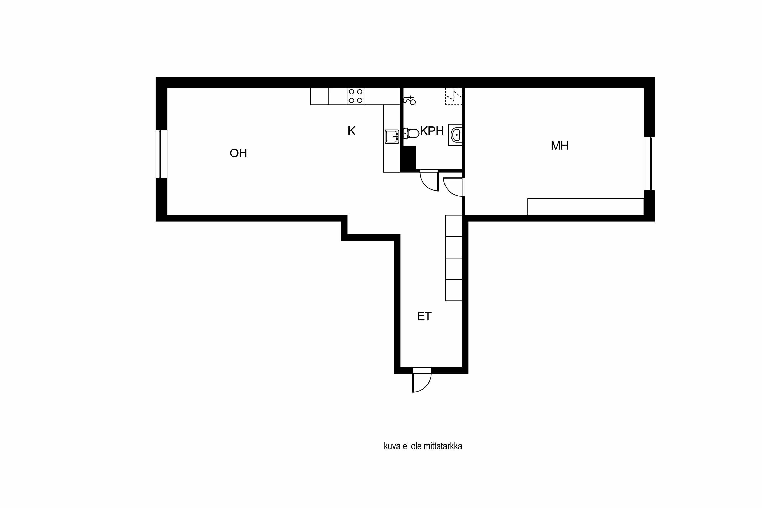
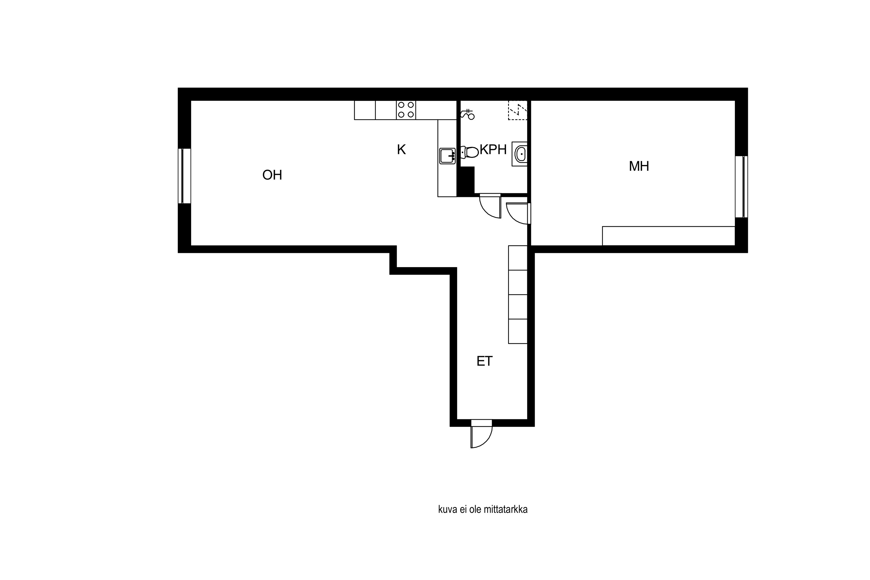
Sipoonkatu 11:ssä, Alppilan viehättävässä kaupunginosassa, odottaa tämä kodikas ja hyväkuntoinen kaksio uusia asukkaita. Asunto sijaitsee vuonna 1941 rakennetun talon toisessa kerroksessa, ja sen 50 neliötä tarjoavat mukavasti tilaa elämiseen. Asunto Oy Sipoonkatu 11 on hyvin hoidettu taloyhtiö.
Asunnon sijainti on erinomainen: Pasilan rautatieasema, Mall of Tripla ja useat päivittäispalvelut ovat kävelymatkan päässä. Liikenneyhteydet ovat loistavat, sillä lähistöltä löytyvät niin bussi- ja raitiovaunupysäkit kuin taksitolppakin. Alueella on myös hyvät pyöräilyreitit, mikä tekee liikkumisesta sujuvaa ja vaivatonta.
Keittiössä on kaikki tarvittavat mukavuudet aktiiviseenkin kokkailuun: kaasuliesi, runsaasti tasotilaa ja hyvin säilytystilaa. Siisti ja toimiva kylpyhuone, josta löytyy paikka pyykinpesukoneelle. Makuuhuoneessa ja eteisessä on reilusti kaappitilaa.
Taloyhtiössä on lisäksi käytettävissä ullakkokomero, kellarikomero ja vehreä sisäpiha.
Tartu tilaisuuteen ja tule tutustumaan tähän viihtyisään kotiin Alppilan sydämessä!
Myynti, Esittelyt ja Lisätiedot:
Valtteri Parikka
Myyntijohtaja, LKV, Kiinteistönvälittäjä
0401614131
valtteri.parikka@roof.fi
Hintatiedot
Velaton hinta
292 000 €
5840 €/m2
Yhtiövastike 350,00 €
Hoitovastike 350,00 €
Vesimaksu 27 € / hlö / kk
Tehdyt korjaukset ja remontit
Ulkoetuikkunat 1985, Porrasmaalaukset 1987, Purettu asbestia kellarikäytäviltä ja lämmönjakohuoneesta 1992, Julkisivun eteläpäädyn lämmöneristys ja pinnoitus 1994, Tiilikatteen uusiminen 1996, Vesi- ja viemäriputkiston saneeraus 1998, Salaoja- ja sadevesiverkosto uusittu 2004, Pihan ulkonäön kohennus viher- ja kivetystyöllä 2004, Porrashuoneiden maalaus 2010, Sipoonkatu 11 ja 13 välisen liikuntasauman korjaus 2011, Ikkunoiden kunnostus ja lämmönsiirtimen uusiminen 2014, IV-hormien kartoitus ja nuohous 2021, Perussäädön uusiminen ja lämpöjohtokuvat 2021, Huonokuntoisten piippujen massauskorjaukset ja piippujen pellitys sekä lintuverkotus 2022, Asunnon A23 kylpyhuoneen saneeraus (lattialämmityskaapeliin päässeen veden vuoksi) 2022, Paisunta-astian uusiminen 2024, Julkisivun palkkarappaukset ja -maalaukset 2024.
Tulevat korjaukset ja remontit
Tulevan viiden vuoden aikana tehdään normaaleja vuosikorjauksia sisältäen mm. patteriventtiilien uusimiseen sekä patteriverkoston tasapainotuksen.
Taloyhtiö
Taloyhtiön nimi |
Asunto Oy Sipoonkatu 11 |
|---|---|
Isännöitsijän yhteystiedot |
Venla Laine |
Kiinteistötunnus/laitostunnus |
91.387-12-11 |
Kiinteistön nimi |
Kiinteistöhuolto Varonen Oy |
Yhtiön tilat ja varustelu |
Kaapeli-tv, vinttikomero, pesutupa ja kellarikomero |
Energialuokka |
E2018 |
Tontin pinta-ala |
742m2 |
Tontin omistus |
Oma |
Sijainti
Sipoonkatu 11
00520,
Alppila, Alppiharju,
Helsinki