Hero banner image

Helsinginkatu 8, 00500, Helsinki

Get a Roof
Myyntihinta: 295 788,26 €
Velaton hinta: 340 000 €
Hoitovastike: 421,80 €
Rahoitusvastike: 263,63 € /kk
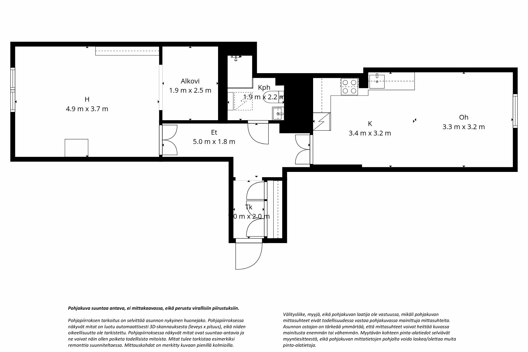
Asuinpinta-ala: 57 m2
Huoneluku: 2h + k + alkovi + et + kph/wc
Rakennusvuosi: 1928
Talotyyppi: kerrostalo
Energialuokka: D2018
Kaupunginosa: Kallio, Torkkelinmäki
Kaupunki: Helsinki

Apartment image

Torkkelinmäen kupeessa, vuonna 1928 rakennetussa ja omalla tontilla sijaitsevassa taloyhtiössä sijaitseva läpitalon kaksio tarjoaa selkeän ja toimivan pohjaratkaisun. Huoneiston pohjaratkaisu tuo tiloihin luonnonvaloa eri vuorokaudenaikoina ja tekee kokonaisuudesta tasapainoisen.

Huoneistoa on remontoitu vuosina 2023–2024. Vuonna 2024 putkiremontin yhteydessä alkuperäiset lautalattiat kaivettiin esiin, hiottiin ja lakattiin, ja listat uusittiin. Katot on verkotettu ja maalattu, ja seinäpinnat maalattiin samana vuonna. Alkuperäiset väliovet sekä eteisen kaapiston ovet on kunnostett...

Apartment image
Target image Target image Target image Target image Target image Target image Target image Target image Target image Target image Target image Target image Target image Target image Target image Target image Target image Target image Target image Target image Target image

Käpylä asuinalueena

Käpylä on yksi Helsingin viehättävimmistä ja omaleimaisimmista asuinalueista, jossa puutaloidylli ja kylämäisyys yhdistyvät kaupunkielämän helppouteen. Vehreät kadut, yhteisöllinen tunnelma ja kaunis arkkitehtuuri hurmaavat heti. Liikkuminen on vaivatonta bussilla, raitiovaunulla tai junalla, ja arjen palvelut löytyvät kätevästi kävelyetäisyydeltä.

Perheille Käpylä tarjoaa poikkeuksellisen hyvät puitteet – päiväkodit, koulut ja leikkipuistot sijaitsevat aivan kotiovien tuntumassa. Vapaa-aikaa rikastuttavat Kumpulan maauimalan kesäinen tunnelma, ulkoilureitit sekä aivan lähistöllä sijaitsevan kauppakeskus Triplan monipuoliset palvelut. Käpylä on kokonaisuus, jossa arki on sujuvaa ja asuminen tuntuu aidosti hyvältä joka päivä.

Sijainti

Order demo

Varaa esittely

Calendar

Kiinnostuitko?

Ehdota meille sinulle sopivaa aikaa niin valittajamme on sinuun yhteydessa mahdollisimman pian.

Ota yhteytta

Ota yhteytta

Contact image Contact image
Duarte Tammilehto
Puh: 050 341 1676
Duarte Tammilehto

Katso muut kohteet Kallio, Torkkelinmäki

Real estate object
kerrostalo
Hämeentie 27 C 81, 00500, Helsinki
1h, alkovi, kph, k, et.
Real estate object
toimistotila
Kinaporinkatu 2, 00500, Helsinki
h + k + kph + wc