Hero banner image

Kirstinsyrjä 6, 02760, Espoo

Get a Roof
Myyntihinta: 88 376,91 €
Velaton hinta: 95 000 €
Hoitovastike: 238,00 €
Rahoitusvastike: 74,48 € /kk
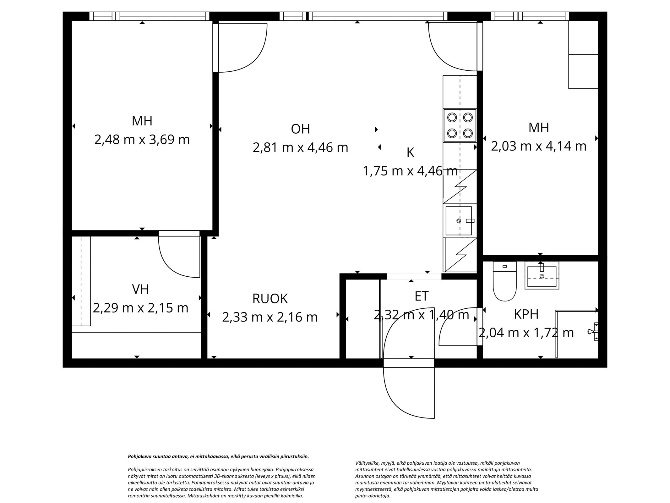
Asuinpinta-ala: 56 m2
Huoneluku: 2-3 h, kt, rt, kph
Rakennusvuosi: 1971
Talotyyppi: kerrostalo
Energialuokka: D2018
Kaupunginosa: Suvela, Espoon keskus
Kaupunki: Espoo

LVIS-remontin yhteydessä täysin uudistettu kolmio fiksulla pohjaratkaisulla – modernia asumista loistavalla sijainnilla Espoon Suvelassa

Apartment image

Asunto Oy Satokirsti Espoon Suvelassa tarjoaa harvinaisen mahdollisuuden hankkia kauttaaltaan uudistettu ja poikkeuksellisen toimivaksi muokattu koti. Kaksio on LVIS-linjasaneerauksen yhteydessä muutettu onnistuneesti kaksiosta kolmioksi, jonka tilankäyttö on viety uudelle tasolle.

Remontissa keittiö on avattu osaksi avaraa oleskelutilaa, jolloin tilasta on muodostunut valoisa ja viihtyisä kokonaisuus. Olohuone ja sen takaosaan sijoittuva ruokailutila toimivat luontevasti yhdessä. Keittiön kaapistot ja integroidut kodinkoneet istuvat harmonisesti asunnon ilmeeseen.

Asunnon...

Apartment image
Target image Target image Target image Target image Target image Target image Target image Target image Target image Target image Target image Target image Target image Target image Target image Target image Target image Target image Target image Target image Target image Target image

Sijainti

Order demo

Varaa esittely

Calendar

Kiinnostuitko?

Ehdota meille sinulle sopivaa aikaa niin valittajamme on sinuun yhteydessa mahdollisimman pian.

Ota yhteytta

Ota yhteytta

Contact image Contact image
Harto Pasonen
Puh: 050 529 9768
Harto Pasonen

Katso muut kohteet Suvela, Espoon keskus

Real estate object
kerrostalo
Kirstinsyrjä 7, 02760, Espoo
3h, k, kph, las.parv
Real estate object
kerrostalo
Kirstinsyrjä 6, 02760, Espoo
2-3 h, kt, rt, kph