Hero banner image

Lönnhammarintie 475, 10300, Karjaa

Get a Roof
Myyntihinta: 165 000 €
Velaton hinta: 165 000 €
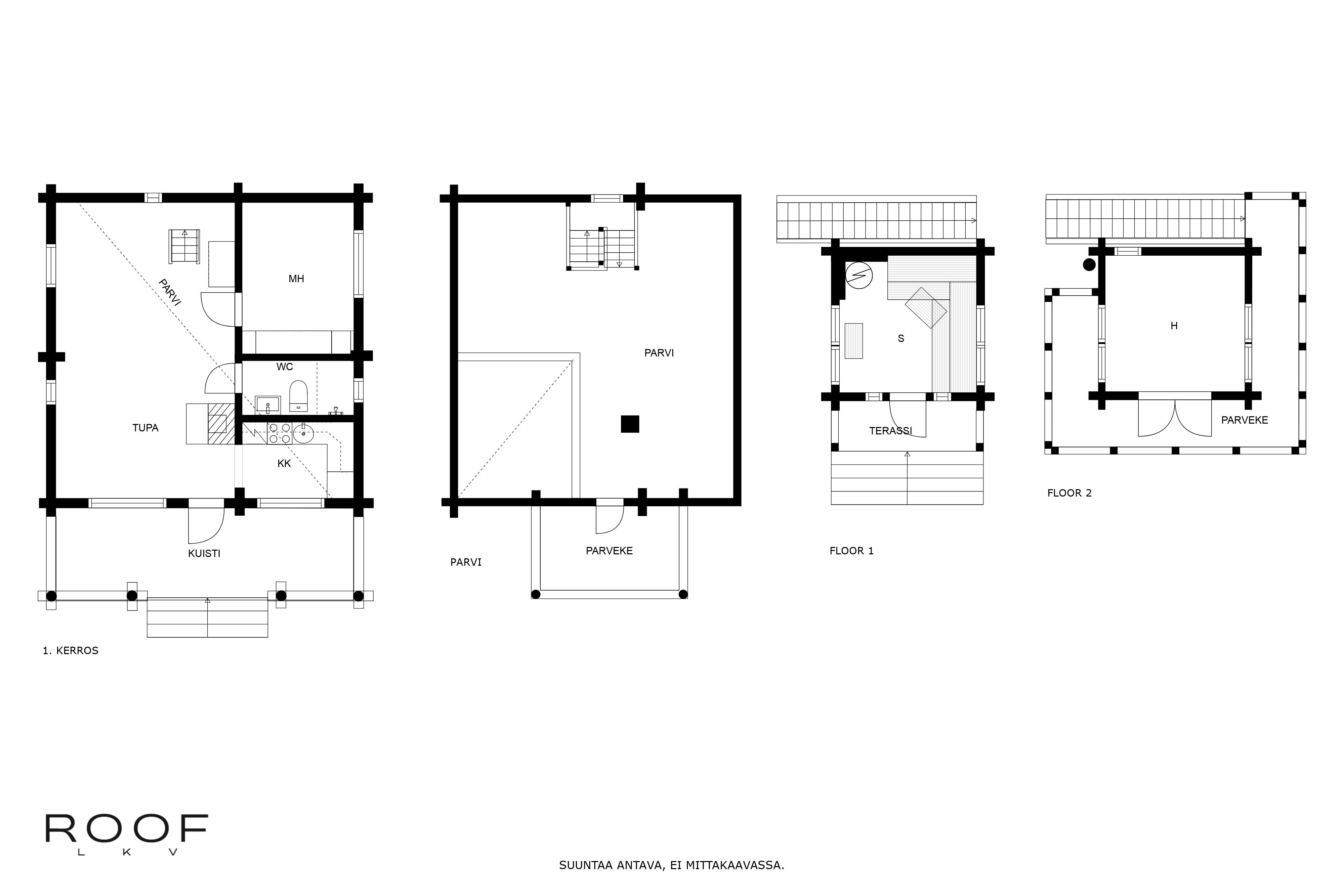
Asuinpinta-ala: 55,5 m2
Huoneluku: 2h, k, kph/wc, parvi, majakkatalo, autotalli
Rakennusvuosi: 2005
Talotyyppi: mökki tai huvila
Kaupunginosa: Karjaa
Kaupunki: Karjaa

Apartment image

KARJAA LÖNNHAMMAR Maaseudun rauhassa, omalla pienellä peltojen ympäröimällä kukkulalla on tämä upea vapaa-ajanviettopaikka. Rakennukset ovat Honkarakenteen pyöröhirrestä rakennettu, päämökissä on kaikki mukavuudet sisä wc:stä astianpesukoneeseen. Erikoisuutena on upea saunarakennus "Majakka", itse saunaan mahtuu hyvin vaikka seitsemän veljestä ja saunan yläkerrassa on upea huone. Lisäksi löytyy huvimaja, autotalli, puuliiteri, varasto sekä ulkohuussi.
Fiskarsiin vain n. 11 km ja Anskuun vain puolet siitä!

KARIS LÖNNHAMMAR I landsbygdens lugn och ro, på sin egna lilla kulle o...

Apartment image
Target image Target image Target image Target image Target image Target image Target image Target image Target image Target image Target image Target image Target image Target image Target image Target image Target image Target image Target image Target image Target image Target image Target image Target image Target image Target image Target image Target image Target image Target image Target image Target image Target image Target image Target image Target image Target image Target image Target image Target image

Sijainti

Order demo

Varaa esittely

Calendar

Kiinnostuitko?

Ehdota meille sinulle sopivaa aikaa niin valittajamme on sinuun yhteydessa mahdollisimman pian.

Ota yhteytta

Ota yhteytta

Contact image Contact image
Johan Grönqvist
Puh: 044 286 9586
Johan Grönqvist

Katso muut kohteet Karjaa

Real estate object
paritalo
Punasuonkatu 15 B, 10300, Karjaa
4h, k, khh, kph/s, wc, varasto, autokatos, terassi,
Real estate object
omakotitalo
Kuunsilta 39, 10300, Karjaa
5h, k, khh, kph/s, wc