Hero banner image

Hämeenkatu 13-17, 05800, Hyvinkää

Get a Roof
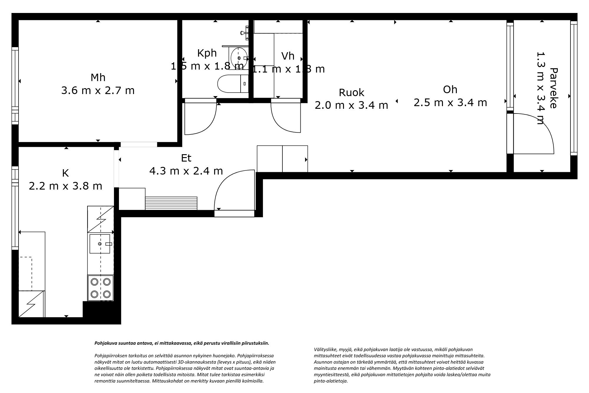
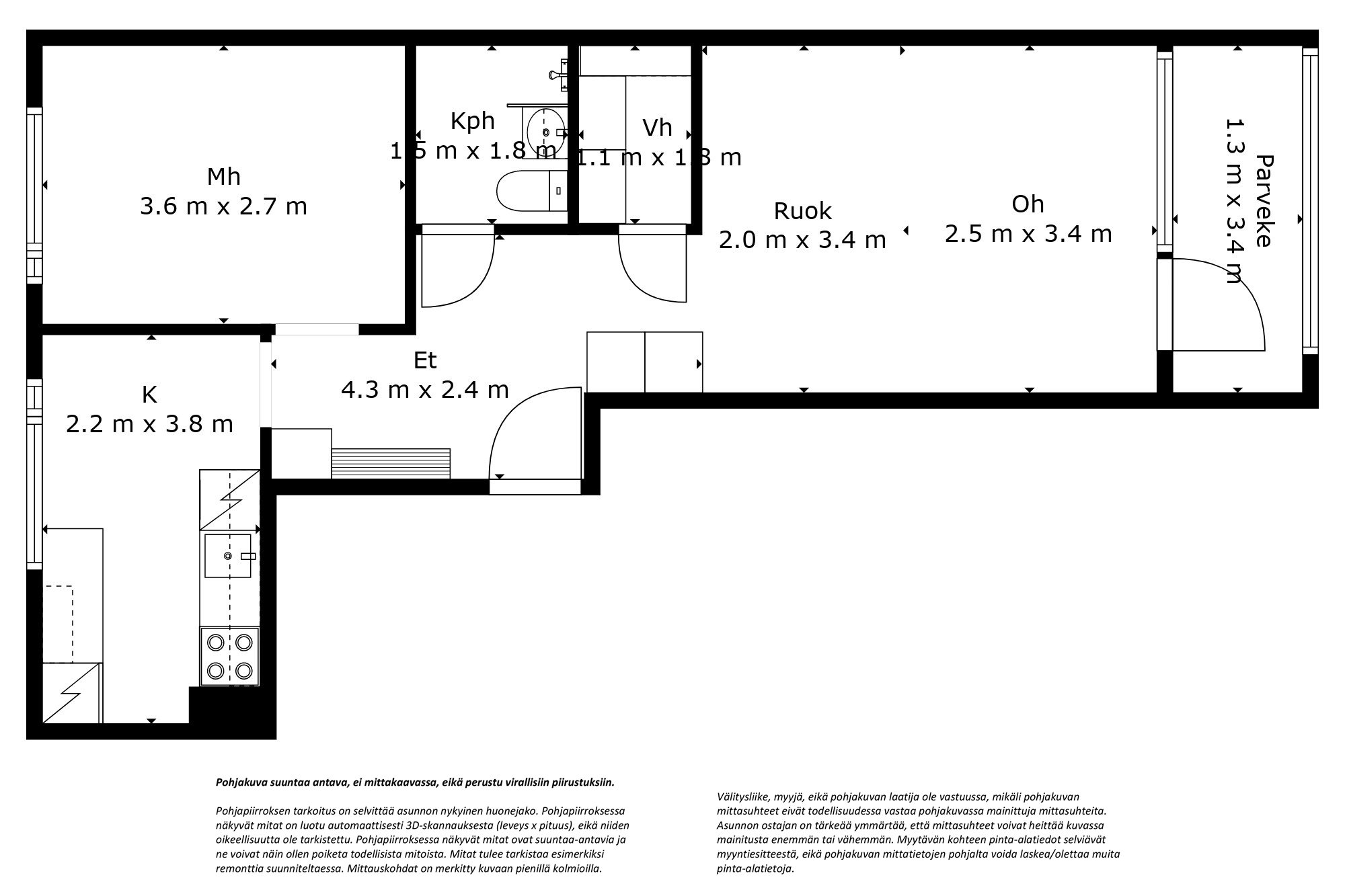
Asuinpinta-ala: 50 m2
Huoneluku: 2h, k, kph, p
Rakennusvuosi: 1970
Talotyyppi: kerrostalo
Kaupunginosa: Tehdas
Kaupunki: Hyvinkää

Apartment image

Vuokrataan remontoitu ja muuttovalmis kaksio Hyvinkään Tehtaan asuinalueelta.

Hiljattain saneerattu valoisa koti läheltä Hyvinkään keskustan kaikkia palveluita.
Keittiöstä löytyy kaikki tarpeellinen ja ikkunan edessä on tilaa pienelle ruokapöydälle.
Makuuhuoneeseen mahtuu sängyn lisäksi hyvin yöpöydät tai vaikka työpiste. Kylpyhuone on remontoitu. Lasitettu parveke. Asunnon kaikki pinnat on uusittu ja näistä viimeisimpänä parkettilattian hionta ja lakkaus (2025).

Autopaikkoja varattavissa!

Parhaillaan valmistumassa on laaja julkisivu-, piha- ja LVI-saneer...

Apartment image

Sijainti

Order demo

Varaa esittely

Calendar

Kiinnostuitko?

Ehdota meille sinulle sopivaa aikaa niin välittäjämme on sinuun yhteydessä mahdollisimman pian.

Ota yhteyttä

Ota yhteyttä

Contact image Contact image
Roni Haarakangas
Puh: 040 021 2645
Roni Haarakangas

Katso muut kohteet Tehdas

Real estate object
kerrostalo
Hämeenkatu 13-17, 05800, Hyvinkää
2h, k, kph, p
Real estate object
kerrostalo
Hämeenkatu 13-17, 05800, Hyvinkää
2h, k, kph, p